For Sale - 16 North Harrow Drive, Barrhaven, Ontario

Est payment $3,841/mo
Views   1
Time on Jump  1 days
  • Spacious layout with functional design, perfect for family living.
  • Main level features hardwood floors and a formal living and dining room.
  • Bright open-concept kitchen with ample counter space and stainless steel appliances.
  • Generous backyard with a deck, gazebo, and room for gatherings.
  • Walking distance to shops, parks, schools, and easy access to commuting.



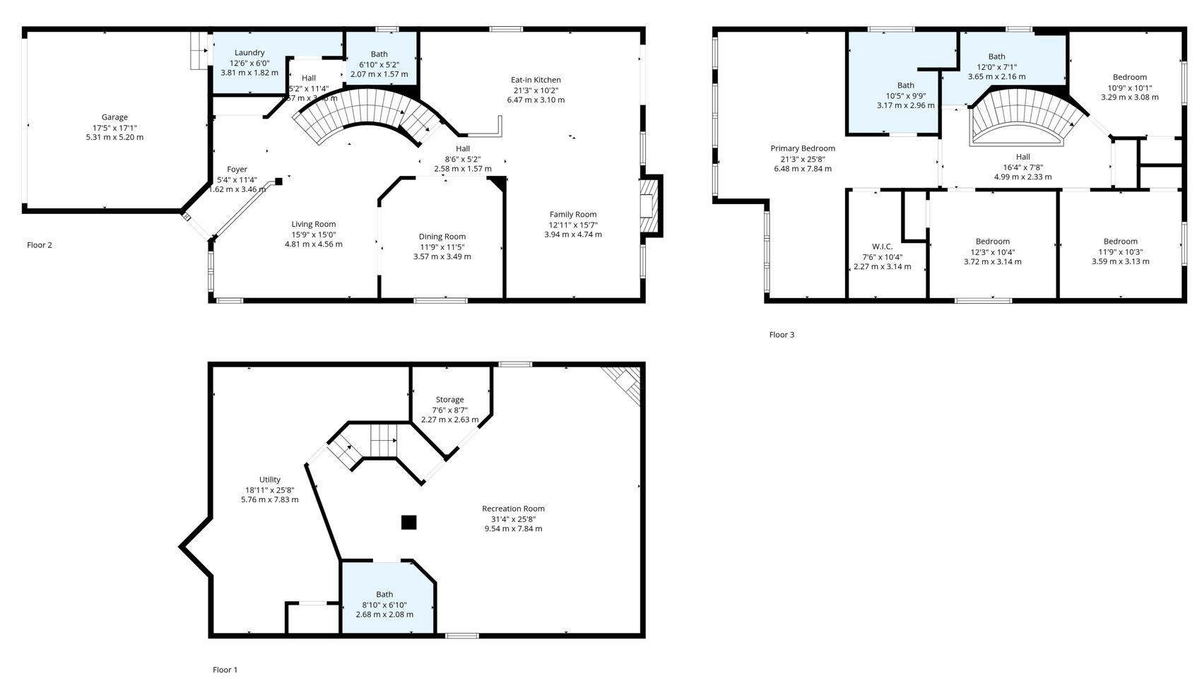
Centrally located in barrhaven, this single-family home with double car garage offers a spacious layout and functional design for family living. The main level features hardwood floors throughout, with a formal living and dining room ideal for entertaining. At the back of the home, the open-concept kitchen and family room are filled with natural light. The kitchen includes stainless steel appliances, ample counter space, generous storage, a large island, and a breakfast nook overlooking the backyard. A mudroom with laundry, and a powder room complete the main level. Upstairs, the massive primary bedroom offers a true walk-in closet, private sitting area, and a 5-piece ensuite. Three additional sizeable bedrooms and a full bathroom provide plenty of space for the family. The fully finished basement extends the living space with a large recreation room with lighting throughout, a 3-piece bathroom, and abundant storage. Outside, the backyard features a deck, gazebo and plenty of space for gatherings and outdoor enjoyment. Driveway offering parking for 4 additional vehicles. Located in the longfields community, this home is walking distance to starbucks, farm boy, schools, parks, a pharmacy, a medical centre, restaurants and barrhaven town centre. Just a short drive brings you to costco, fallowfield station, and highway 416, making shopping, transit, and commuting exceptionally convenient.
Listing IDX12849708
Address16 North Harrow Drive
CityBarrhaven, Ontario
Price$799,900
Bed / Bath4 / 4 Full
Style2-Storey, Detached
ConstructionBrick
Land Size3471.48
TypeResidential
StatusFor Sale
Subtype DetachedIndoor Features Auto Garage Door RemoteOwnership FreeholdBasement Full, FinishedFoundation Poured ConcreteHeating / Cooling Forced AirHeating Fuel GasSewer Sewer
Parking 6.00
ASAP

Fri

6

Mar

Sat

7

Mar

Sun

8

Mar

Mon

9

Mar

Tue

10

Mar

Wed

11

Mar

Thu

12

Mar

Fri

13

Mar

Sat

14

Mar

Sun

15

Mar

Mon

16

Mar

Tue

17

Mar

Wed

18

Mar

Thu

19

Mar

Fri

20

Mar

Sat

21

Mar

Sun

22

Mar

Mon

23

Mar

Tue

24

Mar

Wed

25

Mar

Thu

26

Mar

Fri

27

Mar

Sat

28

Mar

Sun

29

Mar

Mon

30

Mar

Tue

31

Mar

Wed

1

Apr

Thu

2

Apr

Fri

3

Apr

By clicking “Get pre-qualified” and/or 'Submit' you are expressly consenting, in writing, to receive telemarketing and other messages, including artificial or prerecorded voices, via automated calls or texts from jumprealty.ca and up.mortgages at the number you provided above. This consent is not required to purchase any good or service. Message and data rates may apply, frequency varies. Text HELP for help or STOP to cancel. More details in Terms of Use and Privacy Policy.

Listing Agency:  EXP REALTY
Hospital
Parks
Schools
Place of Worship
Please select an amenity above to view a list.

Recommended Properties

Loading...
16 North Harrow Drive
Barrhaven , Ontario
4 4 $799,900
Get more info