For Sale - 1662 & 1664 Dufferin Street, Toronto, Ontario

Est payment $15,846/mo
Views   1
Time on Jump  1 days
  • Well-maintained commercial building in a high-traffic intersection.
  • Configured as 3 separate units, great for various businesses.
  • Previous medical and foodservice uses suit many commercial needs.
  • Includes 6 rear parking spaces and essential owned utilities.
  • Current tenant provides immediate rental income potential.



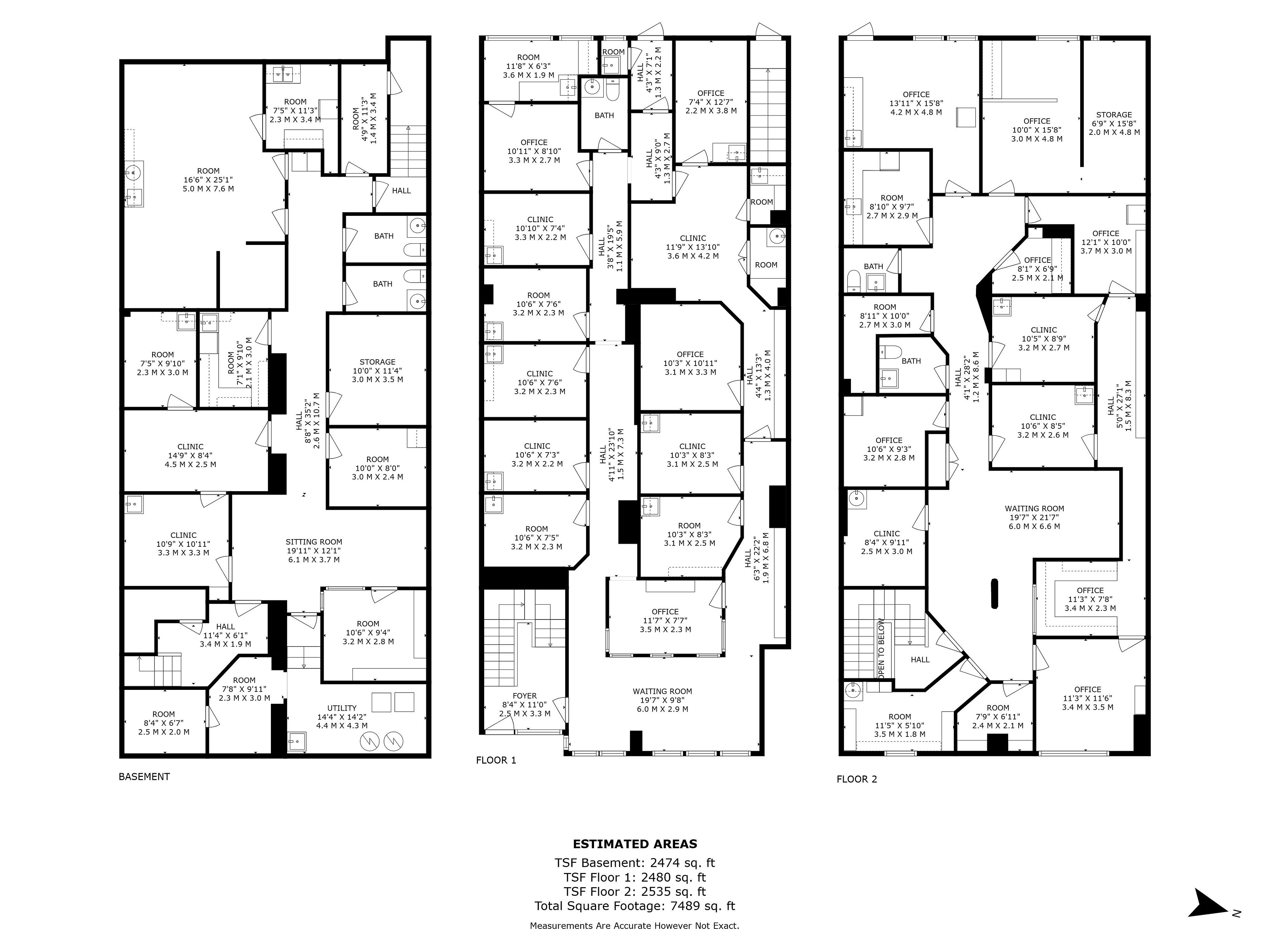
Exceptional opportunity to acquire a well-maintained commercial building in a high-exposure, high-traffic location at the busy intersection of dufferin & st. Clair. Configured as 3 separate units, each with its own entrance, offering excellent flexibility for a variety of commercial uses. Previously used as medical offices/clinics, with the main floor formerly operating as a pizza shop, making it well-suited for medical, professional, retail, or foodservice uses. Approx. 2,500 sq. Ft. Per floor (see floor plans). Property features 6 rear parking spaces, 2 furnaces, 2 hot water tanks, and 2 a/c units (all owned; no rental equipment). Ideal opportunity for investors and end users alike. Top floor currently tenanted, with tenant interested in remaining, offering potential for immediate rental income and an excellent option for buyers looking to occupy part of the building while offsetting carrying costs. Prime location with outstanding visibility, strong pedestrian and vehicular traffic, and convenient access for clients, customers, or patients. Rare opportunity to secure a versatile commercial asset in a strategic toronto location with significant upside.
Listing IDW12952312
Address1662 & 1664 Dufferin Street
CityToronto, Ontario
Price$3,300,000
StyleCommercial Retail
Land Size2020
TypeIndustrial/Commercial
StatusFor Sale
Subtype Commercial RetailBasement 1Heating / Cooling Gas Forced Air OpenSewer Sanitary
ASAP

Sat

4

Apr

Sun

5

Apr

Mon

6

Apr

Tue

7

Apr

Wed

8

Apr

Thu

9

Apr

Fri

10

Apr

Sat

11

Apr

Sun

12

Apr

Mon

13

Apr

Tue

14

Apr

Wed

15

Apr

Thu

16

Apr

Fri

17

Apr

Sat

18

Apr

Sun

19

Apr

Mon

20

Apr

Tue

21

Apr

Wed

22

Apr

Thu

23

Apr

Fri

24

Apr

Sat

25

Apr

Sun

26

Apr

Mon

27

Apr

Tue

28

Apr

Wed

29

Apr

Thu

30

Apr

Fri

1

May

Sat

2

May

By clicking “Get pre-qualified” and/or 'Submit' you are expressly consenting, in writing, to receive telemarketing and other messages, including artificial or prerecorded voices, via automated calls or texts from jumprealty.ca and up.mortgages at the number you provided above. This consent is not required to purchase any good or service. Message and data rates may apply, frequency varies. Text HELP for help or STOP to cancel. More details in Terms of Use and Privacy Policy.

Listing Agency:  ROYAL LEPAGE TERREQUITY GOLD REALTY

* Data is provided courtesy of PROPTX. The information provided herein must only be used by consumers that have a bona fide interest in the purchase, sale, or lease of real estate and may not be used for any commercial purpose or any other purpose. The information is deemed reliable but is not guaranteed accurate by PROPTX.

Hospital
Parks
Schools
Place of Worship
Please select an amenity above to view a list.

Recommended Properties

Loading...
1662 & 1664 Dufferin Street
Toronto , Ontario
$3,300,000
Get more info