For Lease - 168 Pearson Avenue Unit# Lower Unit, Toronto, Ontario

Views   1
Time on Jump  1 days
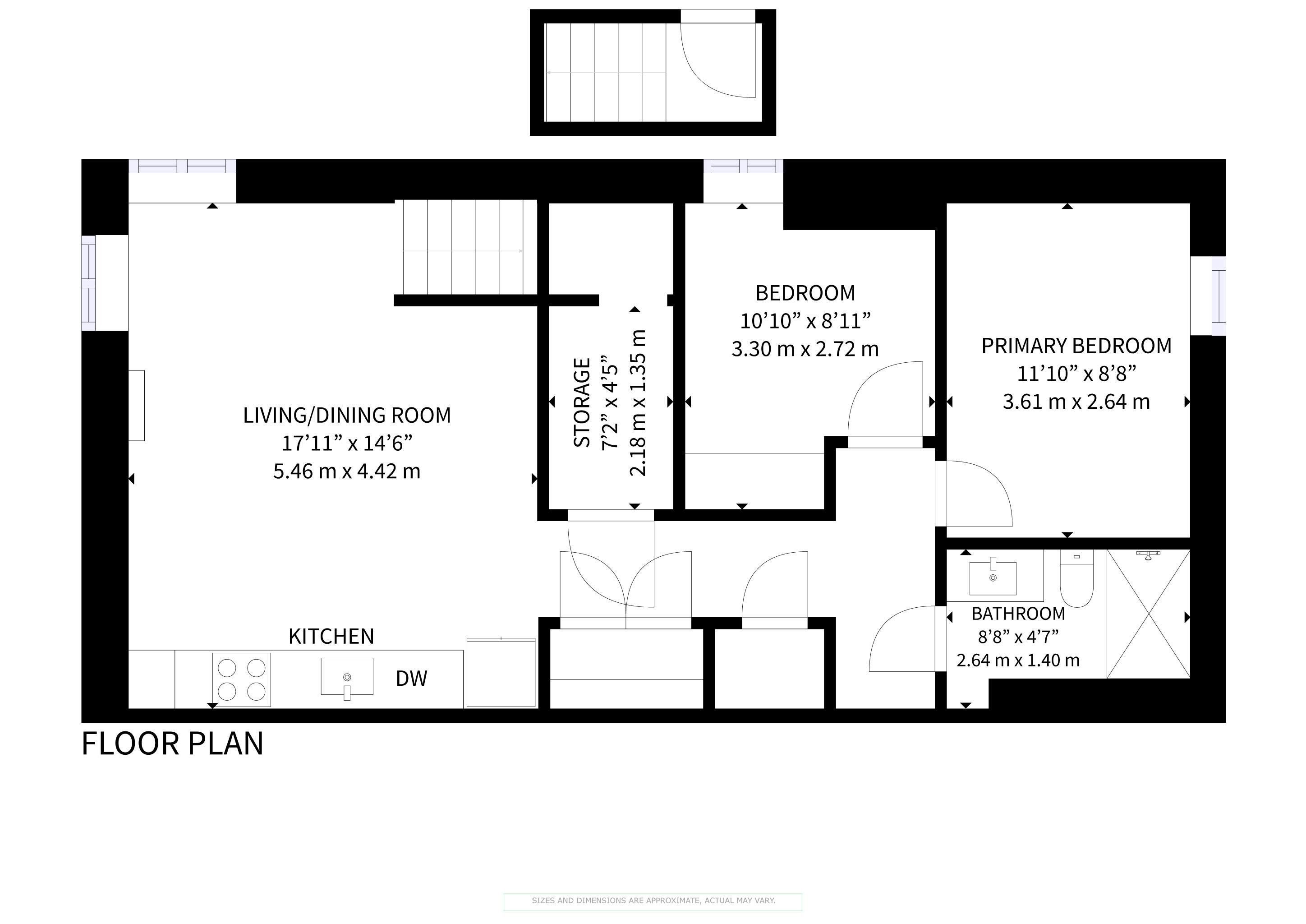
  • Brand new modern 2-bedroom unit in desirable Roncesvalles Village.
  • Bright space with heated floors for added comfort.
  • Open concept design with stylish custom kitchen and modern appliances.
  • Convenient in-suite laundry and separate utilities for comfort.
  • Close to parks, grocery stores, and multiple transit options.
Be the first to live in this completely newly built modern 2 bedroom lower level unit located in the heart of sought after roncesvalles village! The space is bright and current featuring heated floors throughout for a warm welcoming feeling at home. Insulated for sound reduction, high and dry and properly built. Feels like main floor unit. Enter through the private side entrance into an open concept airy living room, dining room and kitchen area; featuring a sleek custom designer aya kitchen with ample storage, modern appliances and quartz countertops and backsplash. Includes in-suite laundry and unit specific controls for hydro, gas and hot water offering complete comfort and convenience. Location: 10 minute walk to high park and the lake boardwalk, 7 minute walk to st joseph's hospital. Minutes to local/chain grocery stores and parks. Various commuting options with roncesvalles, king and queen street cars at your door step. This home is perfect for quiet, caring tenants who value comfort, quality and turn-key hands off living. Unit is professionally managed, ensuring a well maintained, pleasant living environment. Street permit parking available.
Listing IDW12938180
Address168 Pearson Avenue Unit# Lower Unit
CityToronto, Ontario
Lease$2,400
Bed / Bath2 / 1 Full
Style3-Storey, Multiplex
ConstructionBrick, Concrete
TypeMulti-Family
StatusFor Lease
Subtype MultiplexIndoor Features None, Ensuite, In-Suite LaundryInclusions WaterAmenities Beach, Hospital, Park, Public Transit, School, Rec./Commun.CentreOwnership LeaseholdBasement Apartment, Finished, Full, Separate Entrance, Walk-UpFoundation ConcreteHeating / Cooling Forced AirHeating Fuel GasSewer Sewer
ASAP

Thu

2

Apr

Fri

3

Apr

Sat

4

Apr

Sun

5

Apr

Mon

6

Apr

Tue

7

Apr

Wed

8

Apr

Thu

9

Apr

Fri

10

Apr

Sat

11

Apr

Sun

12

Apr

Mon

13

Apr

Tue

14

Apr

Wed

15

Apr

Thu

16

Apr

Fri

17

Apr

Sat

18

Apr

Sun

19

Apr

Mon

20

Apr

Tue

21

Apr

Wed

22

Apr

Thu

23

Apr

Fri

24

Apr

Sat

25

Apr

Sun

26

Apr

Mon

27

Apr

Tue

28

Apr

Wed

29

Apr

Thu

30

Apr

By clicking “Get pre-qualified” and/or 'Submit' you are expressly consenting, in writing, to receive telemarketing and other messages, including artificial or prerecorded voices, via automated calls or texts from jumprealty.ca and up.mortgages at the number you provided above. This consent is not required to purchase any good or service. Message and data rates may apply, frequency varies. Text HELP for help or STOP to cancel. More details in Terms of Use and Privacy Policy.

Listing Agency:  GREENFIELD REAL ESTATE INC.

* Data is provided courtesy of PROPTX. The information provided herein must only be used by consumers that have a bona fide interest in the purchase, sale, or lease of real estate and may not be used for any commercial purpose or any other purpose. The information is deemed reliable but is not guaranteed accurate by PROPTX.

Hospital
Parks
Schools
Place of Worship
Please select an amenity above to view a list.

Recommended Properties

Loading...
168 Pearson Avenue Unit# Lower Unit
Toronto , Ontario
2 1 $2,400
Get more info