For Sale - 17 James Street, Halton Hills, Ontario

Est payment $4,758/mo
Views   1
Time on Jump  76 day
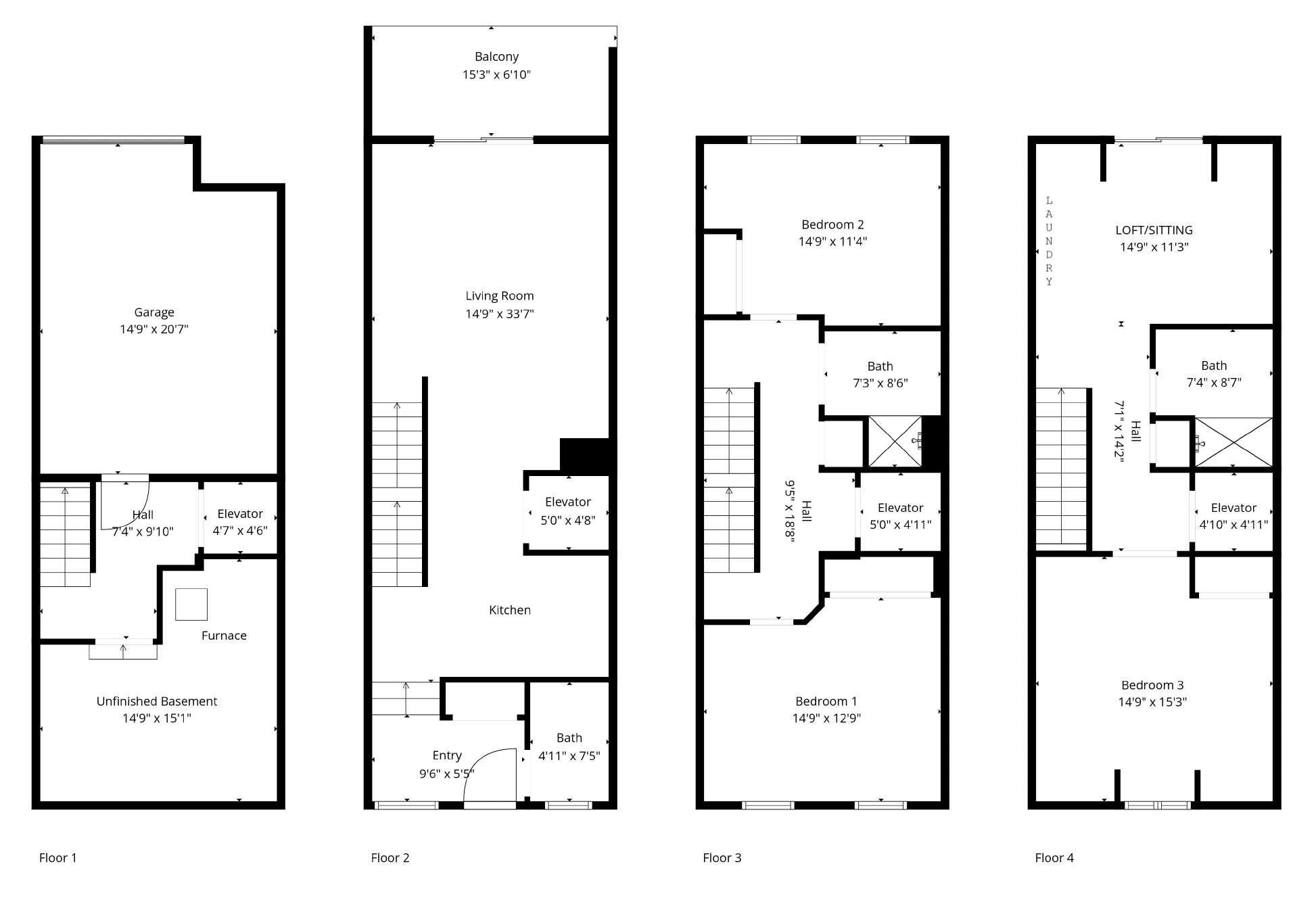
  • New luxury townhome with a warranty, ready for immediate enjoyment.
  • Three bright bedrooms and a cozy loft for peaceful retreats.
  • Open-concept living and kitchen space filled with natural light.
  • Spacious wood deck offers great views of Veteran's Walk Park.
  • Conveniently located near downtown cafes, shops, and trails.



Brand-new & thoughtfully crafted luxury townhome with warranty boasts 3 sun-drenched bedrooms + loft, that feel like quiet retreats after the day's rush, the generous living room, and open-concept kitchen alive with natural light, and a dining area perfect for those unhurried family gatherings. Up top, a bright and airy loft calls for lazy afternoons with a book or focused work sessions, all connected by a whisper-quiet elevator for effortless days ahead. A sprawling wood deck spills off the kitchen, framing uninterrupted views of veteran's walk park that ground you in the moment, while the 1. 5-car garage with a rear entrance keeps life practical and your beautiful front foyer welcoming for guests. Nestled in a walkable downtown pulsecafes, shops, and trails all within arm's reachthis is the rare blend of upscale comfort and everyday ease that doesn't compromise. Enjoy morning dog walks or evening strolls in the quiet hum of veterans walk park that greets you like an old friendserene green space just beyond your doorstep. At $959,900, it's an undeniable steal, delivering unmatched sophistication and heart in a market that's anything but forgiving.
Listing IDW12440517
Address17 James Street
CityHalton Hills, Ontario
Price$959,900
Bed / Bath3 / 3 Full
Style3-Storey, Att/Row/Townhouse
ConstructionBrick
TypeResidential
StatusFor Sale
Subtype Att/Row/TownhouseIndoor Features Water Heater, OtherOutdoor Features DeckAmenities Hospital, Library, Park, SchoolOwnership FreeholdAppliances ElevatorBasement Full, UnfinishedFoundation Poured ConcreteHeating / Cooling Forced AirHeating Fuel GasSewer Sewer
Parking 2.00
ASAP

Fri

19

Dec

Sat

20

Dec

Sun

21

Dec

Mon

22

Dec

Tue

23

Dec

Wed

24

Dec

Thu

25

Dec

Fri

26

Dec

Sat

27

Dec

Sun

28

Dec

Mon

29

Dec

Tue

30

Dec

Wed

31

Dec

Thu

1

Jan

Fri

2

Jan

Sat

3

Jan

Sun

4

Jan

Mon

5

Jan

Tue

6

Jan

Wed

7

Jan

Thu

8

Jan

Fri

9

Jan

Sat

10

Jan

Sun

11

Jan

Mon

12

Jan

Tue

13

Jan

Wed

14

Jan

Thu

15

Jan

Fri

16

Jan

By clicking “Get pre-qualified” and/or 'Submit' you are expressly consenting, in writing, to receive telemarketing and other messages, including artificial or prerecorded voices, via automated calls or texts from jumprealty.ca and up.mortgages at the number you provided above. This consent is not required to purchase any good or service. Message and data rates may apply, frequency varies. Text HELP for help or STOP to cancel. More details in Terms of Use and Privacy Policy.

Listing Agency:  ROCK STAR REAL ESTATE INC.
Hospital
Parks
Schools
Place of Worship
Please select an amenity above to view a list.

Recommended Properties

Loading...
17 James Street
Halton Hills , Ontario
3 3 $959,900
Get more info