For Sale - 17 Ravenscraig Place, Innisfil, Ontario

Est payment $3,697/mo
Views   1
Time on Jump  38 day
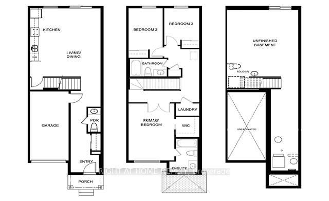
  • Open concept main level with a balcony for future outdoor space.
  • Spacious primary bedroom with ensuite and walk-in closet.
  • Customizable finishes and basement for personal touch.
  • Single car garage and private driveway for convenience.
  • Located near parks, shops, schools, and easy highway access.



Welcome to 17 ravenscraig place, one of only 11 towns in this brand new community located in small town cookstown, ontario! This 3 bedroom, 2. 5 bathroom townhome offers an open concept main level with a juliette balcony off the kitchen (perfect for future deck), a walk-out basement to the backyard, a large primary boasting a 4pc ensuite and walk-in closet, two additional bedrooms, plus 2nd floor laundry for added convenience! Decor finishes yet to be chosen so you can still choose upgrades and/or finish the basement to truly customize your home. Single car garage & private driveway. Overlooks park below. Luxury vinyl plank floors throughout open concept main floor. The village of cookstown is innisfil's little hidden gem, and dubbed "the coziest corner in innisfil" for a reason. Great time to buy in growing cookstown!! A quick 7 minutes to hwy 400! Only 20 minutes to innisfil beach park for family fun all year round! The historic village of cookstown is known for its charm with quaint shops & restaurants lining the main intersection. A great place to raise a family, cookstown offers small town charm and big city amenities with tangers outlet mall (7min), schools, library, community centre, and more, all at your fingertips! Monthly condo fees: $89. 28 includes snow removal, garbage/recycling pick up, road maintainance. Eligible first time home buyers may be able to receive up to 13% savings on the purchase of this home through the proposed government fthb rebate program.
Listing IDN12824610
Address17 Ravenscraig Place
CityInnisfil, Ontario
Price$769,900
Bed / Bath3 / 3 Full
Style2-Storey, Att/Row/Townhouse
ConstructionBrick, Vinyl Siding
TypeResidential
StatusFor Sale
Subtype Att/Row/TownhouseIndoor Features Rough-In BathAmenities Cul de Sac/Dead End, Library, Park, Place Of Worship, Rec./Commun.Centre, SchoolOwnership FreeholdViews Park/GreenbeltBasement Full, Walk-OutFoundation ConcreteHeating / Cooling Forced AirHeating Fuel GasSewer Sewer
Parking 2.00
ASAP

Tue

7

Apr

Wed

8

Apr

Thu

9

Apr

Fri

10

Apr

Sat

11

Apr

Sun

12

Apr

Mon

13

Apr

Tue

14

Apr

Wed

15

Apr

Thu

16

Apr

Fri

17

Apr

Sat

18

Apr

Sun

19

Apr

Mon

20

Apr

Tue

21

Apr

Wed

22

Apr

Thu

23

Apr

Fri

24

Apr

Sat

25

Apr

Sun

26

Apr

Mon

27

Apr

Tue

28

Apr

Wed

29

Apr

Thu

30

Apr

Fri

1

May

Sat

2

May

Sun

3

May

Mon

4

May

Tue

5

May

By clicking “Get pre-qualified” and/or 'Submit' you are expressly consenting, in writing, to receive telemarketing and other messages, including artificial or prerecorded voices, via automated calls or texts from jumprealty.ca and up.mortgages at the number you provided above. This consent is not required to purchase any good or service. Message and data rates may apply, frequency varies. Text HELP for help or STOP to cancel. More details in Terms of Use and Privacy Policy.

Listing Agency:  RIGHT AT HOME REALTY

* Data is provided courtesy of PROPTX. The information provided herein must only be used by consumers that have a bona fide interest in the purchase, sale, or lease of real estate and may not be used for any commercial purpose or any other purpose. The information is deemed reliable but is not guaranteed accurate by PROPTX.

Hospital
Parks
Schools
Place of Worship
Please select an amenity above to view a list.

Recommended Properties

Loading...
17 Ravenscraig Place
Innisfil , Ontario
3 3 $769,900
Get more info