For Lease - 171 Cedric Avenue Unit# Unit 2, Toronto, Ontario

Views   1
Time on Jump  68 day
  • Brand-new luxury fourplex in a prime Oakwood Village location.
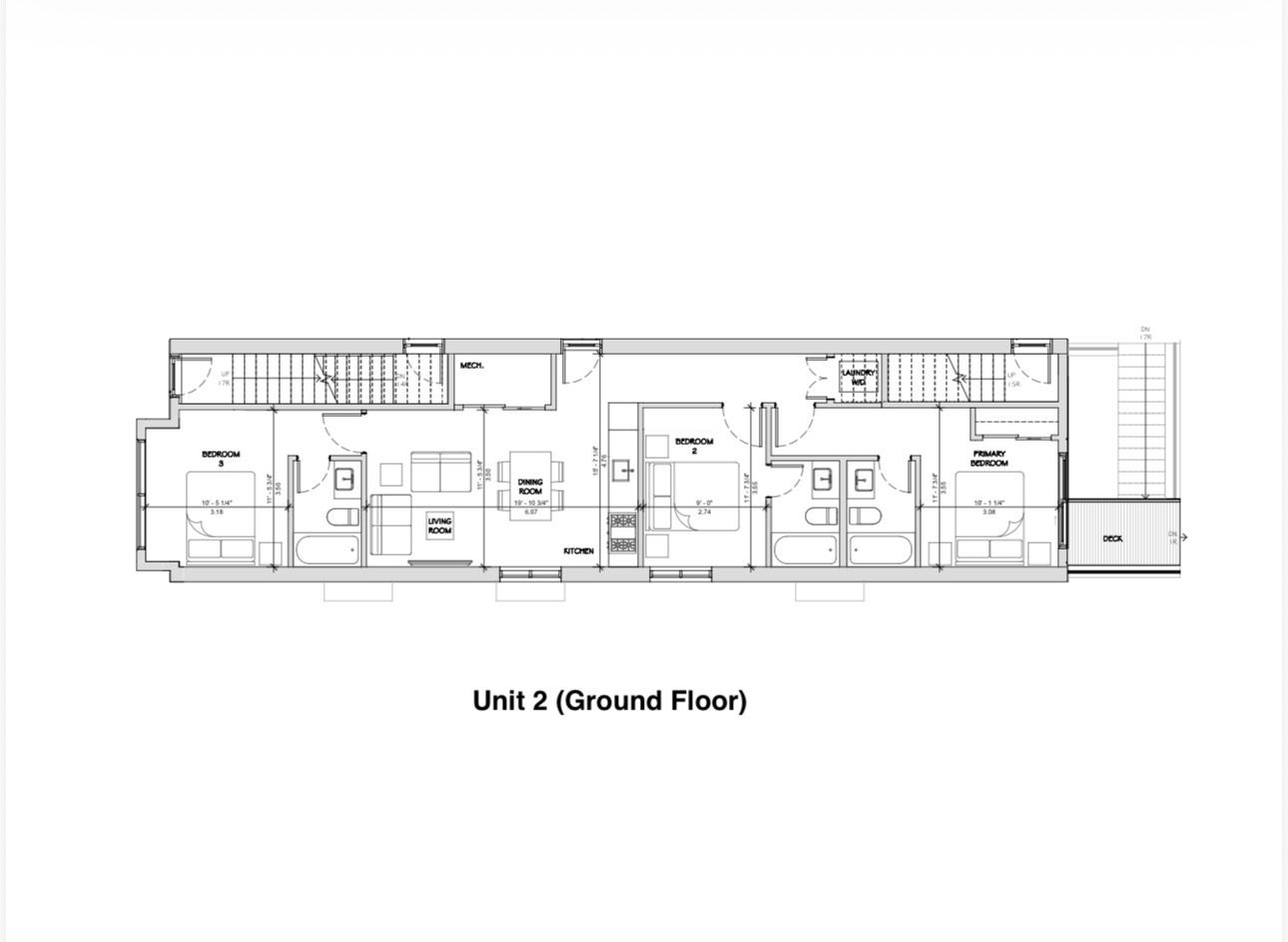
  • Ground floor unit with three bedrooms, each having an ensuite washroom.
  • Two separate entrances for added privacy and convenience.
  • Energy-efficient construction for lower utility costs and comfort.
  • Includes water, high-speed internet, and professional maintenance services.
Welcome to a never-lived-in, brand-new luxury fourplex, meticulously constructed by a renowned builder and ideally situated in the heart of oakwood village, minutes from the subway station, shops on eglinton and st. Clair, cedarvale park, eglinton station/crosstown. Downtown toronto, major highways via allen road, and the prestigious forest hill neighbourhood with access to excellent schools including leo baeck and j. R. Wilcox. This ground floor 3-bedroom residence, featuring three private ensuite washrooms, offers a rare combination of space, comfort, and privacy. The unit benefits from two separate entrances, making it ideal for families, multigenerational living, or hosting guests with complete independence. Designed for modern living, the suite includes brand-new, energy-efficient appliances, ensuite laundry (lg tower w/d), and a private mechanical room, with separately metered hydro and gas for full cost control. The building has been constructed to high energy-efficiency standards (icf walls), ensuring superior comfort and lower utility costs. Water and high-speed internet as well as snow removal and lawn maintenance and yard cleanings are all included in the rent. Professional property management provides snow removal and lawn maintenance paid by landlord, allowing tenants to enjoy a refined, worry-free lifestyle in a completely new home that has never been lived in. Full/partial furniture and parking is available for additional fees.
Listing IDC12721864
Address171 Cedric Avenue Unit# Unit 2
CityToronto, Ontario
Lease$3,100
Bed / Bath3 / 3 Full
StyleApartment, Fourplex
ConstructionAluminum Siding, Stucco (Plaster)
TypeMulti-Family
StatusFor Lease
Subtype FourplexIndoor Features Air Exchanger, Countertop Range, Carpet Free, ERV/HRV, On Demand Water Heater, Separate Heating Controls, Separate Hydro Meter, Sump Pump, Upgraded Insulation, In-Suite LaundryOutdoor Features Privacy, Deck, Paved YardInclusions High Speed Internet, Snow Removal, Water, Common Elements, Exterior MaintenanceOwnership LeaseholdBasement NoneFoundation Insulated Concrete Form, Poured ConcreteHeating / Cooling Forced AirHeating Fuel GasSewer Sewer
Parking 1.00
ASAP

Thu

2

Apr

Fri

3

Apr

Sat

4

Apr

Sun

5

Apr

Mon

6

Apr

Tue

7

Apr

Wed

8

Apr

Thu

9

Apr

Fri

10

Apr

Sat

11

Apr

Sun

12

Apr

Mon

13

Apr

Tue

14

Apr

Wed

15

Apr

Thu

16

Apr

Fri

17

Apr

Sat

18

Apr

Sun

19

Apr

Mon

20

Apr

Tue

21

Apr

Wed

22

Apr

Thu

23

Apr

Fri

24

Apr

Sat

25

Apr

Sun

26

Apr

Mon

27

Apr

Tue

28

Apr

Wed

29

Apr

Thu

30

Apr

By clicking “Get pre-qualified” and/or 'Submit' you are expressly consenting, in writing, to receive telemarketing and other messages, including artificial or prerecorded voices, via automated calls or texts from jumprealty.ca and up.mortgages at the number you provided above. This consent is not required to purchase any good or service. Message and data rates may apply, frequency varies. Text HELP for help or STOP to cancel. More details in Terms of Use and Privacy Policy.

Listing Agency:  FOREST HILL REAL ESTATE INC.

* Data is provided courtesy of PROPTX. The information provided herein must only be used by consumers that have a bona fide interest in the purchase, sale, or lease of real estate and may not be used for any commercial purpose or any other purpose. The information is deemed reliable but is not guaranteed accurate by PROPTX.

Hospital
Parks
Schools
Place of Worship
Please select an amenity above to view a list.

Recommended Properties

Loading...
171 Cedric Avenue Unit# Unit 2
Toronto , Ontario
3 3 $3,100
Get more info