For Sale - 1722 County 18 Road, North Grenville, Ontario

Est payment $5,522/mo
Views   1
Time on Jump  1 days
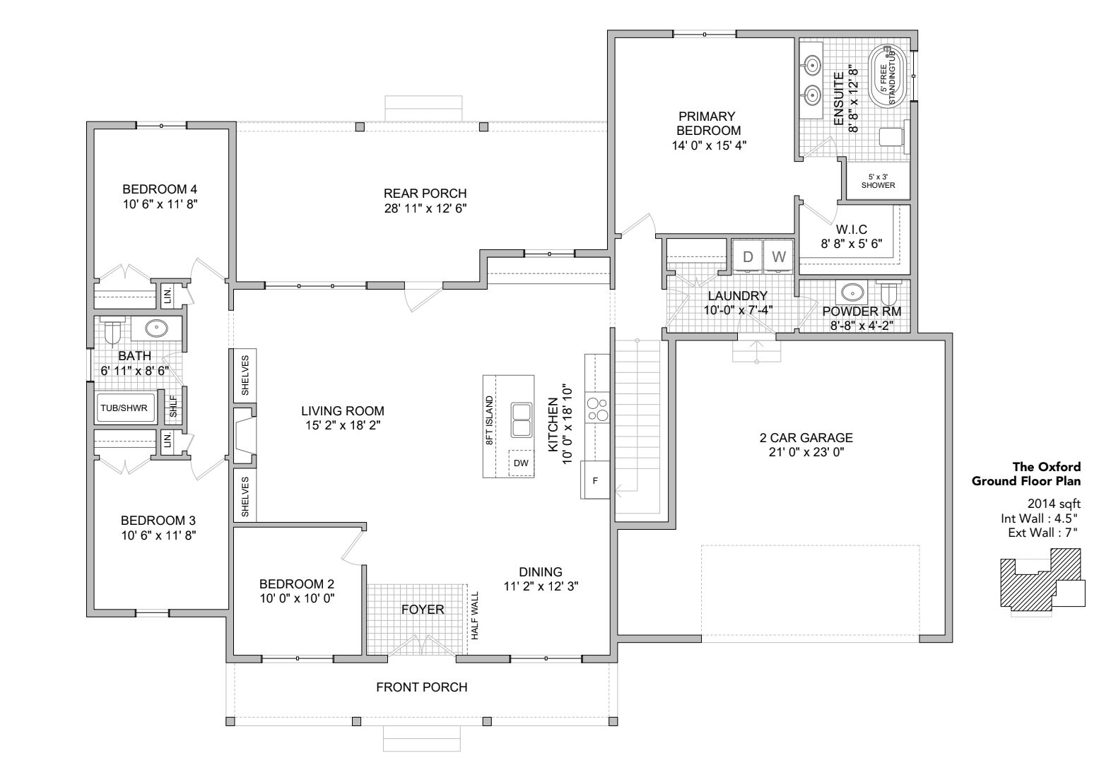
  • Newly built bungalow with open concept living, dining, and kitchen areas.
  • Primary suite features a walk-in closet and luxurious ensuite bathroom.
  • Four bedrooms and convenient main-floor laundry for everyday practicality.
  • Full walk-out basement offers possibilities for extra living space or an in-law suite.
  • Private lot with creek frontage, just minutes from shops and amenities.



Welcome to the oxford, a masterfully crafted new build by archstone homes, nestled along the shores of kemptville creek. This impressive bungalow offers an exceptional main-floor living experience, where a spacious open-concept living room, dining area, and kitchen with a large island flow together with ease. Whether you're hosting a dinner party or enjoying a quiet evening, the layout adapts effortlessly to every occasion. Step through to the expansive rear porch and let the peaceful creek views do the rest. The primary suite is a genuine sanctuary, featuring a generous walk-in closet and a beautifully appointed ensuite with a freestanding tub and separate shower. Four bedrooms in total make this home as practical as it is impressive, with a full bath, powder room, and main-floor laundry rounding out a layout designed for real life. The modern farmhouse exterior, complete with a covered front porch and double garage, strikes the perfect balance between curb appeal and functionality. The full walk-out basement opens the door to endless possibilities, from additional living space to an in-law suite. Sitting on a deep, private lot with direct frontage on kemptville creek, this is country living without compromise, just minutes from kemptville's shops, schools, and amenities.
Listing IDX12991908
Address1722 County 18 Road
CityNorth Grenville, Ontario
Price$1,150,000
Bed / Bath3 / 3 Full
StyleBungalow, Detached
ConstructionVinyl Siding, Other
TypeResidential
StatusFor Sale
Subtype DetachedIndoor Features Air Exchanger, In-Law Capability, Guest Accommodations, Primary Bedroom - Main FloorOwnership FreeholdWaterfront DirectBasement Walk-Up, FullFoundation Poured ConcreteHeating / Cooling Forced AirHeating Fuel PropaneSewer Septic
Parking 6.00
ASAP

Thu

16

Apr

Fri

17

Apr

Sat

18

Apr

Sun

19

Apr

Mon

20

Apr

Tue

21

Apr

Wed

22

Apr

Thu

23

Apr

Fri

24

Apr

Sat

25

Apr

Sun

26

Apr

Mon

27

Apr

Tue

28

Apr

Wed

29

Apr

Thu

30

Apr

Fri

1

May

Sat

2

May

Sun

3

May

Mon

4

May

Tue

5

May

Wed

6

May

Thu

7

May

Fri

8

May

Sat

9

May

Sun

10

May

Mon

11

May

Tue

12

May

Wed

13

May

Thu

14

May

By clicking “Get pre-qualified” and/or 'Submit' you are expressly consenting, in writing, to receive telemarketing and other messages, including artificial or prerecorded voices, via automated calls or texts from jumprealty.ca and up.mortgages at the number you provided above. This consent is not required to purchase any good or service. Message and data rates may apply, frequency varies. Text HELP for help or STOP to cancel. More details in Terms of Use and Privacy Policy.

Listing Agency:  REAL BROKER ONTARIO LTD.

* Data is provided courtesy of PROPTX. The information provided herein must only be used by consumers that have a bona fide interest in the purchase, sale, or lease of real estate and may not be used for any commercial purpose or any other purpose. The information is deemed reliable but is not guaranteed accurate by PROPTX.

Hospital
Parks
Schools
Place of Worship
Please select an amenity above to view a list.

Recommended Properties

Loading...
1722 County 18 Road
North Grenville , Ontario
3 3 $1,150,000
Get more info