For Sale - 177 Walker Road, Pelham, Ontario

Est payment $4,418/mo
Views   1
Time on Jump  1 days
  • Opportunity to build a custom home with an award-winning builder.
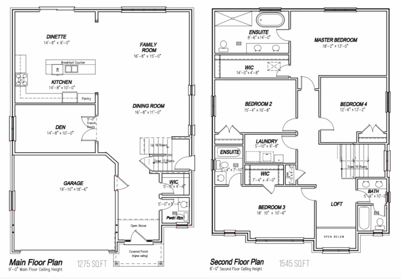
  • Spacious model featuring 4 bedrooms and 3.5 bathrooms for families.
  • Open-concept main level perfect for entertaining and daily living.
  • Dedicated den for use as a home office or quiet retreat.
  • Community offers access to activities at the Meridian Community Centre.



Welcome to your opportunity to build a truly custom home with award-winning builder stallion homes where your vision becomes reality. Designed with families in mind, this stunning model offers 4 spacious bedrooms and 3. 5 bathrooms, along with the convenience of second-floor laundry. The main level is thoughtfully designed with an open-concept layout, featuring a beautiful kitchen that flows seamlessly into the family and dining room perfect for everyday living and entertaining. A dedicated den adds flexibility for a home office or quiet retreat. What truly sets this home apart is the flexibility buyers have the unique opportunity to customize the floor plan to suit their lifestyle, with changes accommodated at no additional cost. If you can envision it, stallion homes can bring it to life. Beyond the home itself, you'll love the exceptional sense of community. Surrounded by beautifully built homes, this neighbourhood offers access to the meridian community centre, where you can enjoy year-round activities including skating, basketball, and a wide variety of programs for all ages. Ideally located just minutes from everyday essentials, top-rated schools, and numerous parks, this is a perfect setting for families to grow, connect, and thrive.
Listing IDX13050506
Address177 Walker Road
CityPelham, Ontario
Price$919,999
Bed / Bath4 / 4 Full
Style2-Storey, Detached
ConstructionBrick, Stone
TypeResidential
StatusFor Sale
Subtype DetachedIndoor Features Sump PumpOwnership FreeholdBasement Separate Entrance, FullFoundation Poured ConcreteHeating / Cooling Forced AirHeating Fuel GasSewer Sewer
Parking 4.00
ASAP

Tue

28

Apr

Wed

29

Apr

Thu

30

Apr

Fri

1

May

Sat

2

May

Sun

3

May

Mon

4

May

Tue

5

May

Wed

6

May

Thu

7

May

Fri

8

May

Sat

9

May

Sun

10

May

Mon

11

May

Tue

12

May

Wed

13

May

Thu

14

May

Fri

15

May

Sat

16

May

Sun

17

May

Mon

18

May

Tue

19

May

Wed

20

May

Thu

21

May

Fri

22

May

Sat

23

May

Sun

24

May

Mon

25

May

Tue

26

May

By clicking “Get pre-qualified” and/or 'Submit' you are expressly consenting, in writing, to receive telemarketing and other messages, including artificial or prerecorded voices, via automated calls or texts from jumprealty.ca and up.mortgages at the number you provided above. This consent is not required to purchase any good or service. Message and data rates may apply, frequency varies. Text HELP for help or STOP to cancel. More details in Terms of Use and Privacy Policy.

Listing Agency:  BOLDT REALTY INC., BROKERAGE

* Data is provided courtesy of PROPTX. The information provided herein must only be used by consumers that have a bona fide interest in the purchase, sale, or lease of real estate and may not be used for any commercial purpose or any other purpose. The information is deemed reliable but is not guaranteed accurate by PROPTX.

Hospital
Parks
Schools
Place of Worship
Please select an amenity above to view a list.

Recommended Properties

Loading...
177 Walker Road
Pelham , Ontario
4 4 $919,999
Get more info