For Sale - 18 Mohawk Drive, Kawartha Lakes, Ontario

Est payment $2,977/mo
Views   1
Time on Jump  1 days
  • Prime location in quiet Springdale Gardens with easy access to parks.
  • Fully renovated kitchen with modern fixtures and appliances.
  • Updated vinyl flooring and main bathroom for convenience.
  • Insulated double garage with 220V service for added functionality.
  • Finished basement with gas fireplace, perfect for cozy gatherings.



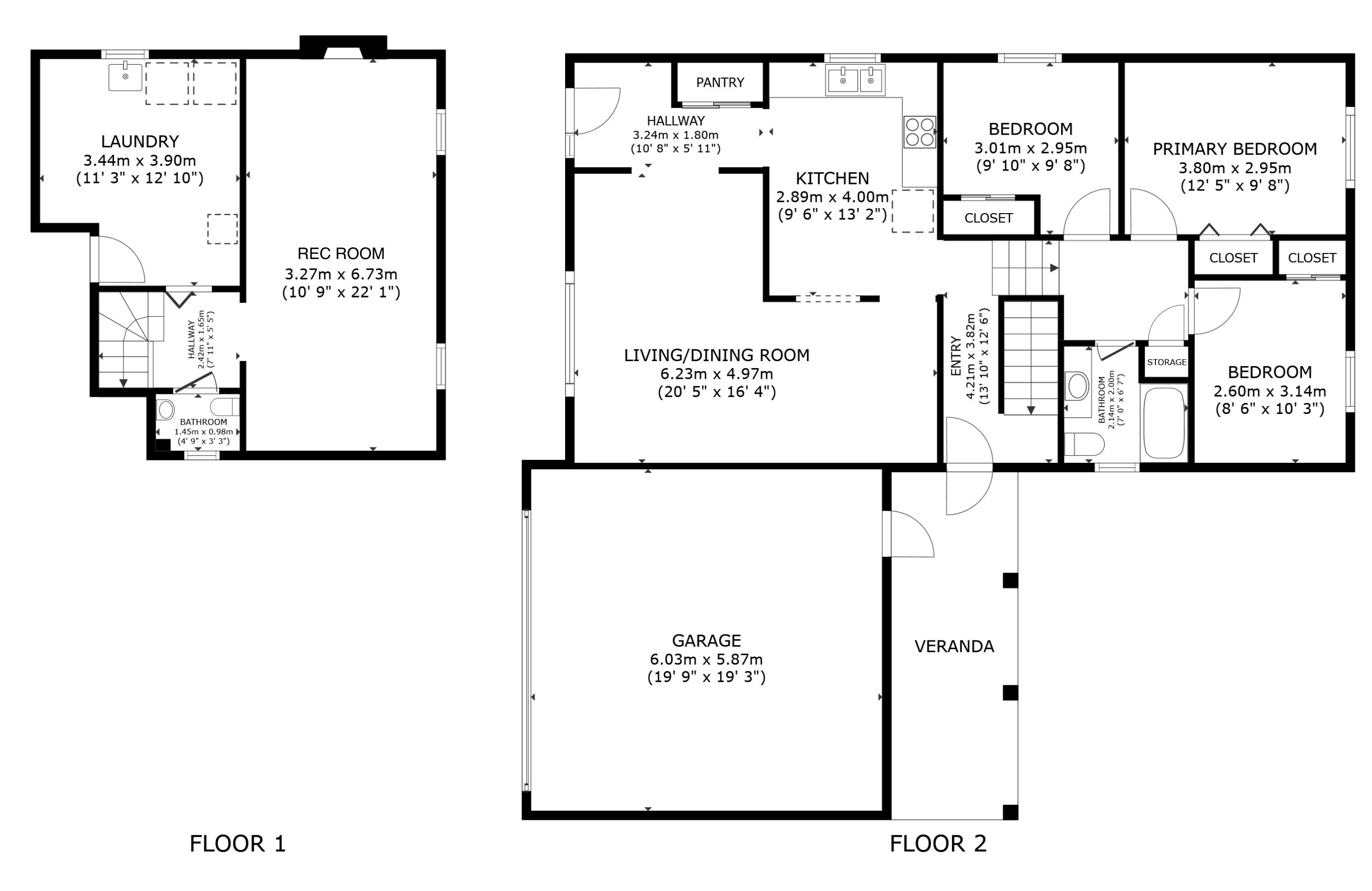
Perfectly located 3-bedroom, 2-bathroom backsplit in quiet springdale gardens. Functional layout with a fully renovated kitchen featuring new cabinetry, fixtures, appliances, pot lighting, and under-cabinet lighting. Updated vinyl flooring on the main level and a fully renovated main bathroom while lower level bathroom is partially updated. Major exterior updates include new vinyl siding with added insulation (2024), new roof on the house, patio enclosure and shed, updated eavestroughs with gutter guards, and a new driveway (2024). Fully fenced backyard with three gates, covered patio with pot lights, and direct access to a large public park. Insulated and heated attached double garage with 220v service. Finished basement with napoleon gas fireplace. Wired for bell fibe. Walking distance to the victoria rail trail and on public and school bus routes. Please see photos for full list of updates.
Listing IDX12935928
Address18 Mohawk Drive
CityKawartha Lakes, Ontario
Price$619,900
Bed / Bath3 / 2 Full
StyleBacksplit 3, Detached
ConstructionBrick, Vinyl Siding
Land Size0.172
TypeResidential
StatusFor Sale
Subtype DetachedIndoor Features Auto Garage Door Remote, Floor DrainOutdoor Features Lighting, Patio, PorchAmenities Fenced Yard, Hospital, Level, Library, Park, Place Of WorshipOwnership FreeholdViews Park/GreenbeltBasement Partial Basement, FinishedFoundation BlockHeating / Cooling Forced AirHeating Fuel GasSewer Sewer
Parking 6.00
ASAP

Tue

31

Mar

Wed

1

Apr

Thu

2

Apr

Fri

3

Apr

Sat

4

Apr

Sun

5

Apr

Mon

6

Apr

Tue

7

Apr

Wed

8

Apr

Thu

9

Apr

Fri

10

Apr

Sat

11

Apr

Sun

12

Apr

Mon

13

Apr

Tue

14

Apr

Wed

15

Apr

Thu

16

Apr

Fri

17

Apr

Sat

18

Apr

Sun

19

Apr

Mon

20

Apr

Tue

21

Apr

Wed

22

Apr

Thu

23

Apr

Fri

24

Apr

Sat

25

Apr

Sun

26

Apr

Mon

27

Apr

Tue

28

Apr

By clicking “Get pre-qualified” and/or 'Submit' you are expressly consenting, in writing, to receive telemarketing and other messages, including artificial or prerecorded voices, via automated calls or texts from jumprealty.ca and up.mortgages at the number you provided above. This consent is not required to purchase any good or service. Message and data rates may apply, frequency varies. Text HELP for help or STOP to cancel. More details in Terms of Use and Privacy Policy.

Listing Agency:  BIRDHOUSE REALTY INC.

* Data is provided courtesy of PROPTX. The information provided herein must only be used by consumers that have a bona fide interest in the purchase, sale, or lease of real estate and may not be used for any commercial purpose or any other purpose. The information is deemed reliable but is not guaranteed accurate by PROPTX.

Hospital
Parks
Schools
Place of Worship
Please select an amenity above to view a list.

Recommended Properties

Loading...
18 Mohawk Drive
Kawartha Lakes , Ontario
3 2 $619,900
Get more info