For Lease - 185 Deerfield Road Unit# 1412, Newmarket, Ontario

Views   1
Time on Jump  1 days
  • Modern 1-bedroom + den suite in a convenient Newmarket location.
  • Bright east-facing exposure with a private balcony for relaxation.
  • Versatile den perfect for office, study, or extra living space.
  • Building amenities include guest suite, party room, and rooftop terrace.
  • Included parking adds convenience in a vibrant community.
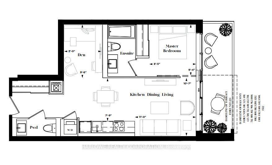
Welcome to the davis by rose corp, where modern living meets convenience in newmarket! Ideally situated just steps from public transit, shopping, restaurants, schools, parks, and more, this residence offers the perfect blend of lifestyle and convenience in one of newmarket's most desirable communities. This 1-bedroom + den, 2-bathroom suite boasts 640 square feet of thoughtfully designed living space. Enjoy a bright east-facing exposure and a private balcony, while the versatile den serves as a home office, study, or extra living area. The functional layout maximizes comfort and efficiency. Building amenities include a guest suite, party room, kids' playroom, rooftop terrace, pet spa, and visitor parking. Parking is included, adding to the convenience and value of this fantastic opportunity. Experience modern, stylish condo living in a vibrant, well-connected neighbourhood.
Listing IDN13010028
Address185 Deerfield Road Unit# 1412
CityNewmarket, Ontario
Lease$2,300
Bed / Bath2 / 2 Full
StyleApartment, Condo Apartment
ConstructionConcrete
TypeCondominium
StatusFor Lease
Subtype Condo ApartmentIndoor Features None, EnsuiteInclusions Building Insurance, Central Air Conditioning, High Speed Internet, Parking, Common ElementsOwnership LeaseholdBasement NoneHeating / Cooling Forced AirHeating Fuel Electric
Parking 1.00
ASAP

Sat

18

Apr

Sun

19

Apr

Mon

20

Apr

Tue

21

Apr

Wed

22

Apr

Thu

23

Apr

Fri

24

Apr

Sat

25

Apr

Sun

26

Apr

Mon

27

Apr

Tue

28

Apr

Wed

29

Apr

Thu

30

Apr

Fri

1

May

Sat

2

May

Sun

3

May

Mon

4

May

Tue

5

May

Wed

6

May

Thu

7

May

Fri

8

May

Sat

9

May

Sun

10

May

Mon

11

May

Tue

12

May

Wed

13

May

Thu

14

May

Fri

15

May

Sat

16

May

By clicking “Get pre-qualified” and/or 'Submit' you are expressly consenting, in writing, to receive telemarketing and other messages, including artificial or prerecorded voices, via automated calls or texts from jumprealty.ca and up.mortgages at the number you provided above. This consent is not required to purchase any good or service. Message and data rates may apply, frequency varies. Text HELP for help or STOP to cancel. More details in Terms of Use and Privacy Policy.

Listing Agency:  BAYTREE REAL ESTATE INC.

* Data is provided courtesy of PROPTX. The information provided herein must only be used by consumers that have a bona fide interest in the purchase, sale, or lease of real estate and may not be used for any commercial purpose or any other purpose. The information is deemed reliable but is not guaranteed accurate by PROPTX.

Hospital
Parks
Schools
Place of Worship
Please select an amenity above to view a list.

Recommended Properties

Loading...
185 Deerfield Road Unit# 1412
Newmarket , Ontario
2 2 $2,300
Get more info