For Lease - 187 Jane Street Unit# 2, Toronto, Ontario

Views   1
Time on Jump  1 days
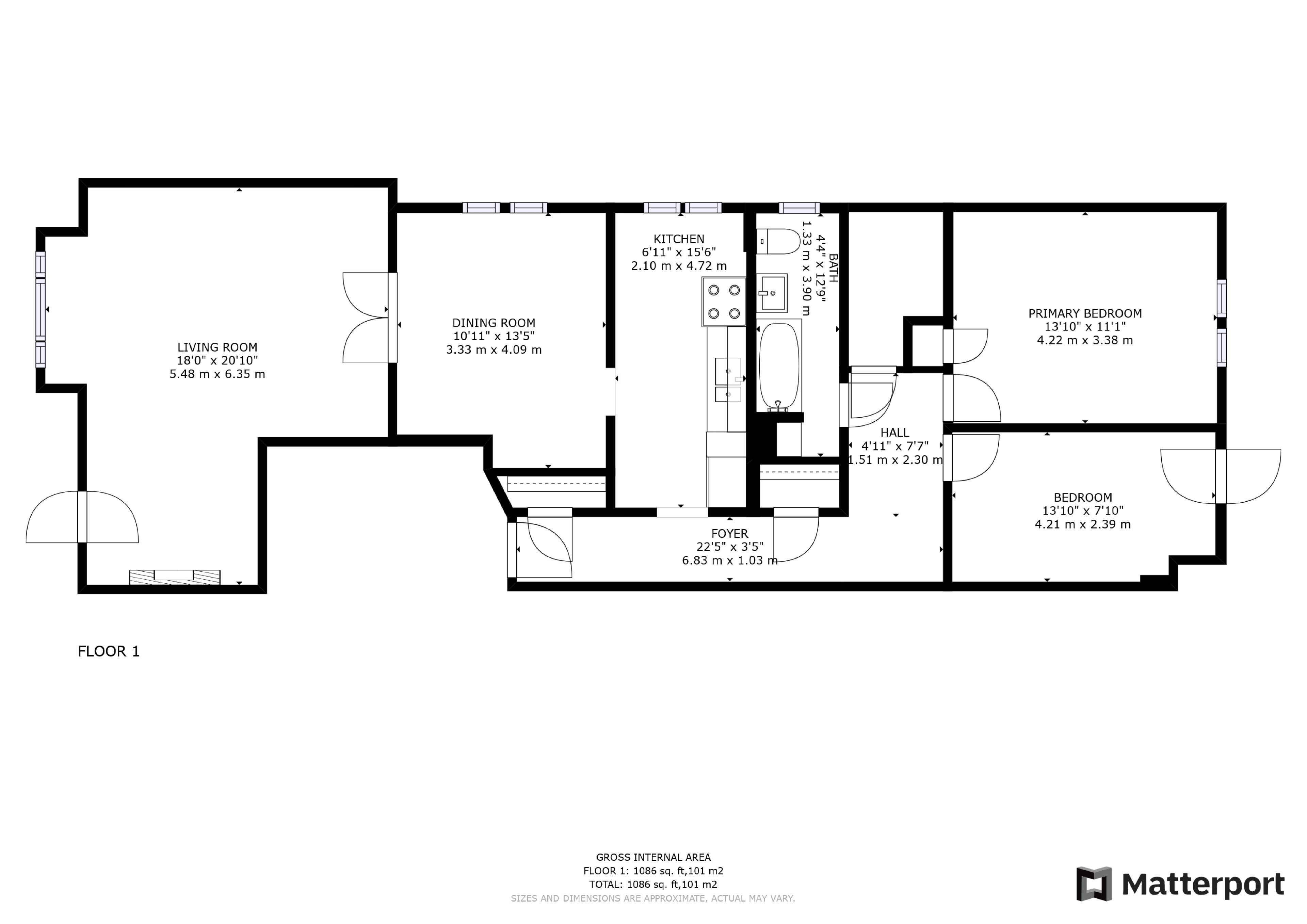
  • Bright and spacious 1000+ square feet with abundant natural light.
  • Separate dining room and updated kitchen with quartz countertops.
  • Two bedrooms, one with access to a balcony.
  • Convenient onsite laundry and secure bike storage available.
  • Walking distance to Bloor West Village shops and Jane Subway.
Discover this bright and spacious 1000+ square feet, 2 bedroom, 1 bathroom second floor unit in bloor west village! Features include: a large living room flooded with natural light and a decorative fireplace, separate dining room, updated kitchen with quartz counters and full-sized stainless steel appliances, a primary bedroom with closet, a second bedroom with a walk-out to a balcony, a 4-piece bathroom, and sound-proofed ceilings. Fully independent a/c and heat control. Hydro & gas are extra. Onsite laundry & secure bike storage is available. 1 parking space is included. Stroll to the shops and restaurants of bloor west village & baby point gates. Easy walk to the jane subway and the humber river parklands. Available march 1.
Listing IDW12636214
Address187 Jane Street Unit# 2
CityToronto, Ontario
Lease$2,750
Bed / Bath2 / 1 Full
StyleApartment, Multiplex
ConstructionStucco (Plaster)
TypeMulti-Family
StatusFor Lease
Subtype MultiplexIndoor Features Carpet Free, SharedInclusions Grounds Maintenance, Parking, Water, HeatOwnership LeaseholdBasement NoneFoundation ConcreteHeating / Cooling RadiantHeating Fuel GasSewer Sewer
Parking 1.00
ASAP

Thu

18

Dec

Fri

19

Dec

Sat

20

Dec

Sun

21

Dec

Mon

22

Dec

Tue

23

Dec

Wed

24

Dec

Thu

25

Dec

Fri

26

Dec

Sat

27

Dec

Sun

28

Dec

Mon

29

Dec

Tue

30

Dec

Wed

31

Dec

Thu

1

Jan

Fri

2

Jan

Sat

3

Jan

Sun

4

Jan

Mon

5

Jan

Tue

6

Jan

Wed

7

Jan

Thu

8

Jan

Fri

9

Jan

Sat

10

Jan

Sun

11

Jan

Mon

12

Jan

Tue

13

Jan

Wed

14

Jan

Thu

15

Jan

By clicking “Get pre-qualified” and/or 'Submit' you are expressly consenting, in writing, to receive telemarketing and other messages, including artificial or prerecorded voices, via automated calls or texts from jumprealty.ca and up.mortgages at the number you provided above. This consent is not required to purchase any good or service. Message and data rates may apply, frequency varies. Text HELP for help or STOP to cancel. More details in Terms of Use and Privacy Policy.

Listing Agency:  BABIAK TEAM REAL ESTATE BROKERAGE LTD.
Hospital
Parks
Schools
Place of Worship
Please select an amenity above to view a list.

Recommended Properties

Loading...
187 Jane Street Unit# 2
Toronto , Ontario
2 1 $2,750
Get more info