For Lease - 189 Kent Street Unit# 107, Kawartha Lakes, Ontario

Views   1
Time on Jump  89 day
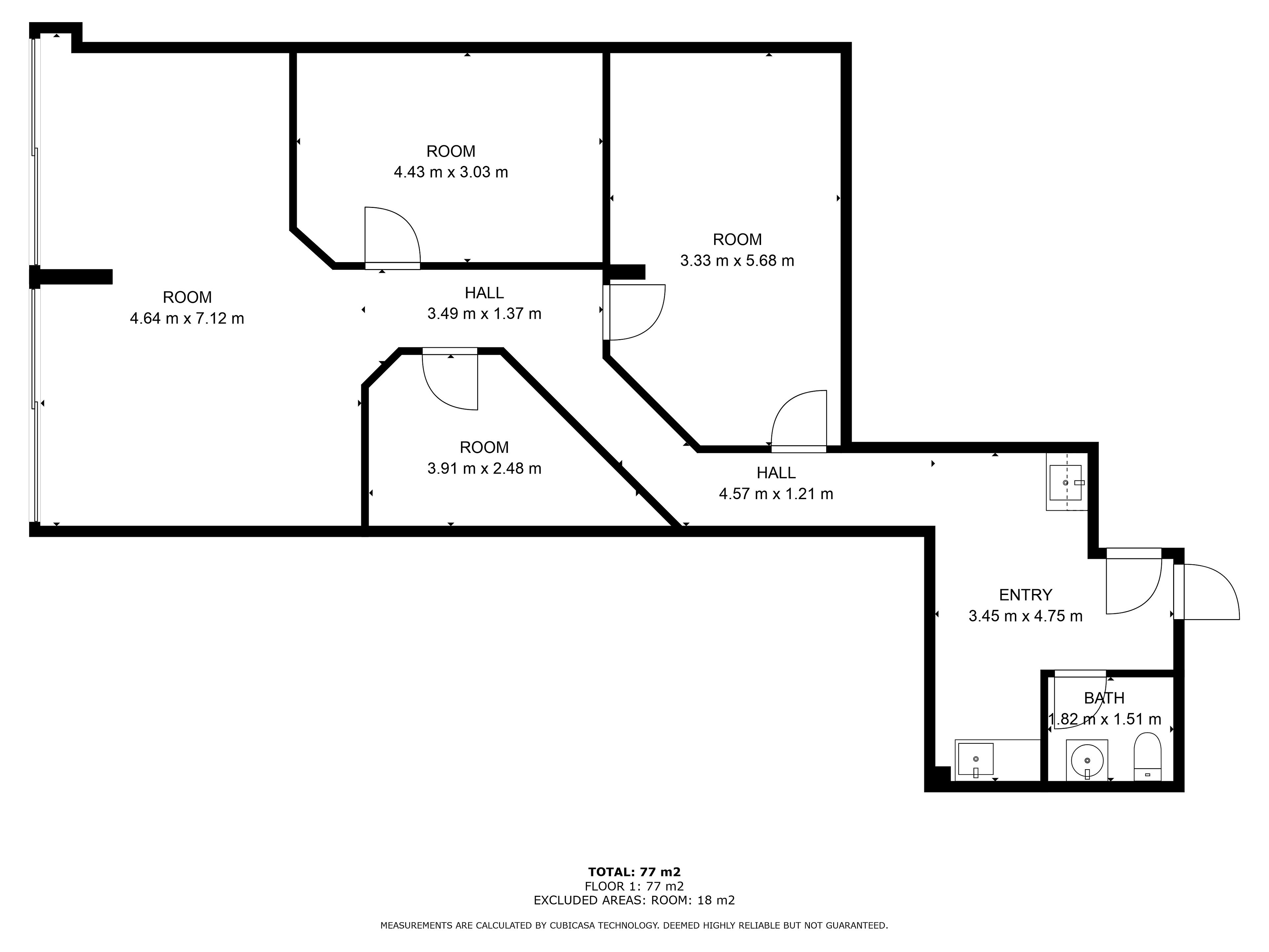
  • Main floor leasing opportunity with 1126 sq ft of versatile space.
  • Large reception area alongside two exam rooms or offices.
  • Functional kitchenette and in-suite washroom for convenience.
  • Direct access from parking lot for easy client visits.
  • Bonus 2360 sq ft unit available for a larger combined space.
Kent place - main floor leasing opportunity of 1126 sq ft! Large glass (locking) sliding doors, previously used as a hearing clinic. Large reception space, two exam rooms/offices, large board room, kitchenette & in suite washroom. Direct access from parking lot. Bonus adjacent 2360 sq ft unit could be combined to offer a total of nearly 3500 sq feet. Kent place is a premier downtown lindsay corner commercial building with an excellent mix of professional offices & services. Businesses such as rbc bank, pharmacy, insurance agency, many law offices & medical offices. Lovely open atrium with skylights with passenger elevator. Plenty of available shared parking on site. Plus municipal parking nearby. **extras** heat, hydro & water included in additional rent. Additional rent: $16. 30 psf for 2023-2024.
Listing IDX11911814
Address189 Kent Street Unit# 107
CityKawartha Lakes, Ontario
Lease$18
StyleOffice
TypeIndustrial/Commercial
StatusFor Lease
Subtype OfficeCommunity Features Public TransitOwnership LeaseholdHeating / Cooling Gas Forced Air OpenSewer Sanitary+Storm
ASAP

Tue

16

Dec

Wed

17

Dec

Thu

18

Dec

Fri

19

Dec

Sat

20

Dec

Sun

21

Dec

Mon

22

Dec

Tue

23

Dec

Wed

24

Dec

Thu

25

Dec

Fri

26

Dec

Sat

27

Dec

Sun

28

Dec

Mon

29

Dec

Tue

30

Dec

Wed

31

Dec

Thu

1

Jan

Fri

2

Jan

Sat

3

Jan

Sun

4

Jan

Mon

5

Jan

Tue

6

Jan

Wed

7

Jan

Thu

8

Jan

Fri

9

Jan

Sat

10

Jan

Sun

11

Jan

Mon

12

Jan

Tue

13

Jan

By clicking “Get pre-qualified” and/or 'Submit' you are expressly consenting, in writing, to receive telemarketing and other messages, including artificial or prerecorded voices, via automated calls or texts from jumprealty.ca and up.mortgages at the number you provided above. This consent is not required to purchase any good or service. Message and data rates may apply, frequency varies. Text HELP for help or STOP to cancel. More details in Terms of Use and Privacy Policy.

Listing Agency:  BIRDHOUSE REALTY INC.
Hospital
Parks
Schools
Place of Worship
Please select an amenity above to view a list.

Recommended Properties

Loading...
189 Kent Street Unit# 107
Kawartha Lakes , Ontario
$18
Get more info