For Sale - 193 Pine Cove Road, Burlington, Ontario

Est payment $8,115/mo
Views   1
Time on Jump  1 days
  • Located in prestigious Roseland, close to waterfront and downtown.
  • Spacious family room with a cozy fireplace and built-in bookshelves.
  • Fully-finished basement features an in-law suite with a separate entrance.
  • Private backyard oasis with hot tub, outdoor shower, and multilevel deck.
  • Ample parking available for up to 6 cars, plus solar panels for extra income.



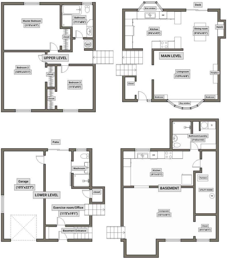
*** visit the realtor website for further information about this listing *** this detached home is located in south burlington, in the prestigious community of roseland. Steps to the waterfront, and minutes from downtown with several sought after schools nearby, as well as multiple parks, community centres, and trails. The home features a spacious family room with a cozy fireplace, and built-in bookshelves on jatoba (brazilian cherry) hardwood floors. The ground floor walkout room is set up as a gym on porcelain tiles, but can be used as a living room or games room. Adjacent to this room there is a 3-piece washroom with heated floor and heated towel rack. Three bedrooms, a 4-piece washroom, and a washer/dryer closet complete the upstairs living space. The spa-like bathroom showcases a shower with body jets and a jacuzzi tub. The fully-finished basement hosts an in-law suite with a separate entrance. This studio apartment includes a kitchen with a standard sized fridge and stove and a 3-piece washroom with washer and dryer. The backyard features a hot tub, outdoor shower and multilevel deck and patio. The custom made shed provides ample storage. This private outdoor oasis is hardscaped throughout, with the right balance of greenery and privacy which can be enjoyed year round. A programmable irrigation system for easy maintenance keeps the individual gardens blooming. The extended driveway provides ample parking for up to 6 cars. Solar panels provide additional income.
Listing IDW12986048
Address193 Pine Cove Road
CityBurlington, Ontario
Price$1,689,900
Bed / Bath4 / 3 Full
StyleSidesplit 3, Detached
ConstructionBrick, Stone
TypeResidential
StatusFor Sale
Subtype DetachedIndoor Features Accessory Apartment, Air Exchanger, Auto Garage Door Remote, Carpet Free, Floor Drain, Guest Accommodations, In-Law Capability, In-Law Suite, Solar Owned, Water Heater, Water Meter, WorkbenchOutdoor Features Deck, Hot Tub, Landscape Lighting, Landscaped, Lawn Sprinkler System, Lighting, Patio, Paved Yard, Privacy, PorchAmenities Beach, Hospital, Library, Park, Public Transit, Rec./Commun.CentreOwnership FreeholdViews Trees/WoodsAppliances Raised ToiletBasement Finished, Separate EntranceFoundation Brick, Concrete BlockHeating / Cooling Forced AirHeating Fuel GasSewer Sewer
Parking 7.00
ASAP

Sat

11

Apr

Sun

12

Apr

Mon

13

Apr

Tue

14

Apr

Wed

15

Apr

Thu

16

Apr

Fri

17

Apr

Sat

18

Apr

Sun

19

Apr

Mon

20

Apr

Tue

21

Apr

Wed

22

Apr

Thu

23

Apr

Fri

24

Apr

Sat

25

Apr

Sun

26

Apr

Mon

27

Apr

Tue

28

Apr

Wed

29

Apr

Thu

30

Apr

Fri

1

May

Sat

2

May

Sun

3

May

Mon

4

May

Tue

5

May

Wed

6

May

Thu

7

May

Fri

8

May

Sat

9

May

By clicking “Get pre-qualified” and/or 'Submit' you are expressly consenting, in writing, to receive telemarketing and other messages, including artificial or prerecorded voices, via automated calls or texts from jumprealty.ca and up.mortgages at the number you provided above. This consent is not required to purchase any good or service. Message and data rates may apply, frequency varies. Text HELP for help or STOP to cancel. More details in Terms of Use and Privacy Policy.

Listing Agency:  EASY LIST REALTY LTD.

* Data is provided courtesy of PROPTX. The information provided herein must only be used by consumers that have a bona fide interest in the purchase, sale, or lease of real estate and may not be used for any commercial purpose or any other purpose. The information is deemed reliable but is not guaranteed accurate by PROPTX.

Hospital
Parks
Schools
Place of Worship
Please select an amenity above to view a list.

Recommended Properties

Loading...
193 Pine Cove Road
Burlington , Ontario
4 3 $1,689,900
Get more info