For Lease - 194 Woolwich Street, Woolwich, Ontario

Views   2
Time on Jump  47 day
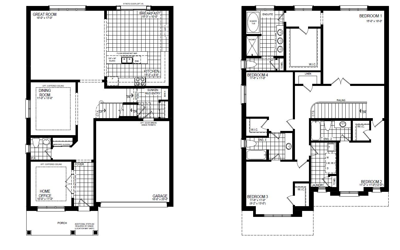
  • Spacious 3,089 sqft home with 4+1 bedrooms and 3.5 bathrooms.
  • Modern kitchen has stainless steel appliances and oversized island.
  • Private fenced backyard accessible from the kitchen for outdoor activities.
  • All bedrooms feature walk-in closets, with two having ensuites.
  • Great location with nearby schools and easy access to amenities.
!! Must see!! Rare to find a rental of this quality. 3,089sqft, 4+1bd, 3. 5bth, 4 car parking (2 garage 2 driveway). Home is only 4 years old. Main floor boasts great room with huge kitchen oversized island, breakfast area and living rm with gas fireplace. Stainless steel appliances in kitchen. Separate formal dining, front office w/ glass french doors, pwdr rm, and mudroom garage entrance. Main floor features 9ft ceilings , oak hardwood every where except tile in wet areas and matching oak stairs, massive windows throughout. Large private fenced backyard with entrance from kitchen. 2nd level features primary bed oasis with grand ensuite including soaker tub, large separate shower, hidden toilet and upgraded vanity and dedicated linen closet. Also include w/i closet larger than some bedrooms! All bedrooms have w/i closets, 2 have ensuites, 2 share a jack & jill. Large upstairs laundry w/ modern appliances, laundry sink and storage. Extra closets found throughout the property for endless storage options. Basement not included, but can be for additional rent. No added cost for water heater or water softner. Great location in a family friendly neighbourhood, schools near by, easy access to commercial amenities. Some furniture available to be included.
Listing IDX12794866
Address194 Woolwich Street
CityWoolwich, Ontario
Lease$3,650
Bed / Bath5 / 4 Full
Style2-Storey, Detached
ConstructionBrick
TypeResidential
StatusFor Lease
Subtype DetachedIndoor Features Auto Garage Door Remote, ERV/HRV, Water Heater, Ensuite, Laundry RoomOutdoor Features Landscaped, PorchInclusions Parking, Water HeaterAmenities Fenced Yard, Park, Place Of Worship, Rec./Commun.CentreOwnership LeaseholdBasement UnfinishedFoundation ConcreteHeating / Cooling Forced AirHeating Fuel GasSewer Sewer
Parking 4.00
ASAP

Mon

6

Apr

Tue

7

Apr

Wed

8

Apr

Thu

9

Apr

Fri

10

Apr

Sat

11

Apr

Sun

12

Apr

Mon

13

Apr

Tue

14

Apr

Wed

15

Apr

Thu

16

Apr

Fri

17

Apr

Sat

18

Apr

Sun

19

Apr

Mon

20

Apr

Tue

21

Apr

Wed

22

Apr

Thu

23

Apr

Fri

24

Apr

Sat

25

Apr

Sun

26

Apr

Mon

27

Apr

Tue

28

Apr

Wed

29

Apr

Thu

30

Apr

Fri

1

May

Sat

2

May

Sun

3

May

Mon

4

May

By clicking “Get pre-qualified” and/or 'Submit' you are expressly consenting, in writing, to receive telemarketing and other messages, including artificial or prerecorded voices, via automated calls or texts from jumprealty.ca and up.mortgages at the number you provided above. This consent is not required to purchase any good or service. Message and data rates may apply, frequency varies. Text HELP for help or STOP to cancel. More details in Terms of Use and Privacy Policy.

Listing Agency:  CENTURY 21 MILLENNIUM INC.

* Data is provided courtesy of PROPTX. The information provided herein must only be used by consumers that have a bona fide interest in the purchase, sale, or lease of real estate and may not be used for any commercial purpose or any other purpose. The information is deemed reliable but is not guaranteed accurate by PROPTX.

Hospital
Parks
Schools
Place of Worship
Please select an amenity above to view a list.

Recommended Properties

Loading...
194 Woolwich Street
Woolwich , Ontario
5 4 $3,650
Get more info