For Lease - 197 Yonge Street Unit# 3514, Toronto, Ontario

Views   2
Time on Jump  41 day
  • Prime downtown location near the Eaton Centre and major retail stores.
  • Short walk to Massey Hall for concerts and events.
  • Convenient subway service at Queen Station for easy travel.
  • Spacious 1 bedroom + den with city views and modern finishes.
  • Luxurious amenities including fitness center, sauna, and rooftop garden.
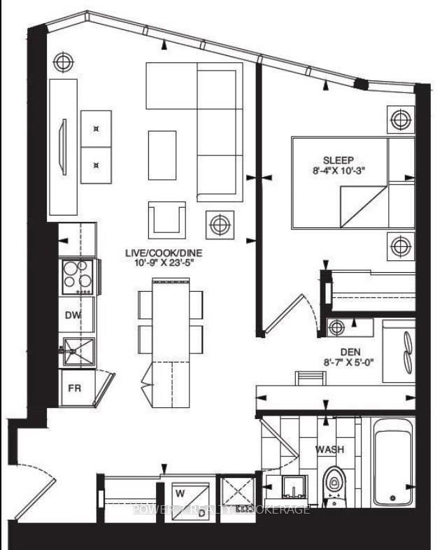
A superb location in the core of downtown toronto, the eaton centre is across the street for over 200 hundred stores and all the big retail stores. Music fans have massey hall around the corner on shutter - a famed venue for concerts and there's subway service at queen station for trips to the scotiabank arena to enjoy the raptor games. Approx. 610 sf 1 bedroom + den at massey tower with city views, sun-filled suite w/ 9 ft ceiling, upgraded laminate flooring thru, modern kitchen boast large centre island, top of the line kitchen appliances. Steps to everything you wish to live in the downtown lifestyle. A luxurious 5-star amenities include a fully equipped fitness & weight centre, steam room, rain room, sauna, juice bar, cocktail lounge, piano bar with terrace, 24-hour concierge service, 2 guest suites, roof top garden, water feature, seating area, parking garage and more
Listing IDC12806380
Address197 Yonge Street Unit# 3514
CityToronto, Ontario
Lease$2,499
Bed / Bath2 / 1 Full
StyleApartment, Condo Apartment
ConstructionConcrete
TypeCondominium
StatusFor Lease
Subtype Condo ApartmentIndoor Features Carpet Free, EnsuiteInclusions Building Insurance, Cable TV, Central Air Conditioning, Common Elements, HeatAmenities Clear View, Hospital, Library, Park, Place Of Worship, Public TransitOwnership LeaseholdBuilding Amenities Concierge, Elevator, Guest Suites, Gym, Party Room/Meeting Room, Rooftop Deck/GardenBasement NoneHeating / Cooling Forced AirHeating Fuel Gas
ASAP

Fri

3

Apr

Sat

4

Apr

Sun

5

Apr

Mon

6

Apr

Tue

7

Apr

Wed

8

Apr

Thu

9

Apr

Fri

10

Apr

Sat

11

Apr

Sun

12

Apr

Mon

13

Apr

Tue

14

Apr

Wed

15

Apr

Thu

16

Apr

Fri

17

Apr

Sat

18

Apr

Sun

19

Apr

Mon

20

Apr

Tue

21

Apr

Wed

22

Apr

Thu

23

Apr

Fri

24

Apr

Sat

25

Apr

Sun

26

Apr

Mon

27

Apr

Tue

28

Apr

Wed

29

Apr

Thu

30

Apr

Fri

1

May

By clicking “Get pre-qualified” and/or 'Submit' you are expressly consenting, in writing, to receive telemarketing and other messages, including artificial or prerecorded voices, via automated calls or texts from jumprealty.ca and up.mortgages at the number you provided above. This consent is not required to purchase any good or service. Message and data rates may apply, frequency varies. Text HELP for help or STOP to cancel. More details in Terms of Use and Privacy Policy.

Listing Agency:  POWER 7 REALTY

* Data is provided courtesy of PROPTX. The information provided herein must only be used by consumers that have a bona fide interest in the purchase, sale, or lease of real estate and may not be used for any commercial purpose or any other purpose. The information is deemed reliable but is not guaranteed accurate by PROPTX.

Hospital
Parks
Schools
Place of Worship
Please select an amenity above to view a list.

Recommended Properties

Loading...
197 Yonge Street Unit# 3514
Toronto , Ontario
2 1 $2,499
Get more info