For Lease - 198 Welland Street, Port Colborne, Ontario

Views   1
Time on Jump  197 day
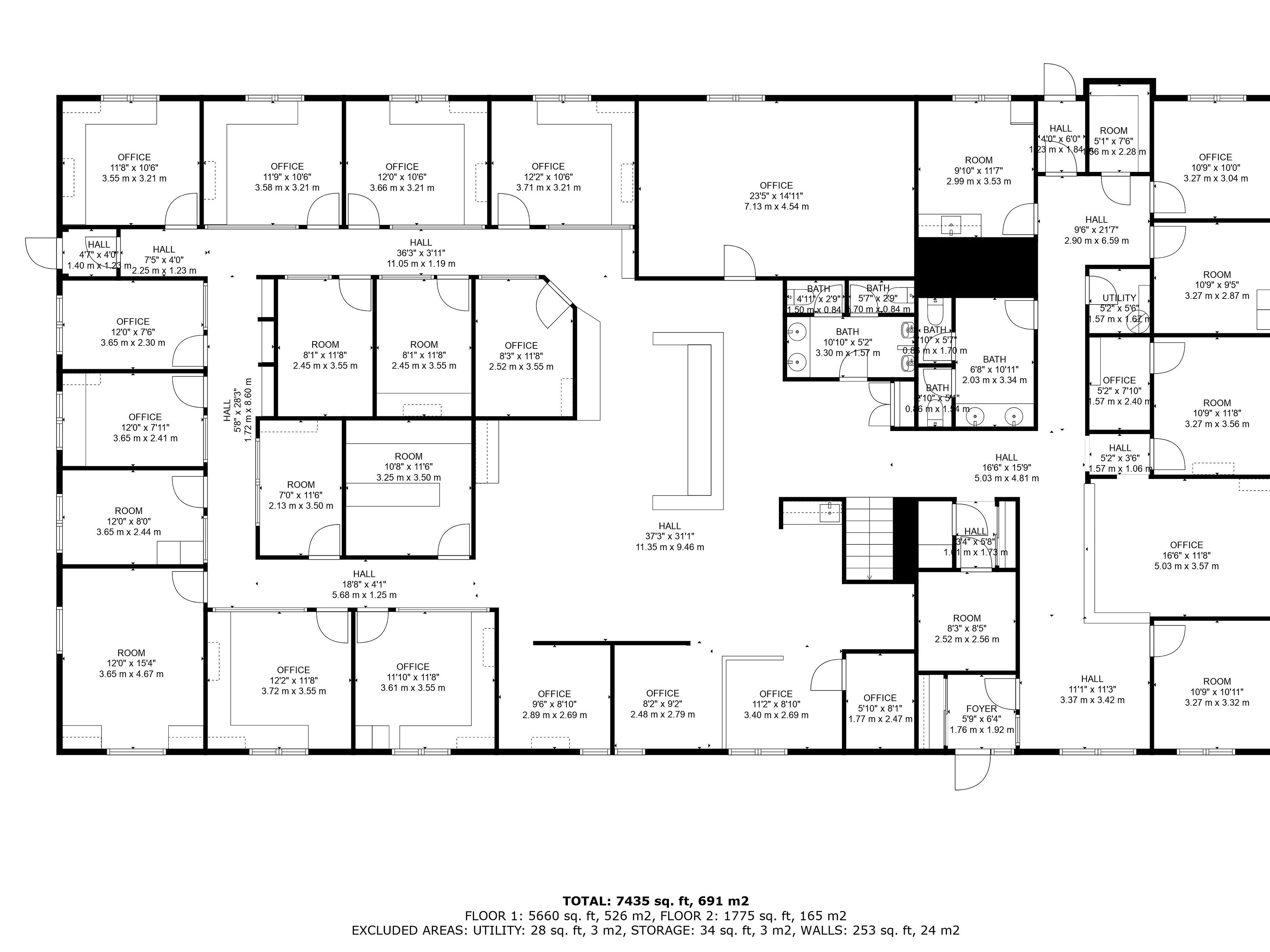
  • Spacious 8,000 sf office/industrial building with two levels and many offices.
  • Paved parking for 30+ vehicles, perfect for employees and visitors.
  • Versatile zoning allows for various business uses including light industry and retail.
  • Located near the Welland Canal, enhancing opportunities for waterfront activity.
  • City support for area improvement guarantees potential for growth and development.
East village | canal side flex office/industrial at the sw corner of clarence st & welland st steps to the welland canal. The property offers ~ 8,000 sf across two levels with ~25 private offices, collaboration rooms and a paved onsite lot. Paved parking area for 30+ vehicles. Current layout supports office, professional services, technical trades, training/education and light industrial users. The light industrial zoning is exceptionally versatile, allowing contractors yard, light industry, education facility, motor vehicle repair, research facility, and accessory office/retail/restaurant options, among others. City is very supportive of improving the area. The location benefits from port colborne's record cruise season (70+ stops apr - oct) and continued waterfront activity. Well built free standing building.
Listing IDX12381719
Address198 Welland Street
CityPort Colborne, Ontario
Lease$18
Bath3 Full
StyleCommercial Retail
Land Size40849
TypeIndustrial/Commercial
StatusFor Lease
Subtype Commercial RetailCommunity Features Major HighwayOwnership LeaseholdHeating / Cooling Gas Forced Air Closed
ASAP

Fri

3

Apr

Sat

4

Apr

Sun

5

Apr

Mon

6

Apr

Tue

7

Apr

Wed

8

Apr

Thu

9

Apr

Fri

10

Apr

Sat

11

Apr

Sun

12

Apr

Mon

13

Apr

Tue

14

Apr

Wed

15

Apr

Thu

16

Apr

Fri

17

Apr

Sat

18

Apr

Sun

19

Apr

Mon

20

Apr

Tue

21

Apr

Wed

22

Apr

Thu

23

Apr

Fri

24

Apr

Sat

25

Apr

Sun

26

Apr

Mon

27

Apr

Tue

28

Apr

Wed

29

Apr

Thu

30

Apr

Fri

1

May

By clicking “Get pre-qualified” and/or 'Submit' you are expressly consenting, in writing, to receive telemarketing and other messages, including artificial or prerecorded voices, via automated calls or texts from jumprealty.ca and up.mortgages at the number you provided above. This consent is not required to purchase any good or service. Message and data rates may apply, frequency varies. Text HELP for help or STOP to cancel. More details in Terms of Use and Privacy Policy.

Listing Agency:  RE/MAX ABOUTOWNE REALTY CORP.

* Data is provided courtesy of PROPTX. The information provided herein must only be used by consumers that have a bona fide interest in the purchase, sale, or lease of real estate and may not be used for any commercial purpose or any other purpose. The information is deemed reliable but is not guaranteed accurate by PROPTX.

Hospital
Parks
Schools
Place of Worship
Please select an amenity above to view a list.

Recommended Properties

Loading...
198 Welland Street
Port Colborne , Ontario
3 $18
Get more info