For Lease - 2 Alderson Court Unit# 1, New Tecumseth, Ontario

Views   1
Time on Jump  3 day
  • New industrial-office units in one of Alliston's growing employment districts.
  • Easy access to Honda Manufacturing and Highway 89 for excellent connectivity.
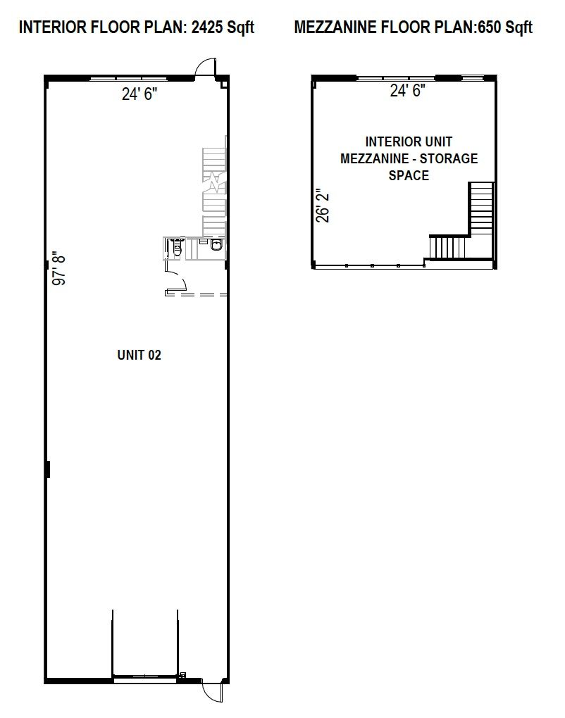
  • Spacious layouts ranging from 2,425 to 3,075 SF with high ceilings.
  • Built for efficiency with modern energy-saving systems and ample parking.
  • Zoned for various uses, including office and light manufacturing options.
Elevate your business with alliston's new premier industrial-office opportunityunlock the potential of your business in one of alliston's fastest-growing employment districts. Whether you are looking to expand or establish a new flagship location, 2 alderson court offers an exceptional opportunity to lease modern, new-construction units designed for high-performance businesses. Position your team in a high-exposure hub just minutes from the honda manufacturing facility and highway 89, offering seamless connectivity within a rapidly growing business park. These modern industrial units feature versatile layouts from 2,425 to 3,075 sf, boasting 22 ft clear heights and massive 10' x 14' rear drive-in doors for maximum logistical efficiency. Each space is built for performance with energy-efficient systems, ample parking, and a 650 sf light-filled mezzanine perfect for office or storage use. Zoned ea2-13, it supports a wide range of uses, including office, light manufacturing, contractor services, and research and development, making it a versatile and attractive option.
Listing IDN13022278
Address2 Alderson Court Unit# 1
CityNew Tecumseth, Ontario
Lease$19
StyleIndustrial
TypeIndustrial/Commercial
StatusFor Lease
Subtype IndustrialOwnership LeaseholdHeating / Cooling Gas Forced Air Open
ASAP

Sat

25

Apr

Sun

26

Apr

Mon

27

Apr

Tue

28

Apr

Wed

29

Apr

Thu

30

Apr

Fri

1

May

Sat

2

May

Sun

3

May

Mon

4

May

Tue

5

May

Wed

6

May

Thu

7

May

Fri

8

May

Sat

9

May

Sun

10

May

Mon

11

May

Tue

12

May

Wed

13

May

Thu

14

May

Fri

15

May

Sat

16

May

Sun

17

May

Mon

18

May

Tue

19

May

Wed

20

May

Thu

21

May

Fri

22

May

Sat

23

May

By clicking “Get pre-qualified” and/or 'Submit' you are expressly consenting, in writing, to receive telemarketing and other messages, including artificial or prerecorded voices, via automated calls or texts from jumprealty.ca and up.mortgages at the number you provided above. This consent is not required to purchase any good or service. Message and data rates may apply, frequency varies. Text HELP for help or STOP to cancel. More details in Terms of Use and Privacy Policy.

Listing Agency:  COLDWELL BANKER RONAN REALTY

* Data is provided courtesy of PROPTX. The information provided herein must only be used by consumers that have a bona fide interest in the purchase, sale, or lease of real estate and may not be used for any commercial purpose or any other purpose. The information is deemed reliable but is not guaranteed accurate by PROPTX.

Hospital
Parks
Schools
Place of Worship
Please select an amenity above to view a list.

Recommended Properties

Loading...
2 Alderson Court Unit# 1
New Tecumseth , Ontario
$19
Get more info