For Sale - 2 Country Club Drive, Hamilton, Ontario

Est payment $3,313/mo
Views   1
Time on Jump  1 days
  • Renovated semi-detached house in a prime location.
  • Three levels with spacious living and dining areas.
  • Fully finished basement with separate entrance and potential in-law suite.
  • Custom kitchen features quartz countertops and island.
  • Large fenced yard and double cement driveway for convenience.



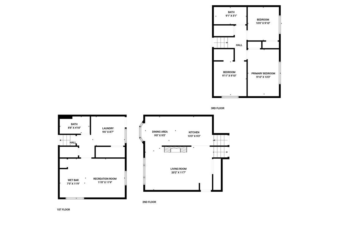
Renovated semi detached house at an excellent location. Three level back split 3 bedrooms, 2 full washroom, fully finished basement, separate entrance, potential of in law suite. Or use second kitchen as a wet bar built inside the rec room. Main floor with open concept offers living room, dining area , custom eat in kitchen/island and quartz counter top. Upper level fairly good size 3 bedrooms with updated washroom. Lower level fully finished , rec room/w fireplace, kitchen or can be used as wet-bar, full three piece washroom & laundry area. Fully fence extra large yard, double drivee cement driveway. All measurements and square feet as per attached floor plan. Sq feet & room sizes are approx.
Listing IDX12905116
Address2 Country Club Drive
CityHamilton, Ontario
Price$689,900
Bed / Bath3 / 2 Full
StyleBacksplit 3, Semi-Detached
ConstructionAluminum Siding, Brick
TypeResidential
StatusFor Sale
Subtype Semi-Detached Indoor Features Carpet Free, On Demand Water Heater, StorageAmenities Fenced Yard, Hospital, Place Of Worship, SchoolOwnership FreeholdViews ClearBasement Finished, Separate EntranceFoundation BlockHeating / Cooling Forced AirHeating Fuel GasSewer Sewer
Parking 2.00
ASAP

Sat

21

Mar

Sun

22

Mar

Mon

23

Mar

Tue

24

Mar

Wed

25

Mar

Thu

26

Mar

Fri

27

Mar

Sat

28

Mar

Sun

29

Mar

Mon

30

Mar

Tue

31

Mar

Wed

1

Apr

Thu

2

Apr

Fri

3

Apr

Sat

4

Apr

Sun

5

Apr

Mon

6

Apr

Tue

7

Apr

Wed

8

Apr

Thu

9

Apr

Fri

10

Apr

Sat

11

Apr

Sun

12

Apr

Mon

13

Apr

Tue

14

Apr

Wed

15

Apr

Thu

16

Apr

Fri

17

Apr

Sat

18

Apr

By clicking “Get pre-qualified” and/or 'Submit' you are expressly consenting, in writing, to receive telemarketing and other messages, including artificial or prerecorded voices, via automated calls or texts from jumprealty.ca and up.mortgages at the number you provided above. This consent is not required to purchase any good or service. Message and data rates may apply, frequency varies. Text HELP for help or STOP to cancel. More details in Terms of Use and Privacy Policy.

Listing Agency:  RE/MAX ESCARPMENT REALTY INC.

* Data is provided courtesy of PROPTX. The information provided herein must only be used by consumers that have a bona fide interest in the purchase, sale, or lease of real estate and may not be used for any commercial purpose or any other purpose. The information is deemed reliable but is not guaranteed accurate by PROPTX.

Hospital
Parks
Schools
Place of Worship
Please select an amenity above to view a list.

Recommended Properties

Loading...
2 Country Club Drive
Hamilton , Ontario
3 2 $689,900
Get more info