For Lease - 20 Cachet Woods Court Unit# 2, Markham, Ontario

Views   1
Time on Jump  90 day
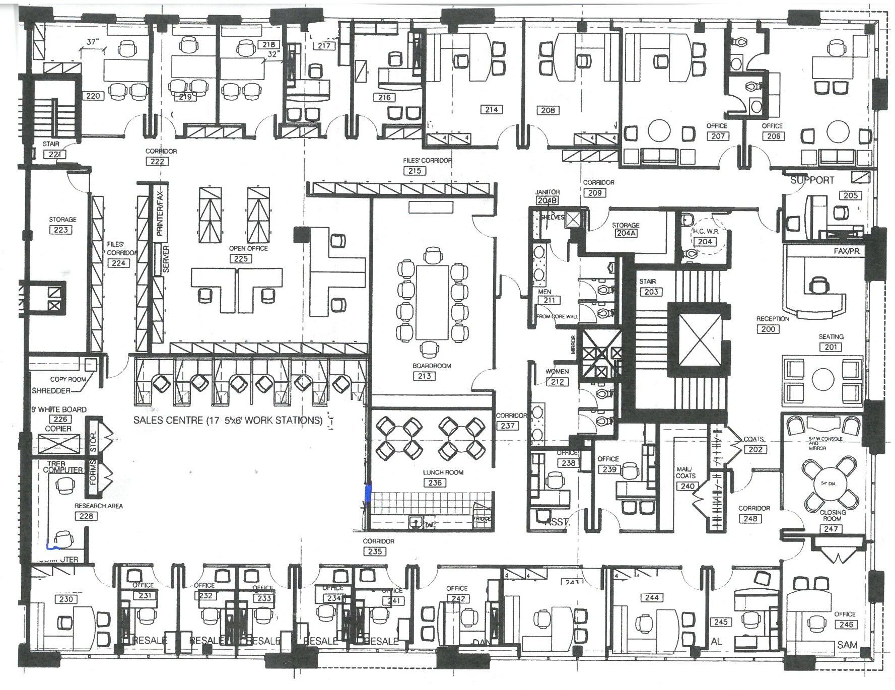
  • Spacious 11,038 square feet of versatile office space for leasing.
  • Mix of private offices and open workspaces for collaboration.
  • Well-lit boardroom and meeting rooms for presentations.
  • Bright windows let in plenty of natural light throughout.
  • Private elevator access adds convenience to the second floor.
Professional office space for lease. This 2nd floor office space offers a total of 11,038 square feet of versatile space, perfect for companies seeking a professional and collaborative work environment. Key features include a mix of private, enclosed offices for focused work, a spacious, well-lit boardroom ideal for meetings and presentations. Expansive open spaces, with 10' ceilings, for flexible workstations, team collaboration, and a dynamic office culture. Bright windows provide ample natural light throughout the space, creating a bright and inviting atmosphere. This office space is designed for companies looking to enhance productivity while maintaining a polished and professional image. Private elevator and stair access to the 2nd floor unit. 22 closed offices (including 2 executive size offices, 2 jr executive offices), 2 open work spaces, 1 meeting room & 1 boardroom, private full size kitchen with seating area. 3 private washrooms, 2 shared (2 stall & 2 stall + urinal) washrooms. 3 storage rooms. Tmi $7. 75
Listing IDN12140888
Address20 Cachet Woods Court Unit# 2
CityMarkham, Ontario
Lease$13
Bath7 Full
StyleOffice
TypeIndustrial/Commercial
StatusFor Lease
Subtype OfficeCommunity Features Major Highway, Public TransitOwnership LeaseholdHeating / Cooling Gas Forced Air Open
ASAP

Wed

17

Dec

Thu

18

Dec

Fri

19

Dec

Sat

20

Dec

Sun

21

Dec

Mon

22

Dec

Tue

23

Dec

Wed

24

Dec

Thu

25

Dec

Fri

26

Dec

Sat

27

Dec

Sun

28

Dec

Mon

29

Dec

Tue

30

Dec

Wed

31

Dec

Thu

1

Jan

Fri

2

Jan

Sat

3

Jan

Sun

4

Jan

Mon

5

Jan

Tue

6

Jan

Wed

7

Jan

Thu

8

Jan

Fri

9

Jan

Sat

10

Jan

Sun

11

Jan

Mon

12

Jan

Tue

13

Jan

Wed

14

Jan

By clicking “Get pre-qualified” and/or 'Submit' you are expressly consenting, in writing, to receive telemarketing and other messages, including artificial or prerecorded voices, via automated calls or texts from jumprealty.ca and up.mortgages at the number you provided above. This consent is not required to purchase any good or service. Message and data rates may apply, frequency varies. Text HELP for help or STOP to cancel. More details in Terms of Use and Privacy Policy.

Listing Agency:  NORMAN HILL REALTY INC.
Hospital
Parks
Schools
Place of Worship
Please select an amenity above to view a list.

Recommended Properties

Loading...
20 Cachet Woods Court Unit# 2
Markham , Ontario
7 $13
Get more info