For Sale - 20 Deerview Drive, Quinte West, Ontario

Est payment $4,110/mo
Views   1
Time on Jump  1 days
  • Custom-built home offers modern design in Woodland Heights community.
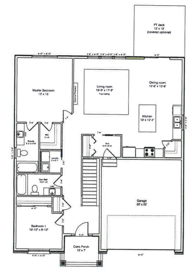
  • Two spacious main floor bedrooms, including a primary with ensuite and walk-in closet.
  • Open-concept living space perfect for relaxation and entertaining guests.
  • Rear deck provides great space for gatherings, with option to cover it.
  • Basement can be finished for additional bedrooms and recreational space.



This custom-built home by van huizen homes, located in the growing community of woodland heights, perfectly blends contemporary design with everyday convenience. The home features 2 spacious bedrooms on the main floor, including a luxurious primary bedroom with an ensuite that boasts a double vanity and a walk-in closet. The second bathroom on the main floor adds extra convenience for guests or family. The open-concept living space is perfect for both relaxing and entertaining. The living room is highlighted by a stunning tray ceiling, adding both elegance and height to the room. The kitchen is designed with functionality in mind, featuring a corner pantry with ample storage. For added practicality, the home includes a main floor laundry room and a mudroom that leads directly into the attached two-car garage, offering a seamless transition between the indoors and outdoors. Step outside to enjoy the 12' x 12' rear deck, ideal for relaxing or hosting gatherings. There's also the option to cover the deck for added comfort and versatility. If you're looking for even more space, the basement can be finished at an additional cost to include a third or fourth bedroom, another bathroom, and a recreation room - perfect for entertaining or creating your own private retreat. Visit the model home at 37 deerview drive to see how this thoughtfully designed home can be customized to fit your lifestyle with van huizen homes! All new construction homes qualify for the new hst rebate!!
Listing IDX12976998
Address20 Deerview Drive
CityQuinte West, Ontario
Price$856,000
Bed / Bath2 / 2 Full
StyleBungalow, Detached
ConstructionVinyl Siding, Stone
TypeResidential
StatusFor Sale
Subtype DetachedIndoor Features Auto Garage Door Remote, ERV/HRV, Primary Bedroom - Main Floor, Sump Pump, Water Heater OwnedOutdoor Features Deck, PorchAmenities Beach, Golf, Hospital, Marina, School, SkiingOwnership FreeholdBasement UnfinishedFoundation Poured ConcreteHeating / Cooling Forced AirHeating Fuel GasSewer Sewer
Parking 6.00
ASAP

Fri

10

Apr

Sat

11

Apr

Sun

12

Apr

Mon

13

Apr

Tue

14

Apr

Wed

15

Apr

Thu

16

Apr

Fri

17

Apr

Sat

18

Apr

Sun

19

Apr

Mon

20

Apr

Tue

21

Apr

Wed

22

Apr

Thu

23

Apr

Fri

24

Apr

Sat

25

Apr

Sun

26

Apr

Mon

27

Apr

Tue

28

Apr

Wed

29

Apr

Thu

30

Apr

Fri

1

May

Sat

2

May

Sun

3

May

Mon

4

May

Tue

5

May

Wed

6

May

Thu

7

May

Fri

8

May

By clicking “Get pre-qualified” and/or 'Submit' you are expressly consenting, in writing, to receive telemarketing and other messages, including artificial or prerecorded voices, via automated calls or texts from jumprealty.ca and up.mortgages at the number you provided above. This consent is not required to purchase any good or service. Message and data rates may apply, frequency varies. Text HELP for help or STOP to cancel. More details in Terms of Use and Privacy Policy.

Listing Agency:  ROYAL LEPAGE PROALLIANCE REALTY

* Data is provided courtesy of PROPTX. The information provided herein must only be used by consumers that have a bona fide interest in the purchase, sale, or lease of real estate and may not be used for any commercial purpose or any other purpose. The information is deemed reliable but is not guaranteed accurate by PROPTX.

Hospital
Parks
Schools
Place of Worship
Please select an amenity above to view a list.

Recommended Properties

Loading...
20 Deerview Drive
Quinte West , Ontario
2 2 $856,000
Get more info