For Sale - 2007 Snow Valley Road, Springwater, Ontario

Est payment $4,557/mo
Views   1
Time on Jump  1 days
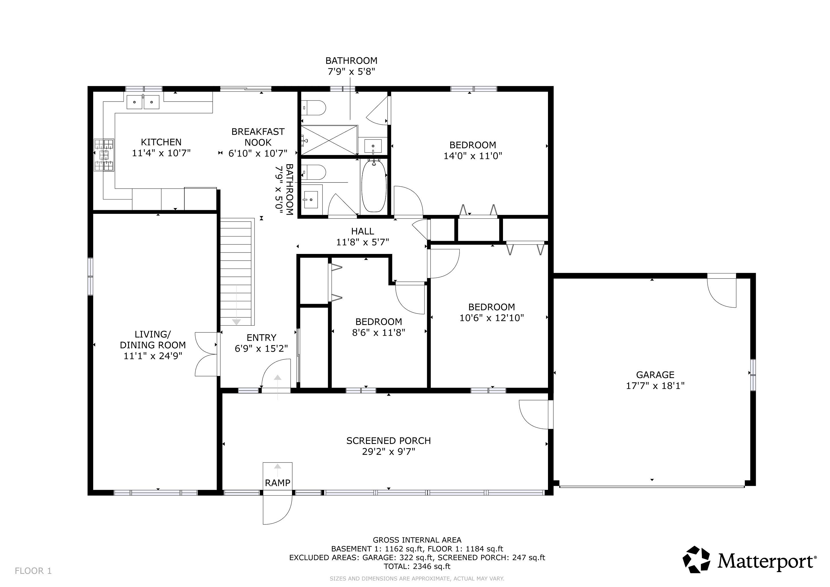
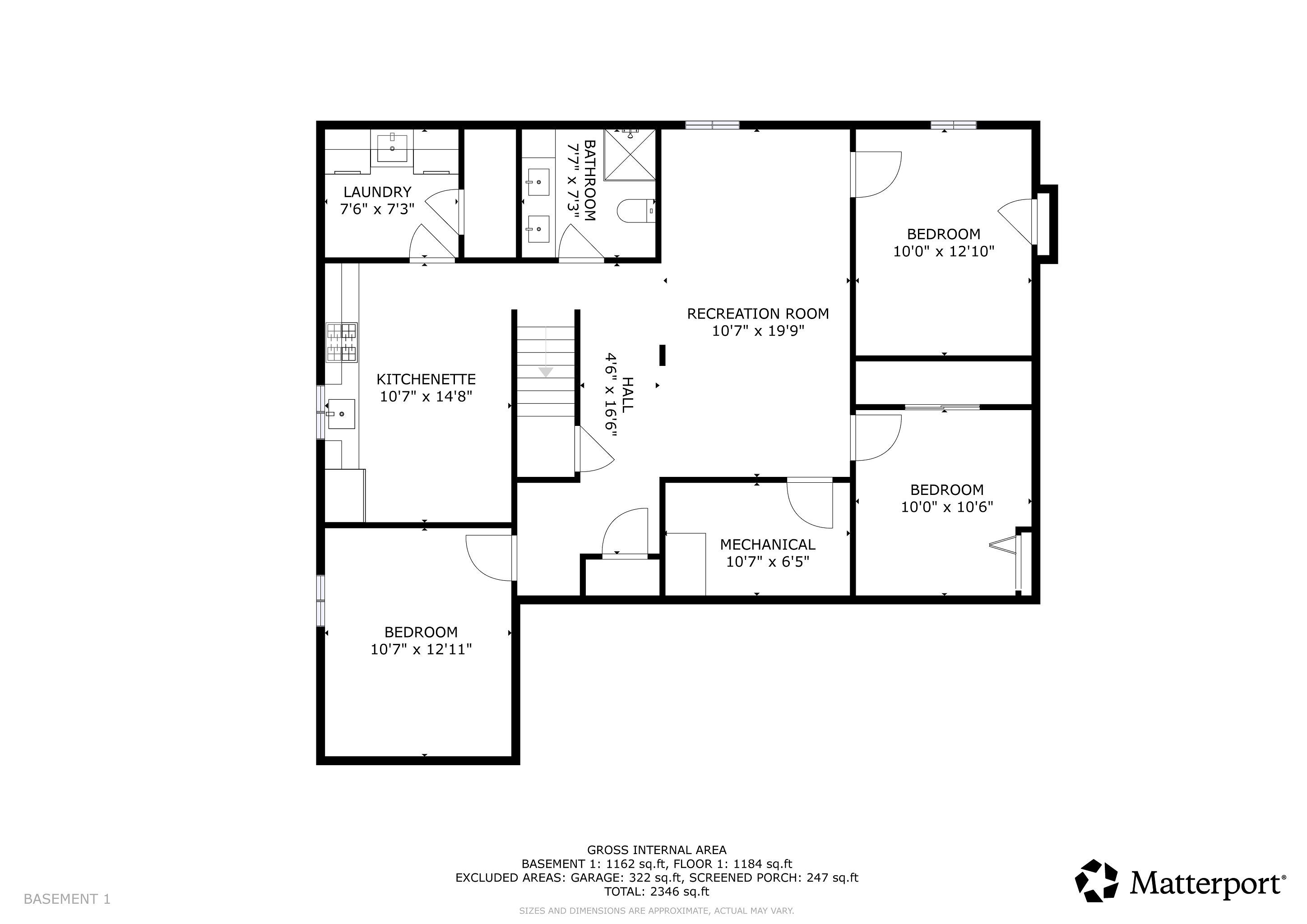
  • Recently renovated 3-bedroom bungalow with additional finished basement bedrooms.
  • Spacious 100' by 188' lot perfect for family activities.
  • Only 2 minutes to Snow Valley Resort for outdoor fun.
  • Less than 15 minutes to downtown Barrie for convenience.
  • New appliances, roof, windows, and more updated for peace of mind.



Welcome to 2007 snow valley road, a charming, fully renovated 3-bedroom bungalow with a finished basement featuring 3 additional bedrooms. Situated on a 100' by 188' lot, this property offers both space and convenience. Just a 2-minute drive to snow valley resort and less than 15 minutes to the heart of barrie. It's perfect for families and outdoor enthusiasts, with apple and cherry trees at the backyard. Roof done in 2023, ac/furnace 2025, windows 2025, floors 2025, new bosch appliances 2025, new patio 2025, new garage, opener and remote 2025, new main and basement kitchens 2025, too many to list....
Listing IDS12950914
Address2007 Snow Valley Road
CitySpringwater, Ontario
Price$949,000
Bed / Bath6 / 3 Full
StyleBungalow, Detached
ConstructionBrick
Land Size18779
TypeResidential
StatusFor Sale
Subtype DetachedIndoor Features Auto Garage Door Remote, Bar Fridge, Built-In Oven, Carpet Free, In-Law Capability, Primary Bedroom - Main FloorOwnership FreeholdWaterfront NoneBasement Finished, FullFoundation ConcreteHeating / Cooling Forced AirHeating Fuel GasSewer Sewer
Parking 7.00
ASAP

Fri

3

Apr

Sat

4

Apr

Sun

5

Apr

Mon

6

Apr

Tue

7

Apr

Wed

8

Apr

Thu

9

Apr

Fri

10

Apr

Sat

11

Apr

Sun

12

Apr

Mon

13

Apr

Tue

14

Apr

Wed

15

Apr

Thu

16

Apr

Fri

17

Apr

Sat

18

Apr

Sun

19

Apr

Mon

20

Apr

Tue

21

Apr

Wed

22

Apr

Thu

23

Apr

Fri

24

Apr

Sat

25

Apr

Sun

26

Apr

Mon

27

Apr

Tue

28

Apr

Wed

29

Apr

Thu

30

Apr

Fri

1

May

By clicking “Get pre-qualified” and/or 'Submit' you are expressly consenting, in writing, to receive telemarketing and other messages, including artificial or prerecorded voices, via automated calls or texts from jumprealty.ca and up.mortgages at the number you provided above. This consent is not required to purchase any good or service. Message and data rates may apply, frequency varies. Text HELP for help or STOP to cancel. More details in Terms of Use and Privacy Policy.

Listing Agency:  HOMETRADE REALTY INC.

* Data is provided courtesy of PROPTX. The information provided herein must only be used by consumers that have a bona fide interest in the purchase, sale, or lease of real estate and may not be used for any commercial purpose or any other purpose. The information is deemed reliable but is not guaranteed accurate by PROPTX.

Hospital
Parks
Schools
Place of Worship
Please select an amenity above to view a list.

Recommended Properties

Loading...
2007 Snow Valley Road
Springwater , Ontario
6 3 $949,000
Get more info