For Sale - 201 6th Avenue, Owen Sound, Ontario

Est payment $2,636/mo
Views   1
Time on Jump  1 days
  • Spacious raised bungalow in a family-friendly West Hill neighborhood.
  • Five bedrooms provide plenty of space for families and guests.
  • Inviting lower level with gas fireplace and bar for entertaining.
  • New deck with BBQ hookup overlooks a fenced backyard.
  • Recent updates include flooring, insulation, and windows for easy living.



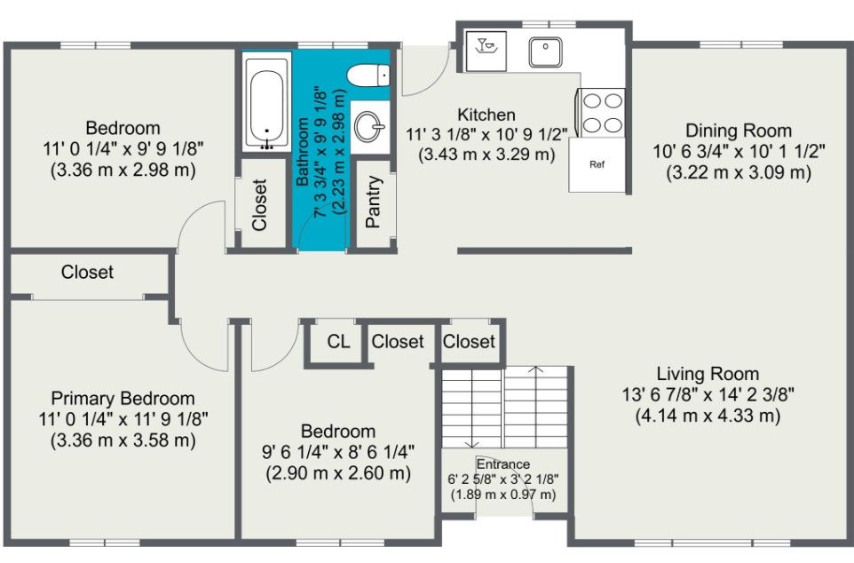
Welcome to this spacious raised bungalow in owen sound's highly desirable west hill neighborhood, offering the perfect blend of space, comfort, and family-friendly living. With 3 bedrooms on the main level, 2 additional bedrooms downstairs, and 2 full bathrooms, this home provides plenty of room for growing families, guests, or home office space. The lower level features a warm and inviting family room complete with a gas fireplace, bar, and bar fridge-an ideal spot for entertaining or relaxing. Step outside to enjoy the large deck, new in 2023, complete with a natural gas bbq hookup and built to support a hot tub, all overlooking the generous fenced backyard with storage shed. Additional updates include new flooring and carpet in 2022, attic insulation redone in 2014, updated windows, and a fenced backyard completed in 2015. A great opportunity to own a move-in ready home in one of owen sound's most sought-after neighborhoods.
Listing IDX12910102
Address201 6th Avenue
CityOwen Sound, Ontario
Price$549,000
Bed / Bath5 / 2 Full
StyleBungalow-Raised, Detached
ConstructionBrick, Vinyl Siding
TypeResidential
StatusFor Sale
Subtype DetachedIndoor Features Bar FridgeOwnership FreeholdBasement FinishedFoundation Concrete BlockHeating / Cooling BaseboardHeating Fuel ElectricSewer Sewer
Parking 4.00
ASAP

Tue

24

Mar

Wed

25

Mar

Thu

26

Mar

Fri

27

Mar

Sat

28

Mar

Sun

29

Mar

Mon

30

Mar

Tue

31

Mar

Wed

1

Apr

Thu

2

Apr

Fri

3

Apr

Sat

4

Apr

Sun

5

Apr

Mon

6

Apr

Tue

7

Apr

Wed

8

Apr

Thu

9

Apr

Fri

10

Apr

Sat

11

Apr

Sun

12

Apr

Mon

13

Apr

Tue

14

Apr

Wed

15

Apr

Thu

16

Apr

Fri

17

Apr

Sat

18

Apr

Sun

19

Apr

Mon

20

Apr

Tue

21

Apr

By clicking “Get pre-qualified” and/or 'Submit' you are expressly consenting, in writing, to receive telemarketing and other messages, including artificial or prerecorded voices, via automated calls or texts from jumprealty.ca and up.mortgages at the number you provided above. This consent is not required to purchase any good or service. Message and data rates may apply, frequency varies. Text HELP for help or STOP to cancel. More details in Terms of Use and Privacy Policy.

Listing Agency:  RE/MAX Grey Bruce Realty Inc.

* Data is provided courtesy of PROPTX. The information provided herein must only be used by consumers that have a bona fide interest in the purchase, sale, or lease of real estate and may not be used for any commercial purpose or any other purpose. The information is deemed reliable but is not guaranteed accurate by PROPTX.

Hospital
Parks
Schools
Place of Worship
Please select an amenity above to view a list.

Recommended Properties

Loading...
201 6th Avenue
Owen Sound , Ontario
5 2 $549,000
Get more info