For Sale - 203 Niagara Boulevard, Fort Erie, Ontario

Est payment $6,194/mo
Views   1
Time on Jump  57 day
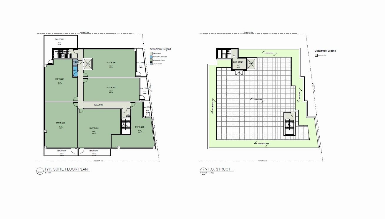
  • Approved site plan for a boutique low-rise condo with waterfront views.
  • Steps away from Niagara River Public Boat Launch for easy access.
  • Convenient location near amenities, schools, and recreational sites.
  • Ground floor designed for vibrant retail or live/work opportunities.
  • Strategic trade location with easy access to the U.S. border.



Rare offer - builders and investors! Site plan approved (a truly exceptional ready-to-go development site) for a boutique low-rise 4 storeys condo with breathtaking waterfront views facing new york state in niagara for sale! Originally appraised at $3. 5m, now it's $1. 39m under power of sale! * steps to niagara river public boat launch; 5 minutes drive to the peace bridge (which overlooks the niagara river and connecting canada and us border services agency); 5 minutes to great golf clubs and horse race track; 18 minutes from crystal beach; 20 minutes to niagara falls; 30 minutes to buffalo international airport. * blending luxury living with rare commercial flexibility. The approved concept features modern architecture with expansive glass and private balconies. Ground floor designed for vibrant retail or live/work possibilities, enhanced by a dramatic riverfront backdrop. * surrounded by convenient amenities: restaurants, supermarkets, cafés, and shops and minutes to schools, libraries, museums, local parks, and sports centre. Beautiful natural scenery-perfect for walking, fishing, birdwatching, and enjoying stunning sunsets over the water. * diversified economy, strengthened by its strategic trade location and direct access to the u. S. Border infrastructure via the peace bridge. A major recent development by siltech corporation's $100 million investment in a new manufacturing facility. The town also benefits from a strong tourism sector, attracting approximately 600,000 visitors each year. * don't miss out on this shovel-ready project! A rare chance to deliver a landmark development in a growing, high-demand area! Thank you for your interest and i look forward to talking to you soon! The sale shall be made on an "as-is, where-is" basis.
Listing IDX12765984
Address203 Niagara Boulevard
CityFort Erie, Ontario
Price$1,290,000
StyleInvestment
TypeIndustrial/Commercial
StatusFor Sale
Subtype InvestmentHeating / Cooling Gas Forced Air OpenSewer Sanitary+Storm
ASAP

Sun

5

Apr

Mon

6

Apr

Tue

7

Apr

Wed

8

Apr

Thu

9

Apr

Fri

10

Apr

Sat

11

Apr

Sun

12

Apr

Mon

13

Apr

Tue

14

Apr

Wed

15

Apr

Thu

16

Apr

Fri

17

Apr

Sat

18

Apr

Sun

19

Apr

Mon

20

Apr

Tue

21

Apr

Wed

22

Apr

Thu

23

Apr

Fri

24

Apr

Sat

25

Apr

Sun

26

Apr

Mon

27

Apr

Tue

28

Apr

Wed

29

Apr

Thu

30

Apr

Fri

1

May

Sat

2

May

Sun

3

May

By clicking “Get pre-qualified” and/or 'Submit' you are expressly consenting, in writing, to receive telemarketing and other messages, including artificial or prerecorded voices, via automated calls or texts from jumprealty.ca and up.mortgages at the number you provided above. This consent is not required to purchase any good or service. Message and data rates may apply, frequency varies. Text HELP for help or STOP to cancel. More details in Terms of Use and Privacy Policy.

Listing Agency:  CENTURY 21 HERITAGE GROUP LTD.

* Data is provided courtesy of PROPTX. The information provided herein must only be used by consumers that have a bona fide interest in the purchase, sale, or lease of real estate and may not be used for any commercial purpose or any other purpose. The information is deemed reliable but is not guaranteed accurate by PROPTX.

Hospital
Parks
Schools
Place of Worship
Please select an amenity above to view a list.

Recommended Properties

Loading...
203 Niagara Boulevard
Fort Erie , Ontario
$1,290,000
Get more info