For Sale - 2050 Upper Middle Road Unit# 168, Burlington, Ontario

Est payment $2,785/mo
Views   1
Time on Jump  29 day
  • Well-maintained home on a private ravine lot for added tranquility.
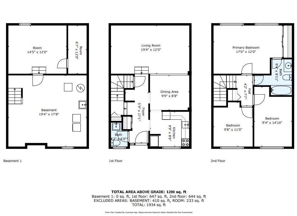
  • Thoughtfully designed layout with 1,523 sq ft of living space.
  • Bright main level with hardwood floors and wall-to-wall windows.
  • Fully fenced backyard with patio, gardens, and scenic natural views.
  • Conveniently located near schools, shopping, and highways for easy access.



Welcome to this beautifully maintained family home set on a private ravine lot in one of burlington's most sought-after communities. Offering 1,523 sq ft of thoughtfully designed living space, this home is perfectly positioned within walking distance to schools, a shopping plaza, brant hills community centre, and the indoor pool. Families will especially appreciate being near one of burlington's most renowned schools, paul a. Fisher. With quick access to highways 403 and 407 and just a 10-minute drive to downtown burlington, mapleview, and burlington centre, convenience truly meets lifestyle here. The front exterior welcomes you with charming gardens, a private walkway, plus two dedicated parking spaces. Inside, you'll find a bright and inviting main level with a functional flow and hardwood flooring throughout. The updated kitchen features subway tile backsplash, quartz countertops, stainless steel appliances, and a sleek range hood-perfect for everyday family meals and entertaining alike. The dining room overlooks the sunken living room, where wall-to-wall windows fill the space with natural light and a walkout leads directly to the backyard. A convenient 2-piece powder room completes the main floor. Upstairs, hardwood flooring continues throughout. The spacious primary bedroom offers ensuite privileges to the 4-piece main bath, while two additional bedrooms provide comfortable space for children, guests, or a home office. A sunken flex room (currently a playroom) in the basement adds extra versatility for families. Step outside to a fully fenced backyard designed for both relaxation and play. Enjoy the patio, lush gardens, and handy shed-all backing onto a beautiful ravine that offers privacy, tranquility, and a scenic natural backdrop year-round. This is an incredible opportunity to plant roots in a family-friendly neighbourhood surrounded by parks, top schools, and everyday amenities-where comfort, convenience, and nature come together seamlessly.
Listing IDW12843768
Address2050 Upper Middle Road Unit# 168
CityBurlington, Ontario
Price$579,900
Bed / Bath3 / 2 Full
Style2-Storey, Condo Townhouse
ConstructionBrick, Vinyl Siding
TypeCondominium
StatusFor Sale
Subtype Condo TownhouseIndoor Features Auto Garage Door Remote, Water Heater, In-Suite LaundryAmenities Park, Public Transit, Rec./Commun.Centre, School, Fenced YardBuilding Amenities BBQs Allowed, Visitor ParkingBasement Partially FinishedFoundation UnknownHeating / Cooling Forced AirHeating Fuel Gas
Parking 2.00
ASAP

Sat

4

Apr

Sun

5

Apr

Mon

6

Apr

Tue

7

Apr

Wed

8

Apr

Thu

9

Apr

Fri

10

Apr

Sat

11

Apr

Sun

12

Apr

Mon

13

Apr

Tue

14

Apr

Wed

15

Apr

Thu

16

Apr

Fri

17

Apr

Sat

18

Apr

Sun

19

Apr

Mon

20

Apr

Tue

21

Apr

Wed

22

Apr

Thu

23

Apr

Fri

24

Apr

Sat

25

Apr

Sun

26

Apr

Mon

27

Apr

Tue

28

Apr

Wed

29

Apr

Thu

30

Apr

Fri

1

May

Sat

2

May

By clicking “Get pre-qualified” and/or 'Submit' you are expressly consenting, in writing, to receive telemarketing and other messages, including artificial or prerecorded voices, via automated calls or texts from jumprealty.ca and up.mortgages at the number you provided above. This consent is not required to purchase any good or service. Message and data rates may apply, frequency varies. Text HELP for help or STOP to cancel. More details in Terms of Use and Privacy Policy.

Listing Agency:  ROYAL LEPAGE BURLOAK REAL ESTATE SERVICES

* Data is provided courtesy of PROPTX. The information provided herein must only be used by consumers that have a bona fide interest in the purchase, sale, or lease of real estate and may not be used for any commercial purpose or any other purpose. The information is deemed reliable but is not guaranteed accurate by PROPTX.

Hospital
Parks
Schools
Place of Worship
Please select an amenity above to view a list.

Recommended Properties

Loading...
2050 Upper Middle Road Unit# 168
Burlington , Ontario
3 2 $579,900
Get more info