For Lease - 210 Humberside Avenue Unit# Main, Toronto, Ontario

Views   1
Time on Jump  7 day
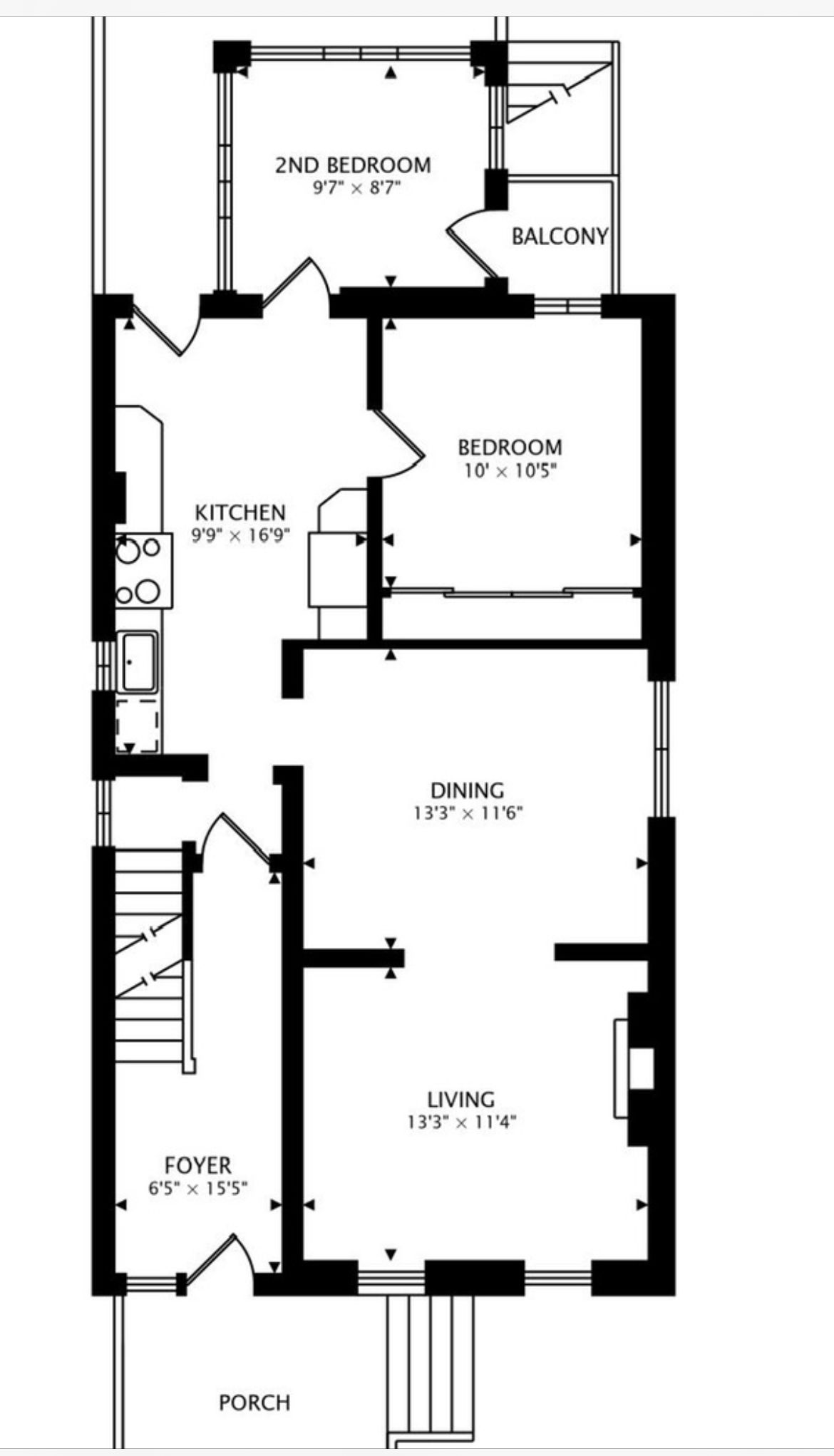
  • Two-bedroom plus den apartment with around 1,100 square feet of space.
  • Open concept design with modern kitchen and stainless steel appliances.
  • Private backyard deck and urban garden for outdoor relaxation.
  • Close to High Park, transit, shops, cafés, and restaurants.
  • Large windows provide plenty of natural light throughout the home.
You're going to love this place! Just steps from one of toronto's most cherished green spaces, this expansive two-bedroom plus den apartment offers approximately 1,100 square feet of well-appointed living space, ideally suited for a young professional or couple seeking comfort and convenience in a premier toronto neighbourhood. The bright open-concept layout features a modern kitchen with stainless steel appliances and granite countertops, pot lighting, and seamless access to a private backyard deck and urban garden-an uncommon city retreat. Positioned moments from high park and within easy reach of the junction, bloor west village, and roncesvalles, the home offers effortless access to transit, shops, cafés, and restaurants. Keele subway station is just a short walk away, connecting you quickly to the rest of the city. Large windows fill the space with natural light, parking and laundry are included, adding everyday convenience to this already compelling offering. With generous interior space, private outdoor living, and an unbeatable high park setting, this is a rare opportunity to secure a home that truly delivers on lifestyle and location.
Listing IDW12727774
Address210 Humberside Avenue Unit# Main
CityToronto, Ontario
Lease$2,995
Bed / Bath2 / 1 Full
Style2 1/2 Storey, Fourplex
ConstructionBrick
TypeMulti-Family
StatusFor Lease
Subtype FourplexIndoor Features Other, Laundry Room, SharedInclusions Central Air Conditioning, Heat, Parking, WaterOwnership LeaseholdViews CityWaterfront NoneAppliances NoneBasement Apartment, Separate EntranceFoundation ConcreteHeating / Cooling WaterHeating Fuel GasSewer Sewer
Parking 1.00
ASAP

Tue

3

Feb

Wed

4

Feb

Thu

5

Feb

Fri

6

Feb

Sat

7

Feb

Sun

8

Feb

Mon

9

Feb

Tue

10

Feb

Wed

11

Feb

Thu

12

Feb

Fri

13

Feb

Sat

14

Feb

Sun

15

Feb

Mon

16

Feb

Tue

17

Feb

Wed

18

Feb

Thu

19

Feb

Fri

20

Feb

Sat

21

Feb

Sun

22

Feb

Mon

23

Feb

Tue

24

Feb

Wed

25

Feb

Thu

26

Feb

Fri

27

Feb

Sat

28

Feb

Sun

1

Mar

Mon

2

Mar

Tue

3

Mar

By clicking “Get pre-qualified” and/or 'Submit' you are expressly consenting, in writing, to receive telemarketing and other messages, including artificial or prerecorded voices, via automated calls or texts from jumprealty.ca and up.mortgages at the number you provided above. This consent is not required to purchase any good or service. Message and data rates may apply, frequency varies. Text HELP for help or STOP to cancel. More details in Terms of Use and Privacy Policy.

Listing Agency:  VALERY REAL ESTATE INC.
Hospital
Parks
Schools
Place of Worship
Please select an amenity above to view a list.

Recommended Properties

Loading...
210 Humberside Avenue Unit# Main
Toronto , Ontario
2 1 $2,995
Get more info