For Sale - 2139 Strasburg Road Unit# 6, Kitchener, Ontario

Est payment $2,526/mo
Views   1
Time on Jump  79 day
  • Limited-time pre-construction offer with significant savings available until March 2026.
  • Brand-new stacked NET ZERO READY condos with low fees in a great location.
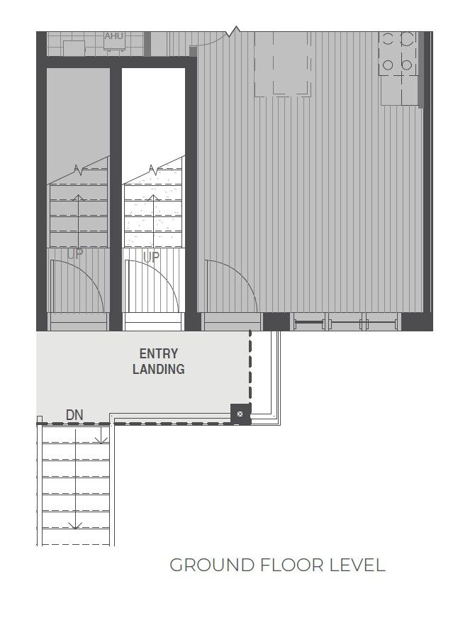
  • Open concept main level with living room, balcony, and L-shaped kitchen.
  • Large primary suite with ensuite, second balcony, and laundry on upper floor.
  • Convenient access to Highway 401, schools, parks, shopping, and dining options.



New price - limited time exclusive pricing - now $50,000 off the original builder's price. This limited-time pre-construction offer (available until march 15, 2026) includes free assignment/no occupancy fee/6 appliances /zero development levy/no tarion enrollment fee. Expected occupancy closing for the complex is between late 2026 and late 2027, making this an excellent opportunity for first-time home buyers and investors looking to enter the market or expand their portfolio. This brand-new stacked net zero ready condominium community located in a highly desirable area , offers low condo fees and outstanding convenience. The carlyle b is 2 floor layout with a large main level offering an open concept layout with a powder room, living room with balcony access and l shaped kitchen. Second floor offers a large primary suite with ensuite bath and second balcony, additional bedroom, laundry room and main 4pc bath. Heat pump and free appliances. Enjoy easy access to highway 401, walking distance to schools, and proximity to conestoga college, shopping, dining, and the new rbj schlegel park and sports complex. Surrounded by brigadoon woods, the community offers surface parking and transit stops right outside the complex.
Listing IDX12693810
Address2139 Strasburg Road Unit# 6
CityKitchener, Ontario
Price$525,990
Bed / Bath2 / 3 Full
StyleStacked Townhouse, Condo Apartment
ConstructionBrick, Vinyl Siding
TypeCondominium
StatusFor Sale
Subtype Condo ApartmentIndoor Features None, In-Suite LaundryBasement NoneHeating / Cooling Forced AirHeating Fuel Electric
Parking 1.00
ASAP

Sat

4

Apr

Sun

5

Apr

Mon

6

Apr

Tue

7

Apr

Wed

8

Apr

Thu

9

Apr

Fri

10

Apr

Sat

11

Apr

Sun

12

Apr

Mon

13

Apr

Tue

14

Apr

Wed

15

Apr

Thu

16

Apr

Fri

17

Apr

Sat

18

Apr

Sun

19

Apr

Mon

20

Apr

Tue

21

Apr

Wed

22

Apr

Thu

23

Apr

Fri

24

Apr

Sat

25

Apr

Sun

26

Apr

Mon

27

Apr

Tue

28

Apr

Wed

29

Apr

Thu

30

Apr

Fri

1

May

Sat

2

May

By clicking “Get pre-qualified” and/or 'Submit' you are expressly consenting, in writing, to receive telemarketing and other messages, including artificial or prerecorded voices, via automated calls or texts from jumprealty.ca and up.mortgages at the number you provided above. This consent is not required to purchase any good or service. Message and data rates may apply, frequency varies. Text HELP for help or STOP to cancel. More details in Terms of Use and Privacy Policy.

Listing Agency:  RE/MAX TWIN CITY REALTY INC.

* Data is provided courtesy of PROPTX. The information provided herein must only be used by consumers that have a bona fide interest in the purchase, sale, or lease of real estate and may not be used for any commercial purpose or any other purpose. The information is deemed reliable but is not guaranteed accurate by PROPTX.

Hospital
Parks
Schools
Place of Worship
Please select an amenity above to view a list.

Recommended Properties

Loading...
2139 Strasburg Road Unit# 6
Kitchener , Ontario
2 3 $525,990
Get more info