For Lease - 215 Traders Boulevard Unit# 18-19, Mississauga, Ontario

Views   2
Time on Jump  50 day
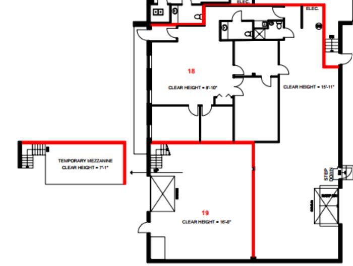
  • Well-maintained office space with four private offices and a kitchenette.
  • Includes a washroom and an additional shower area for convenience.
  • Spacious 16' clear warehouse with efficient LED lighting.
  • Drive-through access with two designated drive-in doors.
  • Power capacity estimated up to 100A/600V for various needs.
Office space in good condition includes 4 offices, kitchenette, washroom, and shower/washroom area. 16' clear warehouse and led lighting. 2 x di (drive-through). Power is estimated up to 100a/600v. Unit 18 is available now, with unit 19 to be joined by july 1, 2026.
Listing IDW12779404
Address215 Traders Boulevard Unit# 18-19
CityMississauga, Ontario
Lease$19
StyleIndustrial
TypeIndustrial/Commercial
StatusFor Lease
Subtype IndustrialOwnership LeaseholdHeating / Cooling Gas Forced Air OpenSewer Sanitary
ASAP

Fri

3

Apr

Sat

4

Apr

Sun

5

Apr

Mon

6

Apr

Tue

7

Apr

Wed

8

Apr

Thu

9

Apr

Fri

10

Apr

Sat

11

Apr

Sun

12

Apr

Mon

13

Apr

Tue

14

Apr

Wed

15

Apr

Thu

16

Apr

Fri

17

Apr

Sat

18

Apr

Sun

19

Apr

Mon

20

Apr

Tue

21

Apr

Wed

22

Apr

Thu

23

Apr

Fri

24

Apr

Sat

25

Apr

Sun

26

Apr

Mon

27

Apr

Tue

28

Apr

Wed

29

Apr

Thu

30

Apr

Fri

1

May

By clicking “Get pre-qualified” and/or 'Submit' you are expressly consenting, in writing, to receive telemarketing and other messages, including artificial or prerecorded voices, via automated calls or texts from jumprealty.ca and up.mortgages at the number you provided above. This consent is not required to purchase any good or service. Message and data rates may apply, frequency varies. Text HELP for help or STOP to cancel. More details in Terms of Use and Privacy Policy.

Listing Agency:  AVISON YOUNG COMMERCIAL REAL ESTATE SERVICES, LP

* Data is provided courtesy of PROPTX. The information provided herein must only be used by consumers that have a bona fide interest in the purchase, sale, or lease of real estate and may not be used for any commercial purpose or any other purpose. The information is deemed reliable but is not guaranteed accurate by PROPTX.

Hospital
Parks
Schools
Place of Worship
Please select an amenity above to view a list.

Recommended Properties

Loading...
215 Traders Boulevard Unit# 18-19
Mississauga , Ontario
$19
Get more info