For Sale - 2187 Mariposa Road, Oakville, Ontario

Est payment $9,603/mo
Views   4
Time on Jump  47 day
  • Premium 50' lot backing onto peaceful greenspace for added privacy.
  • Backyard retreat boasts hot tub and custom covered porch with fireplace.
  • Upgraded kitchen opens to family room with impressive two-storey ceiling.
  • Luxurious primary suite features dual walk-in closets and renovated ensuite.
  • Fully finished lower level offers recreational space, gym, and potential fifth bedroom.



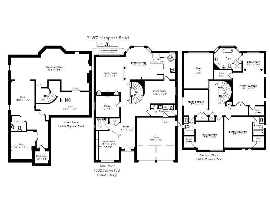
Set on a premium 50' lot backing onto tranquil greenspace, this exceptional 4 bedroom residence offers a rare blend of privacy, elegance and modern comfort. The backyard is a true retreat, thoughtfully designed with artificial turf, a hot tub and a custom covered porch featuring a fireplace and television - perfect for relaxing outdoor enjoyment. The main level showcases a highly desirable layout, highlighted by a beautifully upgraded kitchen that seamlessly opens to the family room with its impressive 2-storey soaring ceiling. Additional principal spaces include a refined main floor den, a vaulted front living room with custom built-ins and a spacious, separate dining room ideal for entertaining. Upstairs, the luxurious primary suite is accessed through double doors and features dual walk-in closets, a cozy sitting area and a fully renovated 5-piece ensuite (2023) complete with a freestanding tub and glass-enclosed walk-in shower. The second bedroom enjoys its own walk-in closet and private 4-piece ensuite, while the third and fourth bedrooms share a comfortable "jack and jill" bathroom. The fully finished lower level extends the living space with upgraded vinyl flooring, pot lights, a bathroom, a recreation/games area, gym space and den that could possibly be used as a fifth bedroom. Additional upgrades include refinished hardwood flooring, neutral broadloom, crown moulding, a 2-sided gas fireplace, updated furnace and a/c, new garage doors and wiring for 2 evs in the garage. With outstanding curb appeal, a covered front entry, professional landscaping and upgraded hardscaping, this home is ideally located within walking distance to schools, parks, shopping and scenic trails.
Listing IDW12904624
Address2187 Mariposa Road
CityOakville, Ontario
Price$1,999,900
Bed / Bath4 / 5 Full
Style2-Storey, Detached
ConstructionBrick
TypeResidential
StatusFor Sale
Subtype DetachedIndoor Features OtherOutdoor Features Hot Tub, Patio, Lawn Sprinkler SystemAmenities Library, Park, Public Transit, Rec./Commun.Centre, School, GolfOwnership FreeholdBasement Full, FinishedFoundation Poured ConcreteHeating / Cooling Forced AirHeating Fuel GasSewer Sewer
Parking 4.00
ASAP

Fri

8

May

Sat

9

May

Sun

10

May

Mon

11

May

Tue

12

May

Wed

13

May

Thu

14

May

Fri

15

May

Sat

16

May

Sun

17

May

Mon

18

May

Tue

19

May

Wed

20

May

Thu

21

May

Fri

22

May

Sat

23

May

Sun

24

May

Mon

25

May

Tue

26

May

Wed

27

May

Thu

28

May

Fri

29

May

Sat

30

May

Sun

31

May

Mon

1

Jun

Tue

2

Jun

Wed

3

Jun

Thu

4

Jun

Fri

5

Jun

By clicking “Get pre-qualified” and/or 'Submit' you are expressly consenting, in writing, to receive telemarketing and other messages, including artificial or prerecorded voices, via automated calls or texts from jumprealty.ca and up.mortgages at the number you provided above. This consent is not required to purchase any good or service. Message and data rates may apply, frequency varies. Text HELP for help or STOP to cancel. More details in Terms of Use and Privacy Policy.

Listing Agency:  Royal LePage Real Estate Services Ltd., Brokerage

* Data is provided courtesy of PROPTX. The information provided herein must only be used by consumers that have a bona fide interest in the purchase, sale, or lease of real estate and may not be used for any commercial purpose or any other purpose. The information is deemed reliable but is not guaranteed accurate by PROPTX.

Hospital
Parks
Schools
Place of Worship
Please select an amenity above to view a list.

Recommended Properties

Loading...
2187 Mariposa Road
Oakville , Ontario
4 5 $1,999,900
Get more info