For Lease - 2190 Warden Avenue Unit# G10, Toronto, Ontario

Views   2
Time on Jump  4 day
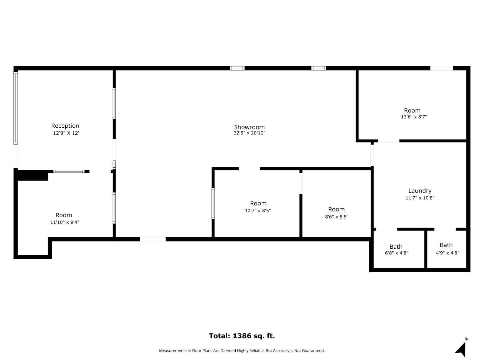
  • Prime location in high traffic plaza for maximum visibility.
  • Corner unit with abundant natural light throughout.
  • Easy access with both main and side entrances.
  • Spacious main floor layout, ideal for various commercial uses.
  • Well-equipped with two bathrooms for convenience.
Location! Location! Location! Very high traffic plaza and professional office building in the heart of scarborough at the west corner of warden ave. & sheppard ave. East. Access to public transportation as well as local roads and highway 401. Corner unit with a lot of windows and well lit with natural light. Must see! Located on main floor across from the parking lot. Easy access. Main door as well as side entrance. 2 bathrooms. 1,386 sq. Ft of total space. Ideal foe many commercial uses. Very tenant friendly landlord.
Listing IDE12930412
Address2190 Warden Avenue Unit# G10
CityToronto, Ontario
Lease$19
StyleCommercial Retail
TypeIndustrial/Commercial
StatusFor Lease
Subtype Commercial RetailOwnership LeaseholdHeating / Cooling Gas Forced Air Closed
ASAP

Thu

2

Apr

Fri

3

Apr

Sat

4

Apr

Sun

5

Apr

Mon

6

Apr

Tue

7

Apr

Wed

8

Apr

Thu

9

Apr

Fri

10

Apr

Sat

11

Apr

Sun

12

Apr

Mon

13

Apr

Tue

14

Apr

Wed

15

Apr

Thu

16

Apr

Fri

17

Apr

Sat

18

Apr

Sun

19

Apr

Mon

20

Apr

Tue

21

Apr

Wed

22

Apr

Thu

23

Apr

Fri

24

Apr

Sat

25

Apr

Sun

26

Apr

Mon

27

Apr

Tue

28

Apr

Wed

29

Apr

Thu

30

Apr

By clicking “Get pre-qualified” and/or 'Submit' you are expressly consenting, in writing, to receive telemarketing and other messages, including artificial or prerecorded voices, via automated calls or texts from jumprealty.ca and up.mortgages at the number you provided above. This consent is not required to purchase any good or service. Message and data rates may apply, frequency varies. Text HELP for help or STOP to cancel. More details in Terms of Use and Privacy Policy.

Listing Agency:  RE/MAX HALLMARK REALTY LTD.

* Data is provided courtesy of PROPTX. The information provided herein must only be used by consumers that have a bona fide interest in the purchase, sale, or lease of real estate and may not be used for any commercial purpose or any other purpose. The information is deemed reliable but is not guaranteed accurate by PROPTX.

Hospital
Parks
Schools
Place of Worship
Please select an amenity above to view a list.

Recommended Properties

Loading...
2190 Warden Avenue Unit# G10
Toronto , Ontario
$19
Get more info