For Lease - 22 Lansdowne Avenue Unit# C, Toronto, Ontario

Views   1
Time on Jump  48 day
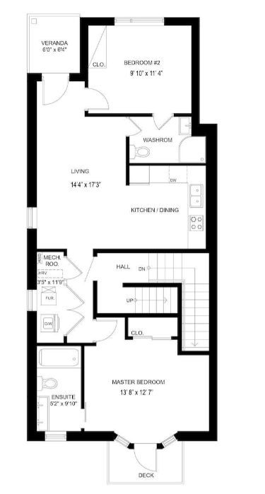
  • Modern 750 sqft flat with 2 bedrooms and 2 full bathrooms.
  • Private access to two charming terraces for outdoor enjoyment.
  • Upgraded kitchen featuring quartz countertops and gas cooktop.
  • Located in a historic district near restaurants and transit.
  • Flat fee covers water and high-speed internet for convenience.
Modern masterpiece - 750 sqft, 2-bedroom flat with 2 full washrooms and private use of two quaint terraces. Elevating the standard of home comfort, this suite has its own self-regulating temperature controls. Conveniences of a condo - while in a wide and bright toronto home. Historic district offers the best in international cuisine, cafe's and just steps to major ttc transit arteries. Upgraded kitchen for your culinary flare - incl. Quartz countertops, gas cooktop, full-sized fridge and 24 inch bosch dishwasher + soft close cabinetry. Newly renovated from top to bottom. $75 monthly flat fee covers water and high-speed internet. Full-sized ensuite laundry ready for your own use. Fantastic opportunity to secure a brand new 2-bedroom 2-bathroom suite in a highly desirable neighbourhood. This suite offers excellent privacy from each window. Available april 1.
Listing IDW12782386
Address22 Lansdowne Avenue Unit# C
CityToronto, Ontario
Lease$3,050
Bed / Bath2 / 2 Full
StyleApartment, Fourplex
ConstructionBrick
TypeMulti-Family
StatusFor Lease
Subtype FourplexIndoor Features Other, EnsuiteInclusions OtherAmenities Arts Centre, Hospital, Library, Public Transit, ParkOwnership LeaseholdBasement NoneFoundation StoneHeating / Cooling Forced AirHeating Fuel GasSewer Sewer
ASAP

Fri

3

Apr

Sat

4

Apr

Sun

5

Apr

Mon

6

Apr

Tue

7

Apr

Wed

8

Apr

Thu

9

Apr

Fri

10

Apr

Sat

11

Apr

Sun

12

Apr

Mon

13

Apr

Tue

14

Apr

Wed

15

Apr

Thu

16

Apr

Fri

17

Apr

Sat

18

Apr

Sun

19

Apr

Mon

20

Apr

Tue

21

Apr

Wed

22

Apr

Thu

23

Apr

Fri

24

Apr

Sat

25

Apr

Sun

26

Apr

Mon

27

Apr

Tue

28

Apr

Wed

29

Apr

Thu

30

Apr

Fri

1

May

By clicking “Get pre-qualified” and/or 'Submit' you are expressly consenting, in writing, to receive telemarketing and other messages, including artificial or prerecorded voices, via automated calls or texts from jumprealty.ca and up.mortgages at the number you provided above. This consent is not required to purchase any good or service. Message and data rates may apply, frequency varies. Text HELP for help or STOP to cancel. More details in Terms of Use and Privacy Policy.

Listing Agency:  SAGE REAL ESTATE LIMITED

* Data is provided courtesy of PROPTX. The information provided herein must only be used by consumers that have a bona fide interest in the purchase, sale, or lease of real estate and may not be used for any commercial purpose or any other purpose. The information is deemed reliable but is not guaranteed accurate by PROPTX.

Hospital
Parks
Schools
Place of Worship
Please select an amenity above to view a list.

Recommended Properties

Loading...
22 Lansdowne Avenue Unit# C
Toronto , Ontario
2 2 $3,050
Get more info