For Sale - 22 Marion Place, Hamilton, Ontario

Est payment $3,001/mo
Views   1
Time on Jump  1 days
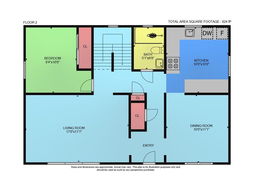
  • Charming 1.5-storey home located on a quiet dead-end street.
  • Three bedrooms including a convenient main floor bedroom.
  • Bright main floor with a 3-piece bathroom and sunroom.
  • Detached single-car garage for extra storage and functionality.
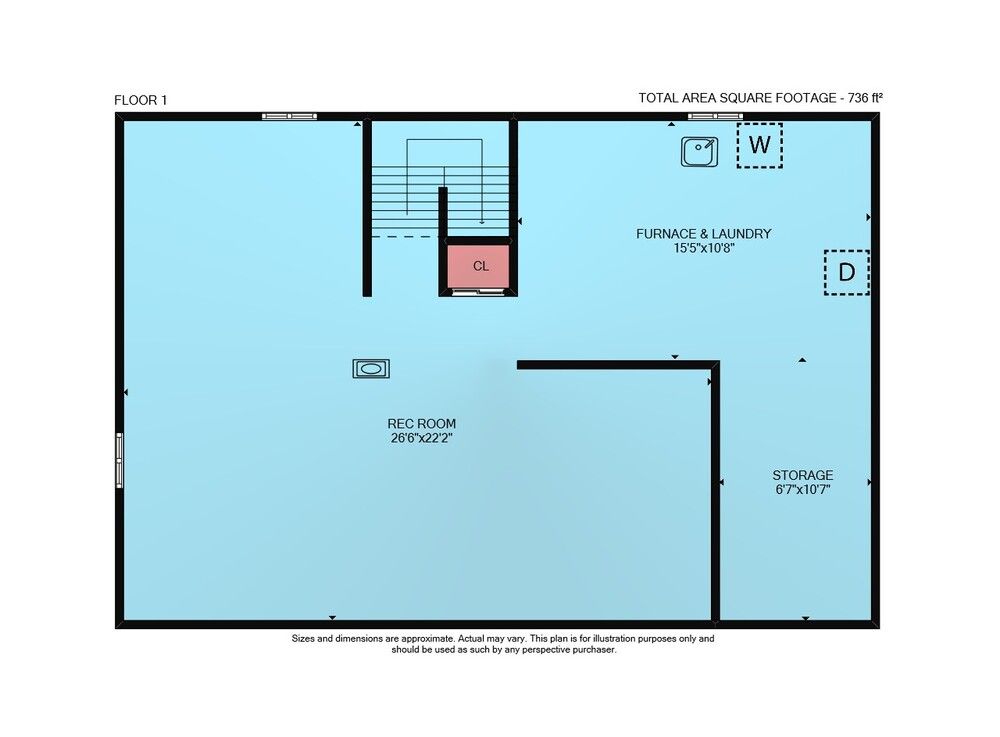
  • Unfinished basement offers endless possibilities for customization.



Welcome to this charming 1. 5-storey detached home tucked away on a quiet dead-end street in a fantastic neighborhood! Featuring 3 bedrooms, including a main floor bedroom for added convenience, this home features a versatile layout perfect for families or downsizers. Bright and inviting main floor with a 3-piece bathroom. Enjoy your morning coffee or unwind in the sunroom overlooking the backyard. Detached single-car garage adds extra storage and functionality. Unfinished basement provides endless possibilities to make it your own. A great opportunity in a peaceful, family-friendly location! Needs some tlc rsa
Listing IDX12973304
Address22 Marion Place
CityHamilton, Ontario
Price$624,900
Bed / Bath3 / 1 Full
Style1 1/2 Storey, Detached
ConstructionStucco (Plaster)
TypeResidential
StatusFor Sale
Subtype DetachedIndoor Features Water HeaterOwnership FreeholdBasement Full, UnfinishedFoundation Concrete BlockHeating / Cooling Forced AirHeating Fuel GasSewer Sewer
Parking 4.00
ASAP

Thu

9

Apr

Fri

10

Apr

Sat

11

Apr

Sun

12

Apr

Mon

13

Apr

Tue

14

Apr

Wed

15

Apr

Thu

16

Apr

Fri

17

Apr

Sat

18

Apr

Sun

19

Apr

Mon

20

Apr

Tue

21

Apr

Wed

22

Apr

Thu

23

Apr

Fri

24

Apr

Sat

25

Apr

Sun

26

Apr

Mon

27

Apr

Tue

28

Apr

Wed

29

Apr

Thu

30

Apr

Fri

1

May

Sat

2

May

Sun

3

May

Mon

4

May

Tue

5

May

Wed

6

May

Thu

7

May

By clicking “Get pre-qualified” and/or 'Submit' you are expressly consenting, in writing, to receive telemarketing and other messages, including artificial or prerecorded voices, via automated calls or texts from jumprealty.ca and up.mortgages at the number you provided above. This consent is not required to purchase any good or service. Message and data rates may apply, frequency varies. Text HELP for help or STOP to cancel. More details in Terms of Use and Privacy Policy.

Listing Agency:  ROYAL LEPAGE STATE REALTY

* Data is provided courtesy of PROPTX. The information provided herein must only be used by consumers that have a bona fide interest in the purchase, sale, or lease of real estate and may not be used for any commercial purpose or any other purpose. The information is deemed reliable but is not guaranteed accurate by PROPTX.

Hospital
Parks
Schools
Place of Worship
Please select an amenity above to view a list.

Recommended Properties

Loading...
22 Marion Place
Hamilton , Ontario
3 1 $624,900
Get more info