For Lease - 22 Ryan Street Unit# Basement, Centre Wellington, Ontario

Views   1
Time on Jump  25 day
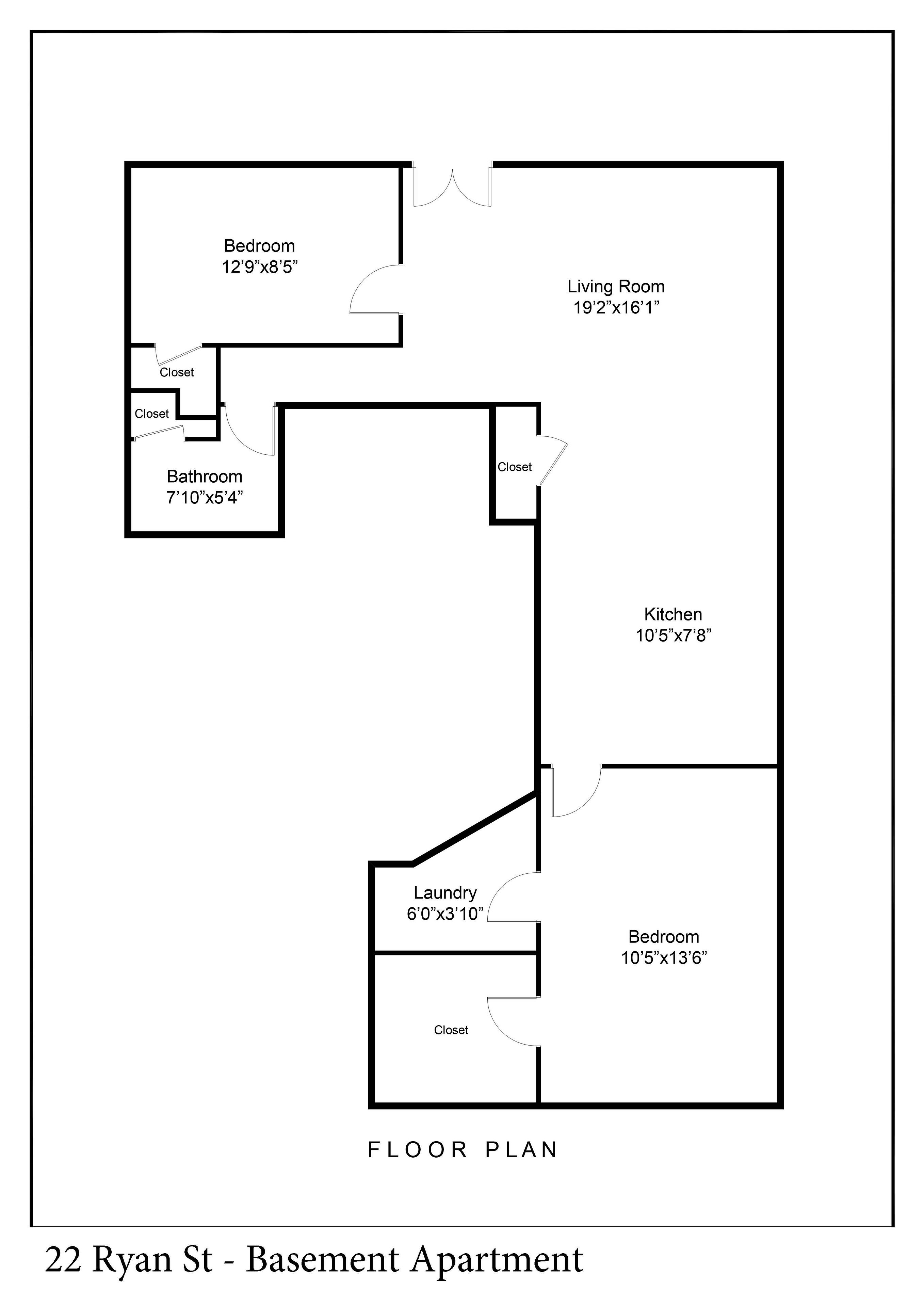
  • Bright and spacious 2 bed, 1 bath walk-out basement apartment.
  • Open floor plan connects living area to backyard for easy access.
  • Modern kitchen features quartz counters and stainless steel appliances.
  • Master bedroom has a walk-in closet for added convenience.
  • Located in a peaceful neighborhood close to parks and amenities.
A beautiful 2 bed + 1 bath walk-out basement apartment in a family friendly neighborhood of fergus! Located in a peaceful area surrounded by amazing nature! Perfectly designed with an open floor plan. Very bright. Spacious living area with walk-out to backyard. Large kitchen with quartz counters, stainless steel appliances and backsplash. Master bedroom with walk-in closet, second well-sized bedroom and a 3-piece bathroom. Ensuite laundry. Close to parks, schools and all local amenities. Close proximity to highway 6. Basement tenant has an exclusive use of 1 parking spot on the driveway. Basement tenant pays 1/3 of all utilities.
Listing IDX12865640
Address22 Ryan Street Unit# Basement
CityCentre Wellington, Ontario
Lease$1,900
Bed / Bath2 / 1 Full
Style2-Storey, Detached
ConstructionBrick
TypeResidential
StatusFor Lease
Subtype DetachedIndoor Features Carpet Free, Ensuite, Laundry RoomInclusions ParkingAmenities Park, Place Of Worship, SchoolOwnership LeaseholdBasement ApartmentFoundation Poured ConcreteHeating / Cooling Forced AirHeating Fuel GasSewer Sewer
Parking 1.00
ASAP

Mon

6

Apr

Tue

7

Apr

Wed

8

Apr

Thu

9

Apr

Fri

10

Apr

Sat

11

Apr

Sun

12

Apr

Mon

13

Apr

Tue

14

Apr

Wed

15

Apr

Thu

16

Apr

Fri

17

Apr

Sat

18

Apr

Sun

19

Apr

Mon

20

Apr

Tue

21

Apr

Wed

22

Apr

Thu

23

Apr

Fri

24

Apr

Sat

25

Apr

Sun

26

Apr

Mon

27

Apr

Tue

28

Apr

Wed

29

Apr

Thu

30

Apr

Fri

1

May

Sat

2

May

Sun

3

May

Mon

4

May

By clicking “Get pre-qualified” and/or 'Submit' you are expressly consenting, in writing, to receive telemarketing and other messages, including artificial or prerecorded voices, via automated calls or texts from jumprealty.ca and up.mortgages at the number you provided above. This consent is not required to purchase any good or service. Message and data rates may apply, frequency varies. Text HELP for help or STOP to cancel. More details in Terms of Use and Privacy Policy.

Listing Agency:  RE/MAX ABOUTOWNE REALTY CORP.

* Data is provided courtesy of PROPTX. The information provided herein must only be used by consumers that have a bona fide interest in the purchase, sale, or lease of real estate and may not be used for any commercial purpose or any other purpose. The information is deemed reliable but is not guaranteed accurate by PROPTX.

Hospital
Parks
Schools
Place of Worship
Please select an amenity above to view a list.

Recommended Properties

Loading...
22 Ryan Street Unit# Basement
Centre Wellington , Ontario
2 1 $1,900
Get more info