For Sale - 2202 Brookhaven Crescent, Oakville, Ontario

Est payment $9,311/mo
Views   1
Time on Jump  1 days
  • Elegant east-facing home with spacious layout perfect for family living.
  • Walking distance to top-ranked school, parks, and trails for outdoor activities.
  • Private backyard oasis features a saltwater pool and wrap-around stone patio.
  • Newly finished basement includes recreation space and additional bedroom and kitchen.
  • Interior boasts high ceilings, hardwood floors, and modern kitchen with island.



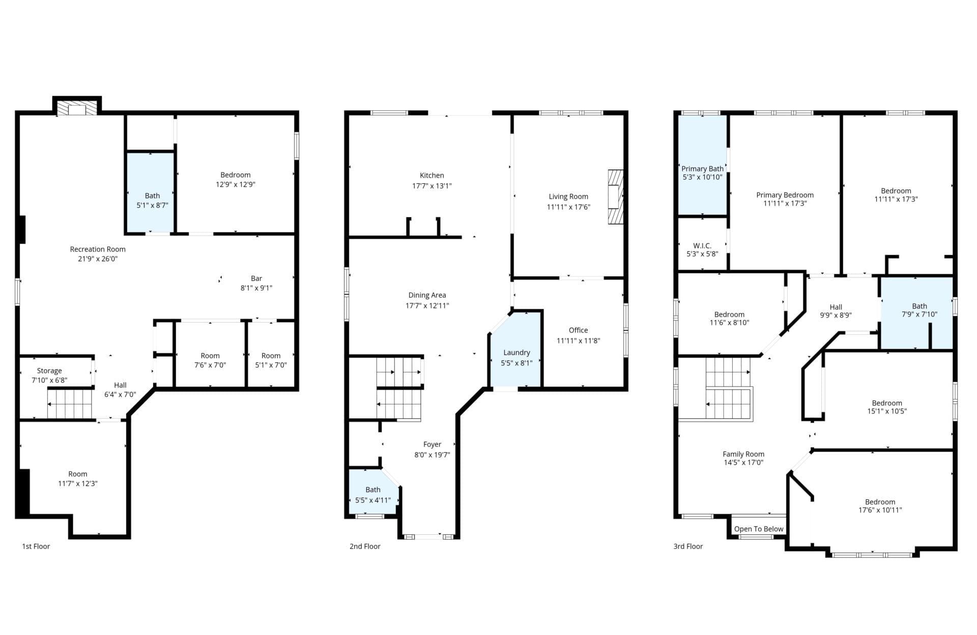
Beautiful east-facing home situated on a highly sought-after street in westmount, this elegant markay-built 5+1 bedroom, 4-bathroom home offers exceptional space and family living in one of oakville's most desirable communities. Walking distance to top-ranked garth webb secondary school, scenic parks, ponds, and trails, and minutes to glen abbey community centre, oakville trafalgar memorial hospital, abbey plaza, and major highways. Beautiful brick and stone exterior with double driveway and attached garage. Private backyard oasis featuring a saltwater pool, wrap-around stone patio, mature evergreens, landscape lighting, and built-in outdoor speakers. The interior features 9-ft ceilings, hardwood floors, pot lights, california shutters, and custom wall details. The main level offers a sun-filled living room with gas fireplace, formal dining room, private office with french doors, and main-floor laundry. Bright kitchen with white cabinetry, granite counters, stainless steel appliances, pantry, and centre island with breakfast bar leading to the backyard. Upstairs offers a spacious family room, five bedrooms, and two full baths including a primary retreat with walk-in closet and updated ensuite. Newly finished basement (2025) includes recreation room with fireplace, second kitchen, bedroom, bath, and laundry-ideal for extended family. *for additional property details click the brochure icon below*
Listing IDW12891746
Address2202 Brookhaven Crescent
CityOakville, Ontario
Price$1,939,000
Bed / Bath6 / 4 Full
Style2-Storey, Detached
ConstructionBrick
TypeResidential
StatusFor Sale
Subtype DetachedIndoor Features Central Vacuum, In-Law Suite, Water HeaterOwnership FreeholdWaterfront NoneBasement FinishedFoundation UnknownHeating / Cooling Forced AirHeating Fuel GasSewer Sewer
Parking 6.00
ASAP

Wed

18

Mar

Thu

19

Mar

Fri

20

Mar

Sat

21

Mar

Sun

22

Mar

Mon

23

Mar

Tue

24

Mar

Wed

25

Mar

Thu

26

Mar

Fri

27

Mar

Sat

28

Mar

Sun

29

Mar

Mon

30

Mar

Tue

31

Mar

Wed

1

Apr

Thu

2

Apr

Fri

3

Apr

Sat

4

Apr

Sun

5

Apr

Mon

6

Apr

Tue

7

Apr

Wed

8

Apr

Thu

9

Apr

Fri

10

Apr

Sat

11

Apr

Sun

12

Apr

Mon

13

Apr

Tue

14

Apr

Wed

15

Apr

By clicking “Get pre-qualified” and/or 'Submit' you are expressly consenting, in writing, to receive telemarketing and other messages, including artificial or prerecorded voices, via automated calls or texts from jumprealty.ca and up.mortgages at the number you provided above. This consent is not required to purchase any good or service. Message and data rates may apply, frequency varies. Text HELP for help or STOP to cancel. More details in Terms of Use and Privacy Policy.

Listing Agency:  ICI SOURCE REAL ASSET SERVICES INC.

* Data is provided courtesy of PROPTX. The information provided herein must only be used by consumers that have a bona fide interest in the purchase, sale, or lease of real estate and may not be used for any commercial purpose or any other purpose. The information is deemed reliable but is not guaranteed accurate by PROPTX.

Hospital
Parks
Schools
Place of Worship
Please select an amenity above to view a list.

Recommended Properties

Loading...
2202 Brookhaven Crescent
Oakville , Ontario
6 4 $1,939,000
Get more info