For Lease - 2206 Eglington Avenue Unit# 200, Toronto, Ontario

Views   1
Time on Jump  6 day
  • Flexible office space with various configurations to suit different needs.
  • High-profile location on a busy street with excellent visibility.
  • Walking distance to multiple public transit options for convenience.
  • Close to shopping centers and restaurants for easy access.
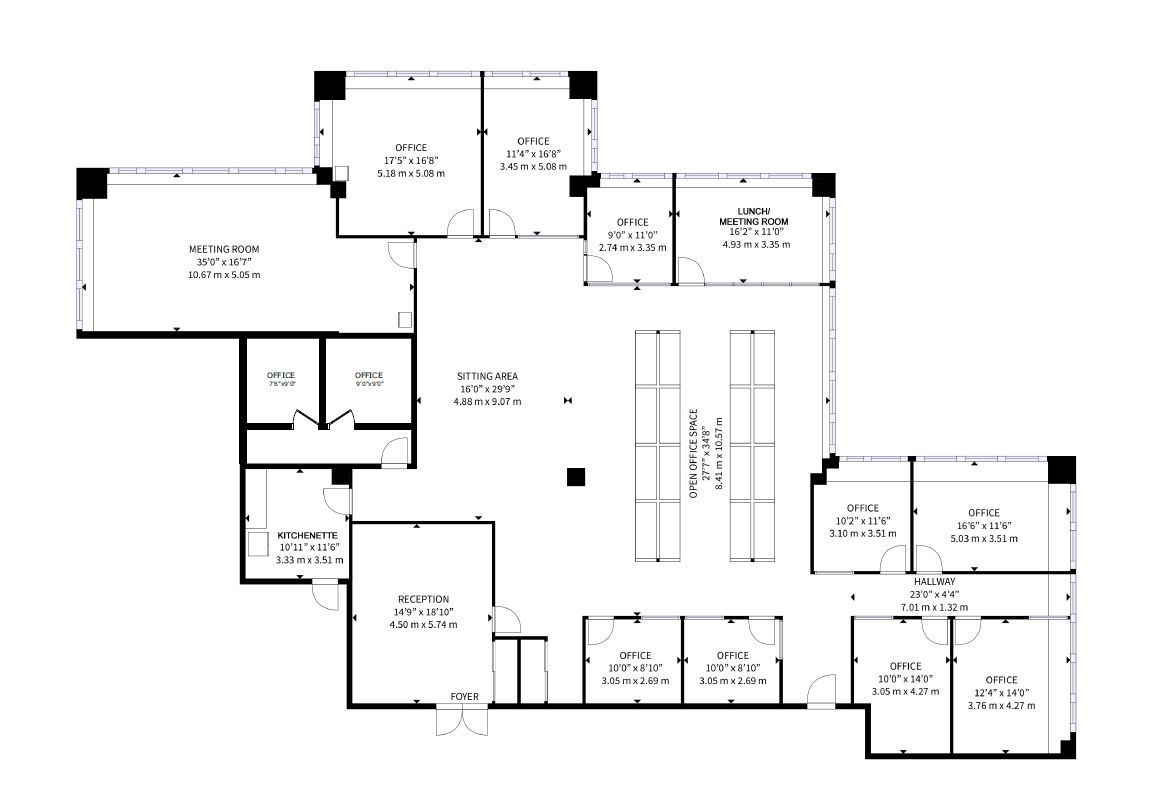
  • Includes large reception and meeting areas for professional gatherings.
Divisible office space. Zoning allows for office, medical, child care services & much more. Currently: 9 offices (6 customizable offices) + 1 large board room + 1 large lunch/meeting room + kitchenette (no sink)/coffee/water station + large reception + large sitting area/meeting area + open area for cubicle office space. This high profile divisible office space is very will designed for efficient use of the office space. Located perfectly along the golden mile (high traffic area). Walking distance to public transit (kennedy go station, ttc bus, warden & kennedy subway stations and eglington crosstown lrt stop), shopping (scarborough town centre & golden mile) & restaurants all around. Very busy area of scarborough. Visible signage available with the lease! Additional rent (t&o) $19. 25/sqft.
Listing IDE13007446
Address2206 Eglington Avenue Unit# 200
CityToronto, Ontario
Lease$12
StyleOffice
TypeIndustrial/Commercial
StatusFor Lease
Subtype OfficeOwnership LeaseholdHeating / Cooling Gas Forced Air OpenSewer Sanitary
ASAP

Thu

23

Apr

Fri

24

Apr

Sat

25

Apr

Sun

26

Apr

Mon

27

Apr

Tue

28

Apr

Wed

29

Apr

Thu

30

Apr

Fri

1

May

Sat

2

May

Sun

3

May

Mon

4

May

Tue

5

May

Wed

6

May

Thu

7

May

Fri

8

May

Sat

9

May

Sun

10

May

Mon

11

May

Tue

12

May

Wed

13

May

Thu

14

May

Fri

15

May

Sat

16

May

Sun

17

May

Mon

18

May

Tue

19

May

Wed

20

May

Thu

21

May

By clicking “Get pre-qualified” and/or 'Submit' you are expressly consenting, in writing, to receive telemarketing and other messages, including artificial or prerecorded voices, via automated calls or texts from jumprealty.ca and up.mortgages at the number you provided above. This consent is not required to purchase any good or service. Message and data rates may apply, frequency varies. Text HELP for help or STOP to cancel. More details in Terms of Use and Privacy Policy.

Listing Agency:  RE/MAX REALTRON REALTY INC.

* Data is provided courtesy of PROPTX. The information provided herein must only be used by consumers that have a bona fide interest in the purchase, sale, or lease of real estate and may not be used for any commercial purpose or any other purpose. The information is deemed reliable but is not guaranteed accurate by PROPTX.

Hospital
Parks
Schools
Place of Worship
Please select an amenity above to view a list.

Recommended Properties

Loading...
2206 Eglington Avenue Unit# 200
Toronto , Ontario
$12
Get more info