For Lease - 2206 Eglinton Avenue Unit# 200, Toronto, Ontario

Views   1
Time on Jump  26 day
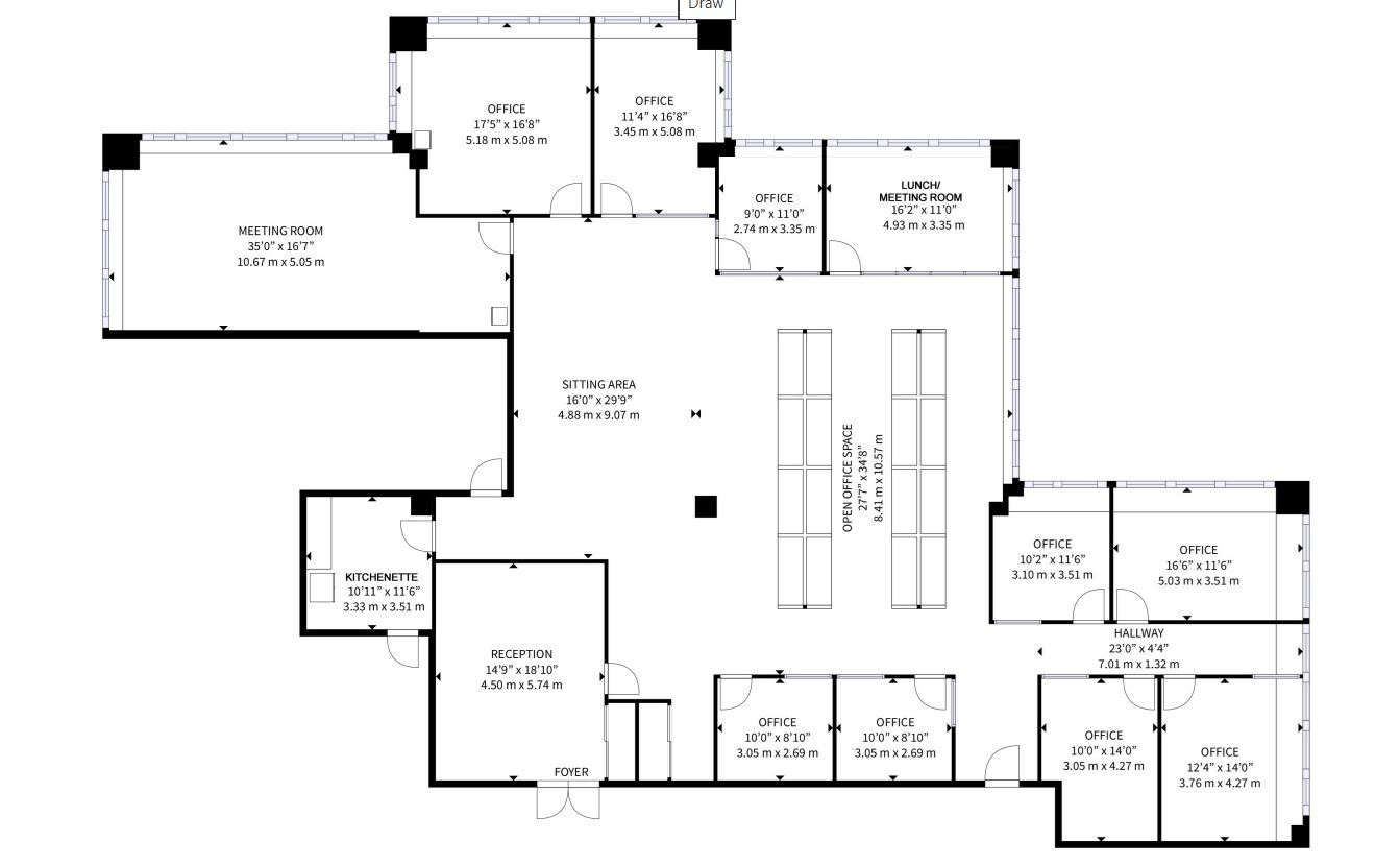
  • Spacious 5,670 sqft office layout with 9 customizable offices and a board room.
  • Large reception and sitting area for clients and meetings.
  • Convenient kitchenette and coffee/water station for staff.
  • Highly visible location on the busy Golden Mile, great for foot traffic.
  • Easily accessible public transit options within walking distance.
9 offices (6 customizable offices) + 1 large board room + 1 large lunch/meeting room + kitchenette (no sink)/coffee/water station + large reception + large sitting area/meeting area + open area for cubicle office space. This high profile 5,670 sqft of office space is very will designed for efficient use of the office space (see virtual walkthrough). Located perfectly along the golden mile (high traffic area). Walking distance to public transit (kennedy go station, ttc bus, warden & kennedy subway stations and eglington crosstown lrt stop), shopping (scarborough town centre & golden mile) & restaurants all around. Very busy area of scarborough. Visible signage available with the lease! Additional rent (t&o) $18. 51/sqft. The space has two doors for entry, the space can be divided into smaller space.
Listing IDE12841964
Address2206 Eglinton Avenue Unit# 200
CityToronto, Ontario
Lease$12
StyleOffice
TypeIndustrial/Commercial
StatusFor Lease
Subtype OfficeOwnership LeaseholdHeating / Cooling Gas Forced Air OpenSewer Sanitary
ASAP

Tue

31

Mar

Wed

1

Apr

Thu

2

Apr

Fri

3

Apr

Sat

4

Apr

Sun

5

Apr

Mon

6

Apr

Tue

7

Apr

Wed

8

Apr

Thu

9

Apr

Fri

10

Apr

Sat

11

Apr

Sun

12

Apr

Mon

13

Apr

Tue

14

Apr

Wed

15

Apr

Thu

16

Apr

Fri

17

Apr

Sat

18

Apr

Sun

19

Apr

Mon

20

Apr

Tue

21

Apr

Wed

22

Apr

Thu

23

Apr

Fri

24

Apr

Sat

25

Apr

Sun

26

Apr

Mon

27

Apr

Tue

28

Apr

By clicking “Get pre-qualified” and/or 'Submit' you are expressly consenting, in writing, to receive telemarketing and other messages, including artificial or prerecorded voices, via automated calls or texts from jumprealty.ca and up.mortgages at the number you provided above. This consent is not required to purchase any good or service. Message and data rates may apply, frequency varies. Text HELP for help or STOP to cancel. More details in Terms of Use and Privacy Policy.

Listing Agency:  RE/MAX REALTRON REALTY INC.

* Data is provided courtesy of PROPTX. The information provided herein must only be used by consumers that have a bona fide interest in the purchase, sale, or lease of real estate and may not be used for any commercial purpose or any other purpose. The information is deemed reliable but is not guaranteed accurate by PROPTX.

Hospital
Parks
Schools
Place of Worship
Please select an amenity above to view a list.

Recommended Properties

Loading...
2206 Eglinton Avenue Unit# 200
Toronto , Ontario
$12
Get more info