For Sale - 221 Edwina Drive, Trent Lakes, Ontario

Est payment $4,902/mo
Views   1
Time on Jump  89 day
  • 15-acre retreat with serene forest, trails, and ponds nearby.
  • Original 1836 log cabin updated with modern amenities and rustic charm.
  • Spacious back deck overlooks the pond, perfect for relaxation.
  • Multiple cabins including a yurt for unique gatherings or retreats.
  • Detached garage with woodstove offers additional storage and practicality.



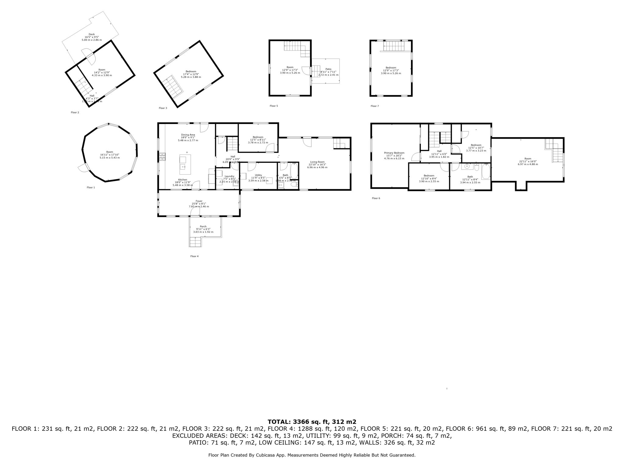
Some places speak to the soul, and this is one of them. Set on a peaceful municipal road just 15 minutes from bobcaygeon and buckhorn, this 15-acre retreat offers forest, trails, and ponds a sanctuary where life feels beautifully simple. At its heart is an 1836 log cabin, lovingly preserved and thoughtfully updated. The front porch invites slow mornings with coffee in hand, while inside a renovated kitchen blends modern convenience with rustic charm a granite waterfall island, abundant cabinetry, and natural light spilling across the eat-in dining space with walkout to the rear deck. The main floor also includes a cozy office/bedroom, full bathroom, laundry, and utility space. Upstairs, three bedrooms and a second 4pc bath provide room for family and guests, while the separate master suite feels like its own retreat with serene views over the property. The living room radiates warmth and magic perfect for gathering, playing the piano, or simply enjoying the ambiance. Step outside and life feels enchanted. A spacious back deck overlooks the pond, while a screened-in room sets the stage for evenings with a glass of wine and the soundtrack of nature. Multiple fire pits invite storytelling under the stars. A detached garage with woodstove and storage adds practicality to the lifestyle. Beyond the main home, the property unfolds with soulful spaces: a 2-storey log cabin designed as a spiritual retreat with a main-floor service room and upstairs bedroom, plus a second 2-storey log cabin with dining/living area, forest-view bedroom, composting toilet, and outdoor shower. A 17 yurt (2022) adds a magical touch for meditation, gatherings, or guests. With a drilled well, septic, propane furnace, and water treatment, comfort and peace are perfectly balanced. More than a property this is a way of life.
Listing IDX12413383
Address221 Edwina Drive
CityTrent Lakes, Ontario
Price$988,888
Bed / Bath7 / 3 Full
Style2-Storey, Detached
ConstructionLog, Wood
Land Size15.8
TypeResidential
StatusFor Sale
Subtype DetachedIndoor Features ERV/HRV, Guest Accommodations, Propane Tank, Storage Area Lockers, Sump Pump, Water Heater Owned, Water Treatment, WorkbenchOutdoor Features Deck, Lighting, Porch Enclosed, Private Pond, Recreational Area, Year Round LivingAmenities Lake/Pond, Marina, Rec./Commun.Centre, School Bus Route, Wooded/TreedOwnership FreeholdViews Forest, Pond, Trees/WoodsBasement Crawl Space, UnfinishedFoundation Concrete BlockHeating / Cooling Forced AirHeating Fuel PropaneSewer Septic
Parking 11.00
ASAP

Wed

17

Dec

Thu

18

Dec

Fri

19

Dec

Sat

20

Dec

Sun

21

Dec

Mon

22

Dec

Tue

23

Dec

Wed

24

Dec

Thu

25

Dec

Fri

26

Dec

Sat

27

Dec

Sun

28

Dec

Mon

29

Dec

Tue

30

Dec

Wed

31

Dec

Thu

1

Jan

Fri

2

Jan

Sat

3

Jan

Sun

4

Jan

Mon

5

Jan

Tue

6

Jan

Wed

7

Jan

Thu

8

Jan

Fri

9

Jan

Sat

10

Jan

Sun

11

Jan

Mon

12

Jan

Tue

13

Jan

Wed

14

Jan

By clicking “Get pre-qualified” and/or 'Submit' you are expressly consenting, in writing, to receive telemarketing and other messages, including artificial or prerecorded voices, via automated calls or texts from jumprealty.ca and up.mortgages at the number you provided above. This consent is not required to purchase any good or service. Message and data rates may apply, frequency varies. Text HELP for help or STOP to cancel. More details in Terms of Use and Privacy Policy.

Listing Agency:  BALL REAL ESTATE INC.
Hospital
Parks
Schools
Place of Worship
Please select an amenity above to view a list.

Recommended Properties

Loading...
221 Edwina Drive
Trent Lakes , Ontario
7 3 $988,888
Get more info