For Sale - 226 Main Street, Huron East, Ontario

Est payment $3,121/mo
Views   2
Time on Jump  161 day
  • Well-maintained all-brick ranch home ideal for main-floor living.
  • Spacious living room with French doors for entertaining.
  • Open-concept kitchen flows into dining and cozy eating areas.
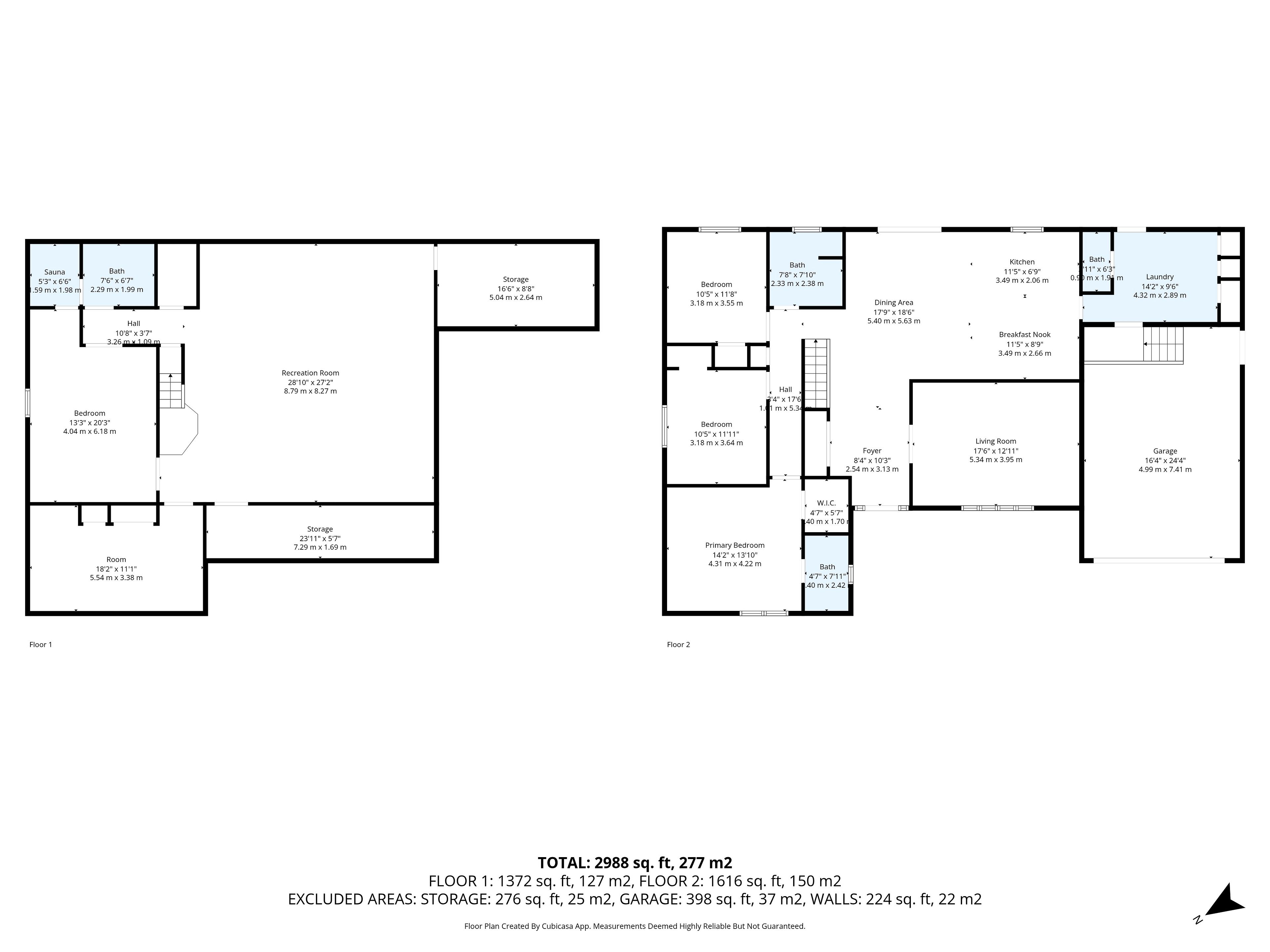
  • Lower level with large family room, gas fireplace, and sauna.
  • Fully fenced yard with an attached garage and storage shed.



Welcome to this beautifully maintained all-brick ranch-style home offering sought-after main-floor living space. The large, inviting front entrance opens into a bright and spacious living room, perfect for entertaining, featuring french doors that add a touch of elegance. The open-concept kitchen seamlessly connects to the cozy eating area and a separate dining space, creating a perfect flow for family gatherings and entertaining. The primary bedroom includes a private ensuite, and there are two additional bedrooms on the main level, along with a four-piece bath. Convenience abounds with main-floor laundry and a large back entrance complete with a two piece bath. The lower level offers an abundance of additional living space, featuring a huge family room with a gas fireplace, two more bedrooms, a full bathroom, and a custom walk-in sauna - perfect for relaxation. Outside, enjoy a fully fenced yard, attached garage, and a storage shed for extra space. This home combines comfort, functionality, and charm - ideal for families or anyone seeking spacious one-level living with fantastic lower-level space.
Listing IDX12534620
Address226 Main Street
CityHuron East, Ontario
Price$649,900
Bed / Bath5 / 4 Full
StyleBungalow, Detached
ConstructionBrick
Land Size11810.88
TypeResidential
StatusFor Sale
Subtype DetachedIndoor Features Generator - Full, Water Heater Owned, Sump PumpAmenities Golf, Hospital, Library, Place Of Worship, School Bus Route, SchoolOwnership FreeholdBasement Full, FinishedFoundation ConcreteHeating / Cooling Forced AirHeating Fuel GasSewer Sewer
Parking 6.00
ASAP

Wed

22

Apr

Thu

23

Apr

Fri

24

Apr

Sat

25

Apr

Sun

26

Apr

Mon

27

Apr

Tue

28

Apr

Wed

29

Apr

Thu

30

Apr

Fri

1

May

Sat

2

May

Sun

3

May

Mon

4

May

Tue

5

May

Wed

6

May

Thu

7

May

Fri

8

May

Sat

9

May

Sun

10

May

Mon

11

May

Tue

12

May

Wed

13

May

Thu

14

May

Fri

15

May

Sat

16

May

Sun

17

May

Mon

18

May

Tue

19

May

Wed

20

May

By clicking “Get pre-qualified” and/or 'Submit' you are expressly consenting, in writing, to receive telemarketing and other messages, including artificial or prerecorded voices, via automated calls or texts from jumprealty.ca and up.mortgages at the number you provided above. This consent is not required to purchase any good or service. Message and data rates may apply, frequency varies. Text HELP for help or STOP to cancel. More details in Terms of Use and Privacy Policy.

Listing Agency:  RE/MAX Reliable Realty Inc

* Data is provided courtesy of PROPTX. The information provided herein must only be used by consumers that have a bona fide interest in the purchase, sale, or lease of real estate and may not be used for any commercial purpose or any other purpose. The information is deemed reliable but is not guaranteed accurate by PROPTX.

Hospital
Parks
Schools
Place of Worship
Please select an amenity above to view a list.

Recommended Properties

Loading...
226 Main Street
Huron East , Ontario
5 4 $649,900
Get more info