For Sale - 22790 Amiens Road Unit# 1, Middlesex Centre, Ontario

Est payment $1,536/mo
Views   2
Time on Jump  12 day
  • Enjoy a peaceful cottage-like setting in a vibrant retirement community.
  • Spacious 3-bedroom home with open-concept living filled with natural light.
  • Private back deck with BBQ space and nearby propane hook-up for outdoor fun.
  • Clubhouse amenities include a gym, pool, dining, and activities for all interests.
  • Beautifully landscaped grounds feature gardens, ponds, and a saltwater pool.



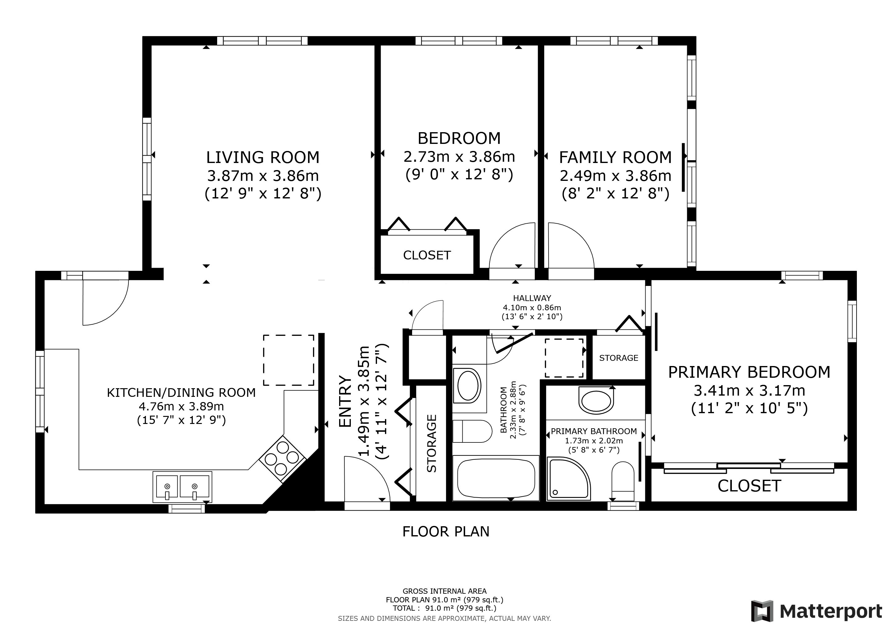
Live the resort lifestyle year-round in unit #1 at oriole park resort--a rare gem in komoka just 10 minutes west of london. This vibrant four-season retirement community offers a peaceful, cottage-like setting and this 3-bedroom, 2-bathroom modular home is packed with features that make everyday living feel like a getaway. Inside, enjoy hand-scraped laminate floors, an open-concept living, dining, and kitchen area filled with natural light, plus generous closet space at the entrance. The kitchen features stainless steel appliances, tile backsplash, and ample cabinetry. Off the dining area, step onto a private back deck with patio space and a nearby propane hook-up--perfect for summer bbqs. The main 4-piece bathroom is equipped with built-in storage and a convenient stacked washer/dryer. All bedrooms are bright and spacious, with great closet space. One room functions beautifully as a sunroom, an office or third bedroom--your choice! From there, sliding doors lead to a cozy enclosed deck for even more outdoor enjoyment. The primary suite features vaulted ceilings, generous closet space, and 3-piece ensuite. Enjoy unobstructed outdoor views with a neighbouring lot that will remain vacant--offering extra privacy and serenity. A storage shed adds practical outdoor space for tools and gear and two parking spaces is a bonus! But what truly sets this home apart is the unmatched lifestyle oriole park offers: clubhouse amenities like a salon and spa, golf simulator, dog grooming station, fitness centre, pickleball court, event space, library, and a fully licensed bistro/bar with a pool table and darts. Stroll the beautifully landscaped grounds, complete with koi ponds, shuffleboard, an off-leash dog park, saltwater pool, community fire pit and garden, and bbq areas. If you're ready to downsize without compromise, unit #1 is your ticket to affordable, stylish, and social living in one of the regions most unique communities.
Listing IDX12929666
Address22790 Amiens Road Unit# 1
CityMiddlesex Centre, Ontario
Price$319,900
Bed / Bath3 / 2 Full
StyleBungalow, Modular Home
ConstructionVinyl Siding
TypeResidential
StatusFor Sale
Subtype Modular HomeIndoor Features Carpet Free, ERV/HRV, Primary Bedroom - Main Floor, On Demand Water Heater, Water Heater Owned, OtherOutdoor Features Security Gate, Year Round Living, Deck, Patio, LandscapedAmenities Library, Rec./Commun.Centre, Place Of Worship, Golf, Park, OtherOwnership FreeholdBasement NoneFoundation SlabHeating / Cooling Forced AirHeating Fuel PropaneSewer Septic
Parking 2.00
ASAP

Thu

9

Apr

Fri

10

Apr

Sat

11

Apr

Sun

12

Apr

Mon

13

Apr

Tue

14

Apr

Wed

15

Apr

Thu

16

Apr

Fri

17

Apr

Sat

18

Apr

Sun

19

Apr

Mon

20

Apr

Tue

21

Apr

Wed

22

Apr

Thu

23

Apr

Fri

24

Apr

Sat

25

Apr

Sun

26

Apr

Mon

27

Apr

Tue

28

Apr

Wed

29

Apr

Thu

30

Apr

Fri

1

May

Sat

2

May

Sun

3

May

Mon

4

May

Tue

5

May

Wed

6

May

Thu

7

May

By clicking “Get pre-qualified” and/or 'Submit' you are expressly consenting, in writing, to receive telemarketing and other messages, including artificial or prerecorded voices, via automated calls or texts from jumprealty.ca and up.mortgages at the number you provided above. This consent is not required to purchase any good or service. Message and data rates may apply, frequency varies. Text HELP for help or STOP to cancel. More details in Terms of Use and Privacy Policy.

Listing Agency:  THE REALTY FIRM INC.

* Data is provided courtesy of PROPTX. The information provided herein must only be used by consumers that have a bona fide interest in the purchase, sale, or lease of real estate and may not be used for any commercial purpose or any other purpose. The information is deemed reliable but is not guaranteed accurate by PROPTX.

Hospital
Parks
Schools
Place of Worship
Please select an amenity above to view a list.

Recommended Properties

Loading...
22790 Amiens Road Unit# 1
Middlesex Centre , Ontario
3 2 $319,900
Get more info