For Lease - 23 Beverly Street, Brant, Ontario

Views   1
Time on Jump  34 day
  • Spacious industrial facility with over 41,000 sq ft of versatile space.
  • Includes 6,150 sq ft of finished office space for business operations.
  • Clear-span warehouse with multiple loading doors for easy access.
  • Large outdoor area for storage or redevelopment potential.
  • Convenient location on Hwy 5, accessible to major urban centers.
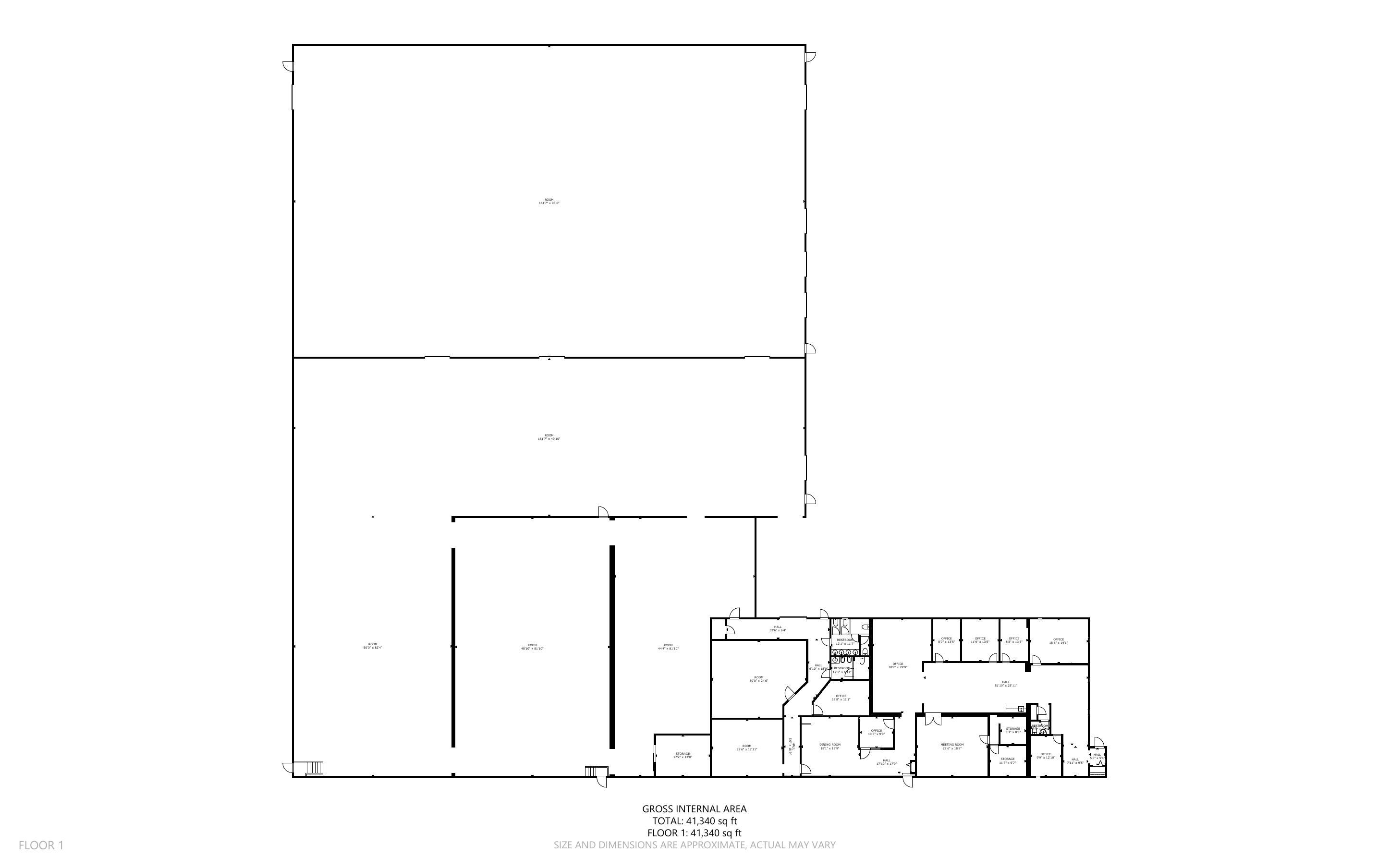
Exceptional 41,340 sq ft industrial office/warehouse facility on 4. 59 acres in the heart of st. George. Offering approximately 6,150 sq ft of finished office space and 35,190 sq ft of clear-span warehouse, this single-storey building provides strong functionality for manufacturing, assembly, storage, or service industrial operations. Warehouse areas feature approx. 16 ft clear, multiple overhead loading doors on both north and south elevations, and excellent circulation for trucks and equipment. The property includes a 400a / 600v / 3-phase electrical service, natural gas heating with suspended unit heaters, rooftop hvac for office zones, and abundant yard space. Site coverage of only ~22% allows generous outdoor storage or redevelopment flexibility. Pca available (2016 pinchin) outlining long-term capital planning including roof life cycles and typical maintenance items. A rare opportunity to acquire a large industrial footprint with significant land in a highly accessible rural-urban edge location on hwy 5 between brantford, cambridge, and hamilton.
Listing IDX12671830
Address23 Beverly Street
CityBrant, Ontario
Lease$3
StyleIndustrial
Land Size4.59
TypeIndustrial/Commercial
StatusFor Lease
Subtype IndustrialOwnership LeaseholdHeating / Cooling Gas Forced Air Open
ASAP

Wed

11

Feb

Thu

12

Feb

Fri

13

Feb

Sat

14

Feb

Sun

15

Feb

Mon

16

Feb

Tue

17

Feb

Wed

18

Feb

Thu

19

Feb

Fri

20

Feb

Sat

21

Feb

Sun

22

Feb

Mon

23

Feb

Tue

24

Feb

Wed

25

Feb

Thu

26

Feb

Fri

27

Feb

Sat

28

Feb

Sun

1

Mar

Mon

2

Mar

Tue

3

Mar

Wed

4

Mar

Thu

5

Mar

Fri

6

Mar

Sat

7

Mar

Sun

8

Mar

Mon

9

Mar

Tue

10

Mar

Wed

11

Mar

By clicking “Get pre-qualified” and/or 'Submit' you are expressly consenting, in writing, to receive telemarketing and other messages, including artificial or prerecorded voices, via automated calls or texts from jumprealty.ca and up.mortgages at the number you provided above. This consent is not required to purchase any good or service. Message and data rates may apply, frequency varies. Text HELP for help or STOP to cancel. More details in Terms of Use and Privacy Policy.

Listing Agency:  Sotheby's International Realty Canada, Brokerage
Hospital
Parks
Schools
Place of Worship
Please select an amenity above to view a list.

Recommended Properties

Loading...
23 Beverly Street
Brant , Ontario
$3
Get more info