For Sale - 23 Frederick Avenue, Hamilton, Ontario

Est payment $2,160/mo
Views   1
Time on Jump  1 days
  • Backs onto an elementary school and close to parks and shops.
  • Spacious main floor with hardwood floors and bright living areas.
  • Large rear covered deck perfect for entertaining and outdoor activities.
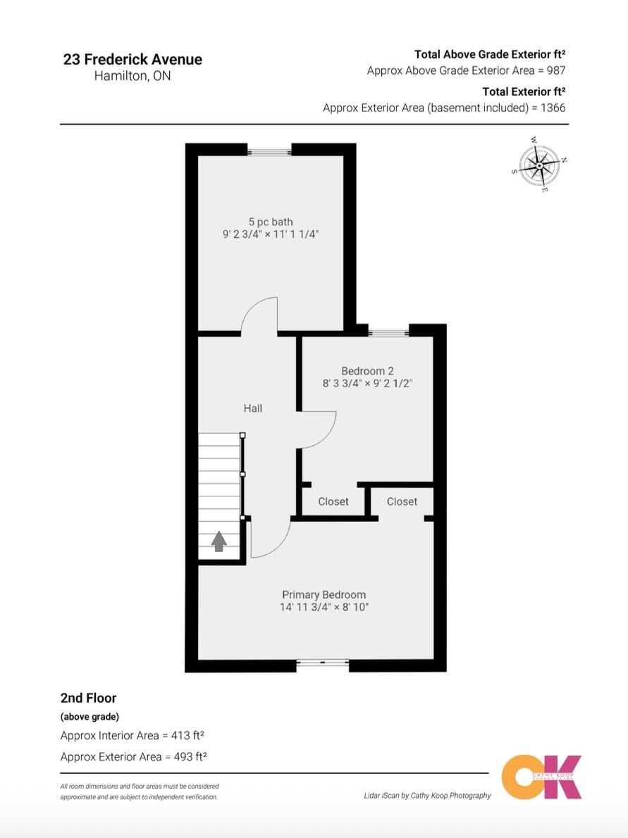
  • Two bedrooms with a roomy bathroom featuring double sinks and a corner tub.
  • Great backyard storage options with a shed and lean-to for convenience.



Welcome to 23 frederick ave in crown point - backing on to an elementary school, steps to parks, centre mall, kenilworth ave & busting ottawa street, known. For saturday farmers markets, trendy shops and cafes. Ideal for first-time buyers/those looking to build equity or ready to transition from condo living, this delightful home offer space and convenience! Main floor features some hardwood floors, bright living room, spacious separate dining room and well-sized l-shaped kitchen. Sliding doors to large rear covered deck. Upper level boasts 2 bedrooms and large bathroom with double sinks, corner soaking tub w/shower. Great backyard for entertaining features a large shed with hydro plus a lean to for plenty of storage. Single car asphalt driveway. Some updated windows and doors, roof shingles in 2021, updated hwt $65 quarterly. Updated hvac. Located just minutes from red hill parkway, qew, mountain access, with easy connections to public transit and the upcoming lrt. Do not miss this opportunity to own a home in a vibrant family oriented neighbourhood!
Listing IDX12985402
Address23 Frederick Avenue
CityHamilton, Ontario
Price$449,900
Bed / Bath2 / 1 Full
Style1 1/2 Storey, Detached
ConstructionAluminum Siding, Vinyl Siding
TypeResidential
StatusFor Sale
Subtype DetachedIndoor Features NoneOwnership FreeholdBasement Full, UnfinishedFoundation Concrete BlockHeating / Cooling Forced AirHeating Fuel GasSewer Sewer
Parking 1.00
ASAP

Sat

11

Apr

Sun

12

Apr

Mon

13

Apr

Tue

14

Apr

Wed

15

Apr

Thu

16

Apr

Fri

17

Apr

Sat

18

Apr

Sun

19

Apr

Mon

20

Apr

Tue

21

Apr

Wed

22

Apr

Thu

23

Apr

Fri

24

Apr

Sat

25

Apr

Sun

26

Apr

Mon

27

Apr

Tue

28

Apr

Wed

29

Apr

Thu

30

Apr

Fri

1

May

Sat

2

May

Sun

3

May

Mon

4

May

Tue

5

May

Wed

6

May

Thu

7

May

Fri

8

May

Sat

9

May

By clicking “Get pre-qualified” and/or 'Submit' you are expressly consenting, in writing, to receive telemarketing and other messages, including artificial or prerecorded voices, via automated calls or texts from jumprealty.ca and up.mortgages at the number you provided above. This consent is not required to purchase any good or service. Message and data rates may apply, frequency varies. Text HELP for help or STOP to cancel. More details in Terms of Use and Privacy Policy.

Listing Agency:  RE/MAX REAL ESTATE CENTRE INC.

* Data is provided courtesy of PROPTX. The information provided herein must only be used by consumers that have a bona fide interest in the purchase, sale, or lease of real estate and may not be used for any commercial purpose or any other purpose. The information is deemed reliable but is not guaranteed accurate by PROPTX.

Hospital
Parks
Schools
Place of Worship
Please select an amenity above to view a list.

Recommended Properties

Loading...
23 Frederick Avenue
Hamilton , Ontario
2 1 $449,900
Get more info