For Sale - 23 Jacob Fisher Drive, Toronto, Ontario

Est payment $3,601/mo
Views   1
Time on Jump  1 days
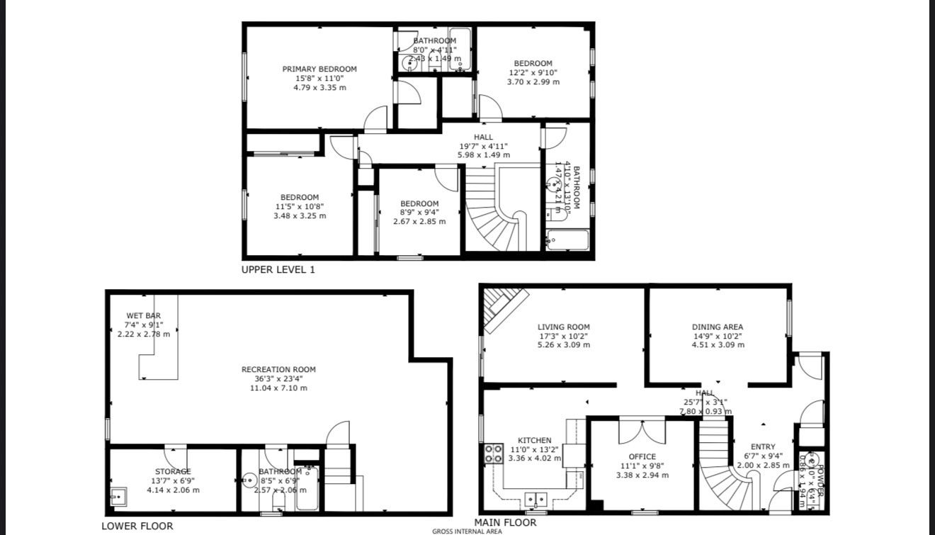
  • Solid brick 2-storey home with 4 spacious bedrooms and 2 full baths.
  • Large lot with a double garage and plenty of parking space.
  • Functional main floor layout with a family room and home office option.
  • Finished lower level with additional bathroom and room for customization.
  • Located in a family-friendly community near amenities, parks, and top schools.



First time buyers, families, builders/renovators- opportunity knocks on this beautiful detached, solid brick 2-storey, 4 bedroom home! This home was built in 1983 and is situated on a large 36 x 101 foot lot and includes a double (2) car garage and concrete driveway with additional 4 car parking. The main floor features a functional layout (*see floor plan) with spiral oak staircase that includes kitchen at the rear, family room with fireplace, 2 pc powder room, a formal dining or living area and separate room- perfect for home office. The upper level features 4 bedrooms and 2 full washrooms- primary bedroom features 4 pc ensuite. Other bedrooms are great size and all includes large closet space. The lower level is mostly finished and includes 4 pc washroom. Side door and walk out from kitchen to the open/fenced-in backyard. This home awaits your personal touch - great opportunity to make it your forever home with +1800 above grade square footage + additional 850 sq feet in basement. Located in family friendly community of malvern with quick access to all major amenities- no frills, planet fitness and more. Steps to transit, minutes to malvern shopping centre with shops and ton of eateries. Minutes to malvern community recreation centre and close to parks and highly-rated schools. Quick access to highway 401 and close to the toronto zoo. Great opportunity to live in a great location. Take the virtual tour and walk through the house.
Listing IDE12896374
Address23 Jacob Fisher Drive
CityToronto, Ontario
Price$749,900
Bed / Bath4 / 4 Full
Style2-Storey, Detached
ConstructionBrick
TypeResidential
StatusFor Sale
Subtype DetachedIndoor Features OtherOwnership FreeholdBasement FullFoundation BlockHeating / Cooling Forced AirHeating Fuel GasSewer Sewer
Parking 6.00
ASAP

Thu

19

Mar

Fri

20

Mar

Sat

21

Mar

Sun

22

Mar

Mon

23

Mar

Tue

24

Mar

Wed

25

Mar

Thu

26

Mar

Fri

27

Mar

Sat

28

Mar

Sun

29

Mar

Mon

30

Mar

Tue

31

Mar

Wed

1

Apr

Thu

2

Apr

Fri

3

Apr

Sat

4

Apr

Sun

5

Apr

Mon

6

Apr

Tue

7

Apr

Wed

8

Apr

Thu

9

Apr

Fri

10

Apr

Sat

11

Apr

Sun

12

Apr

Mon

13

Apr

Tue

14

Apr

Wed

15

Apr

Thu

16

Apr

By clicking “Get pre-qualified” and/or 'Submit' you are expressly consenting, in writing, to receive telemarketing and other messages, including artificial or prerecorded voices, via automated calls or texts from jumprealty.ca and up.mortgages at the number you provided above. This consent is not required to purchase any good or service. Message and data rates may apply, frequency varies. Text HELP for help or STOP to cancel. More details in Terms of Use and Privacy Policy.

Listing Agency:  RE/MAX PROFESSIONALS INC.

* Data is provided courtesy of PROPTX. The information provided herein must only be used by consumers that have a bona fide interest in the purchase, sale, or lease of real estate and may not be used for any commercial purpose or any other purpose. The information is deemed reliable but is not guaranteed accurate by PROPTX.

Hospital
Parks
Schools
Place of Worship
Please select an amenity above to view a list.

Recommended Properties

Loading...
23 Jacob Fisher Drive
Toronto , Ontario
4 4 $749,900
Get more info