For Lease - 23 Mitchell Avenue, Toronto, Ontario

Views   1
Time on Jump  83 day
  • Renovated detached home with modern design and functional living space.
  • Spacious sunken living room overlooking a private backyard.
  • Heated floors in the lower-level recreation room with walk-out access.
  • Located in vibrant Queen West, close to coffee shops and parks.
  • Great commuting options with high Walk/Transit/Bike Scores.
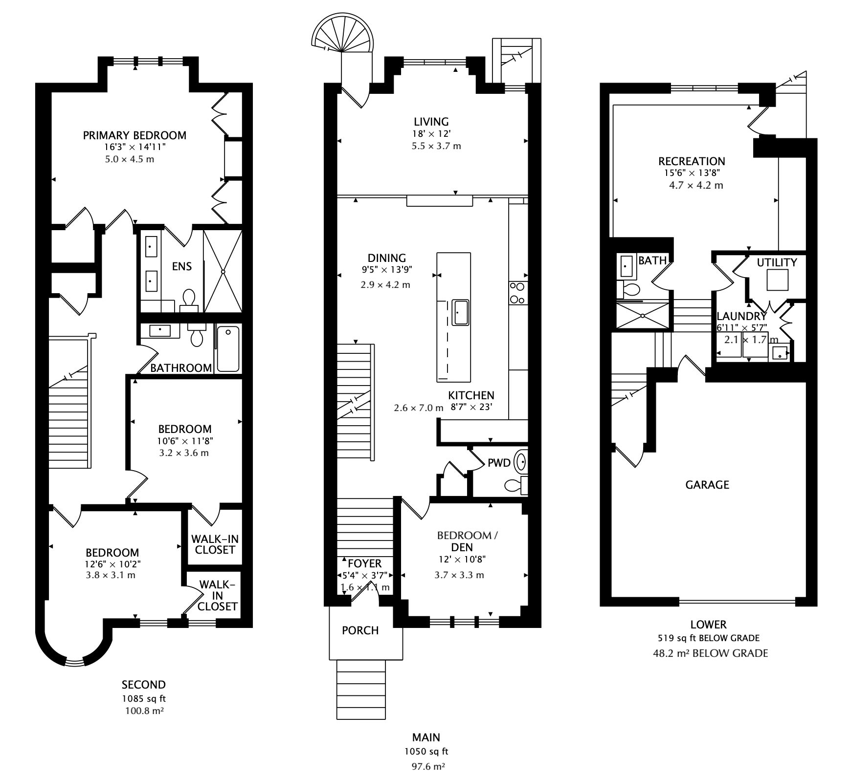
Entire house for rent. Welcome to 23 mitchell ave, a renovated detached home that offers a blend of modern design and functional living space. This two-story house, built in 2000 and renovated in 2025, sits on a 25x91 foot lot. It has 4 bedrooms and 3 full bathrooms, plus a main floor powder room. The kitchen is equipped with quartz countertops, a waterfall centre island, and high-end integrated and stainless steel appliances. The sunken living room is spacious, open, and overlooks the backyard. Throughout the main and upper floors, you'll find white oak engineered hardwood floors and led pot lights. The home has 2,018 square feet of above-grade living space, with an additional 460 square foot lower level and 280 square foot garage. The lower level features a recreation room with heated floors and a walk-out to the backyard. A 3-piece bathroom was added to the lower level during the 2025 renovation, offering the potential for an in-law suite or fifth bedroom. Other features include a separate laundry room, built-in garage with interior access and private brick front pad, providing parking for two cars. Located in the vibrant queen west neighbourhood, this property is close to many amenities, with an enviable walk/transit/bike score of97/97/93. Commuting is a breeze, with the queen streetcar providing a quick and direct route to the financial district, scotiabank arena and rogers centre. The king street car offers quick access to thedistillery district and leslieville. Once the ontario line is complete, the king-bathurst station will be inclose proximity. Coffee shops and restaurants like jimmy's coffee and terroni abound nearby. The home is also near parks, including stanley park and trinity bellwoods park, which offer a range of recreational facilities. Venture south to find easy access to the lakefront. Offers anytime.
Listing IDC12423019
Address23 Mitchell Avenue
CityToronto, Ontario
Lease$10,000
Bed / Bath4 / 4 Full
Style2-Storey, Detached
ConstructionBrick Front, Stucco (Plaster)
Land Size2275
TypeResidential
StatusFor Lease
Subtype DetachedIndoor Features Auto Garage Door Remote, Built-In Oven, Central Vacuum, Carpet Free, Laundry Room, In-Suite LaundryInclusions WaterOwnership LeaseholdBasement Finished with Walk-Out, Separate EntranceFoundation ConcreteHeating / Cooling Forced AirHeating Fuel GasSewer Sewer
Parking 2.00
ASAP

Wed

17

Dec

Thu

18

Dec

Fri

19

Dec

Sat

20

Dec

Sun

21

Dec

Mon

22

Dec

Tue

23

Dec

Wed

24

Dec

Thu

25

Dec

Fri

26

Dec

Sat

27

Dec

Sun

28

Dec

Mon

29

Dec

Tue

30

Dec

Wed

31

Dec

Thu

1

Jan

Fri

2

Jan

Sat

3

Jan

Sun

4

Jan

Mon

5

Jan

Tue

6

Jan

Wed

7

Jan

Thu

8

Jan

Fri

9

Jan

Sat

10

Jan

Sun

11

Jan

Mon

12

Jan

Tue

13

Jan

Wed

14

Jan

By clicking “Get pre-qualified” and/or 'Submit' you are expressly consenting, in writing, to receive telemarketing and other messages, including artificial or prerecorded voices, via automated calls or texts from jumprealty.ca and up.mortgages at the number you provided above. This consent is not required to purchase any good or service. Message and data rates may apply, frequency varies. Text HELP for help or STOP to cancel. More details in Terms of Use and Privacy Policy.

Listing Agency:  ONE PERCENT REALTY LTD.
Hospital
Parks
Schools
Place of Worship
Please select an amenity above to view a list.

Recommended Properties

Loading...
23 Mitchell Avenue
Toronto , Ontario
4 4 $10,000
Get more info