For Sale - 23 OREN Boulevard, Barrie, Ontario

Est payment $3,361/mo
Views   1
Time on Jump  1 days
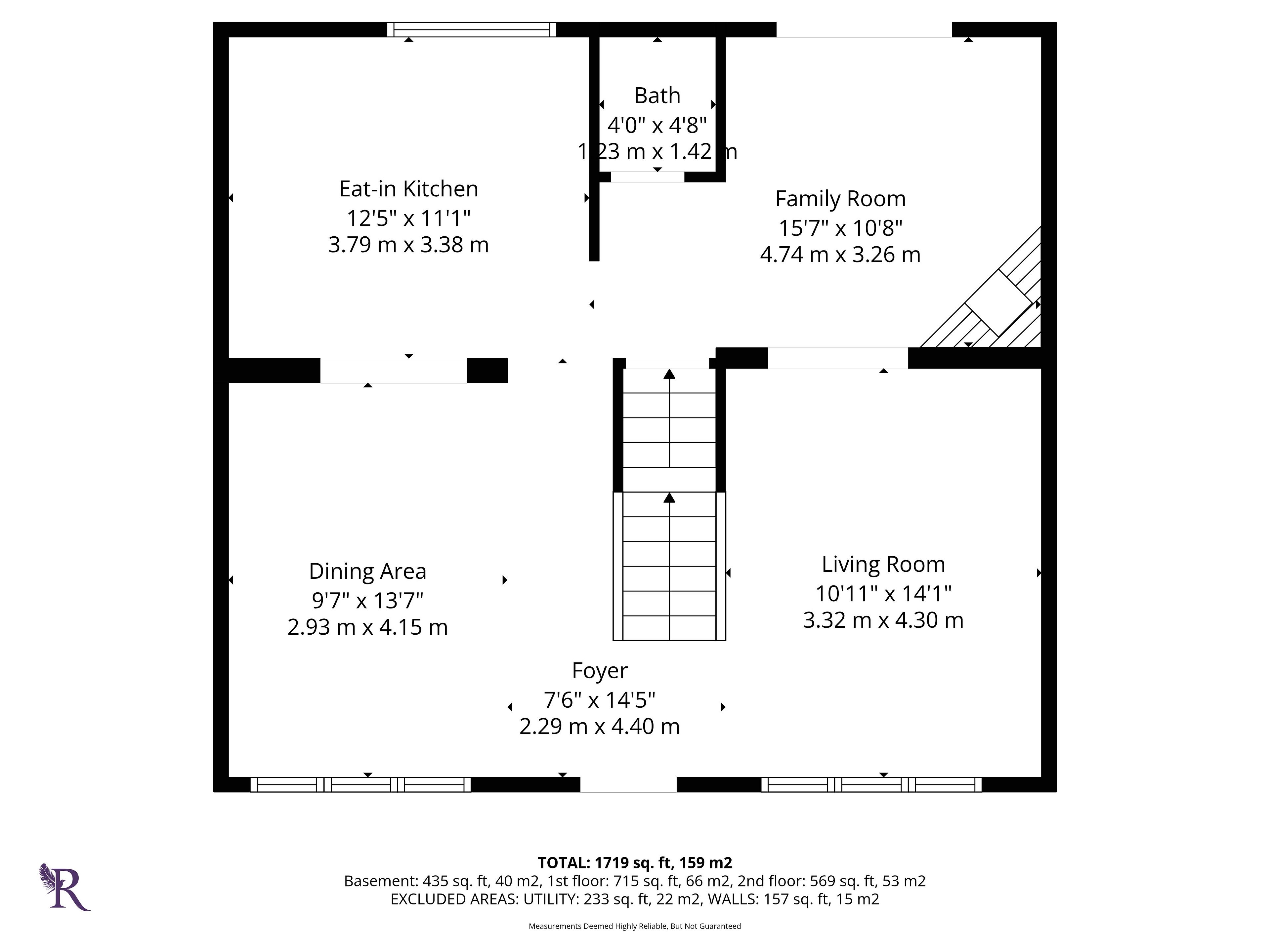
  • Inviting two-storey home with 1,284 square feet of living space.
  • Bright open layout on the main level, great for entertaining.
  • Cozy family room features a wood burning fireplace and backyard access.
  • Fully finished basement for recreation, media, or gym use.
  • Large fenced backyard with mature trees for privacy and play areas.



Welcome to 23 oren blvd in barrie, a warm and inviting two storey home offering approximately 1,284 square feet of thoughtfully designed living space plus a fully finished basement. Situated in a family friendly neighbourhood, this home combines comfort, functionality, and charm with spaces designed for everyday living and entertaining. The main level features a bright and open layout with updated flooring and a welcoming dining area perfect for hosting family meals or gatherings with friends. The kitchen offers ample cabinetry, stainless steel appliances, and a convenient eat-in peninsula that creates a natural connection to the dining space while providing additional prep and seating areas. Just off the kitchen, the cozy family room serves as the heart of the home, highlighted by a charming wood burning fireplace and large sliding doors that lead directly to the backyard. This seamless indoor outdoor connection creates the perfect setting for summer barbecues, entertaining, or simply enjoying the privacy of the fully fenced yard. Upstairs, you will find comfortable and well proportioned bedrooms including a spacious primary bedroom with generous closet space and large windows that fill the room with natural light. The additional bedrooms offer flexibility for children, guests, or a home office setup. The fully finished basement extends the living space even further and provides a versatile area that can easily function as a recreation room, media room, play area, or home gym depending on your needs. Outside, the property features a large fenced backyard with mature trees, offering both privacy and space for kids or pets to play. The attached garage and private driveway provide convenient parking and storage. Located close to parks, schools, shopping, and commuter routes, this home offers an ideal opportunity for families, first time buyers, or those looking for a move in ready property in one of barrie's established communities. Roof (2015) ac (2019)
Listing IDS12900186
Address23 OREN Boulevard
CityBarrie, Ontario
Price$699,900
Bed / Bath3 / 2 Full
Style2-Storey, Detached
ConstructionOther, Brick
TypeResidential
StatusFor Sale
Subtype DetachedIndoor Features Water Heater OwnedOwnership FreeholdWaterfront NoneBasement Finished, FullFoundation Concrete BlockHeating / Cooling Forced AirHeating Fuel GasSewer Sewer
Parking 3.00
ASAP

Fri

20

Mar

Sat

21

Mar

Sun

22

Mar

Mon

23

Mar

Tue

24

Mar

Wed

25

Mar

Thu

26

Mar

Fri

27

Mar

Sat

28

Mar

Sun

29

Mar

Mon

30

Mar

Tue

31

Mar

Wed

1

Apr

Thu

2

Apr

Fri

3

Apr

Sat

4

Apr

Sun

5

Apr

Mon

6

Apr

Tue

7

Apr

Wed

8

Apr

Thu

9

Apr

Fri

10

Apr

Sat

11

Apr

Sun

12

Apr

Mon

13

Apr

Tue

14

Apr

Wed

15

Apr

Thu

16

Apr

Fri

17

Apr

By clicking “Get pre-qualified” and/or 'Submit' you are expressly consenting, in writing, to receive telemarketing and other messages, including artificial or prerecorded voices, via automated calls or texts from jumprealty.ca and up.mortgages at the number you provided above. This consent is not required to purchase any good or service. Message and data rates may apply, frequency varies. Text HELP for help or STOP to cancel. More details in Terms of Use and Privacy Policy.

Listing Agency:  REVEL REALTY INC.

* Data is provided courtesy of PROPTX. The information provided herein must only be used by consumers that have a bona fide interest in the purchase, sale, or lease of real estate and may not be used for any commercial purpose or any other purpose. The information is deemed reliable but is not guaranteed accurate by PROPTX.

Hospital
Parks
Schools
Place of Worship
Please select an amenity above to view a list.

Recommended Properties

Loading...
23 Oren Boulevard
Barrie , Ontario
3 2 $699,900
Get more info