For Lease - 230 COLBORNE Street, Central Elgin, Ontario

Views   1
Time on Jump  20 day
  • Prime commercial space in Port Stanley's vibrant commercial district.
  • Flexible zoning allows for a variety of business types.
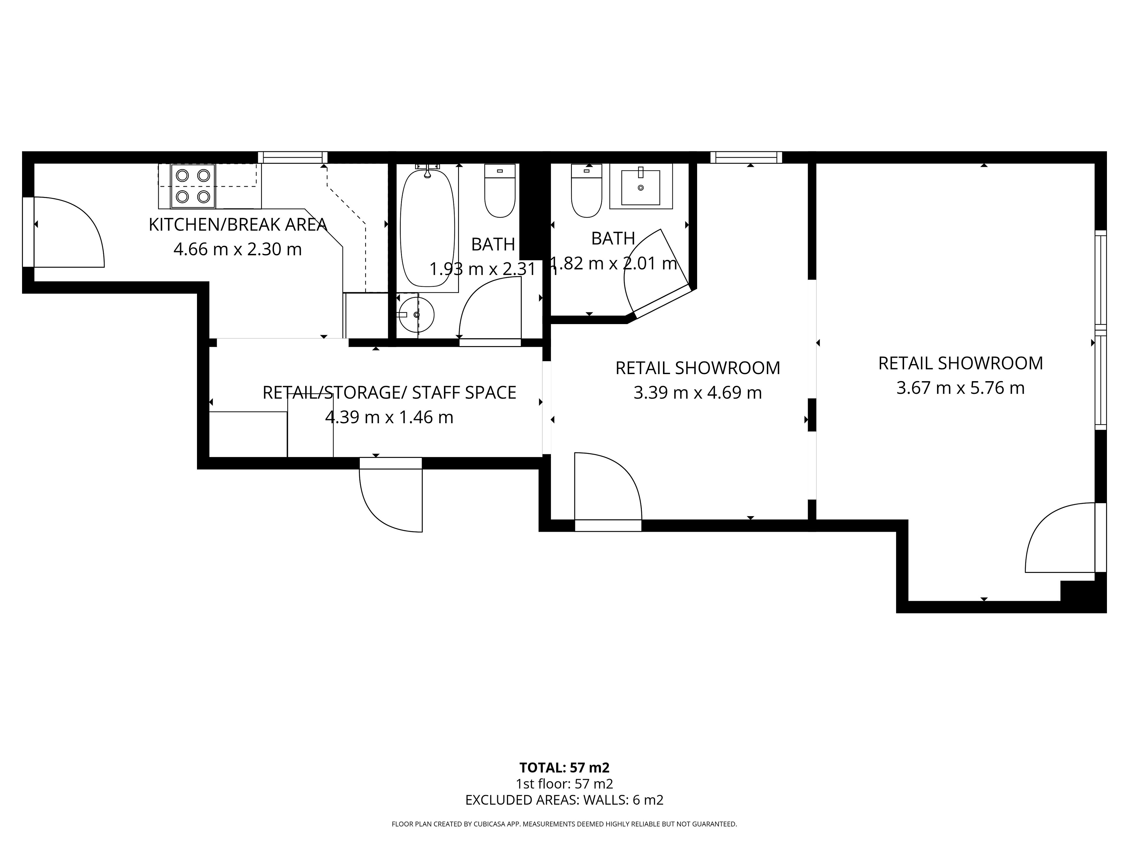
  • Includes two bathrooms and a kitchen for staff convenience.
  • High visibility with established businesses and foot traffic nearby.
  • No HST on rent, making it an economical choice for business.
Excellent opportunity in the heart of port stanley's commercial district. 230 colborne street offers a 613 sq ft commercial unit with approximately 411 sq ft of usable operating space. Extremely permissive zoning for a variety of uses. Ideal for a boutique retail, professional office, personal service, or food-oriented business under b1 zoning. The space currently includes two bathrooms and a kitchen, well-suited for staff use or back-of-house support, and the landlord is open to renovations or layout changes depending on the incoming business model-offering flexibility rarely found at this size point. Located in a high-visibility, walkable core location surrounded by established businesses and year-round foot traffic. No on-site parking; however, nearby municipal lots and public parking serve the commercial district. Utilities are shared on a proportional basis. No hst on rent. A smart, efficient footprint in one of port stanley's most desirable commercial locations.
Listing IDX12706802
Address230 COLBORNE Street
CityCentral Elgin, Ontario
Lease$1,275
Bed / Bath5 / 2 Full
StyleCommercial Retail
TypeIndustrial/Commercial
StatusFor Lease
Subtype Commercial RetailOwnership LeaseholdHeating / Cooling Gas Forced Air ClosedHeating Fuel Gas
ASAP

Sun

8

Feb

Mon

9

Feb

Tue

10

Feb

Wed

11

Feb

Thu

12

Feb

Fri

13

Feb

Sat

14

Feb

Sun

15

Feb

Mon

16

Feb

Tue

17

Feb

Wed

18

Feb

Thu

19

Feb

Fri

20

Feb

Sat

21

Feb

Sun

22

Feb

Mon

23

Feb

Tue

24

Feb

Wed

25

Feb

Thu

26

Feb

Fri

27

Feb

Sat

28

Feb

Sun

1

Mar

Mon

2

Mar

Tue

3

Mar

Wed

4

Mar

Thu

5

Mar

Fri

6

Mar

Sat

7

Mar

Sun

8

Mar

By clicking “Get pre-qualified” and/or 'Submit' you are expressly consenting, in writing, to receive telemarketing and other messages, including artificial or prerecorded voices, via automated calls or texts from jumprealty.ca and up.mortgages at the number you provided above. This consent is not required to purchase any good or service. Message and data rates may apply, frequency varies. Text HELP for help or STOP to cancel. More details in Terms of Use and Privacy Policy.

Listing Agency:  ROYAL LEPAGE TRILAND REALTY
Hospital
Parks
Schools
Place of Worship
Please select an amenity above to view a list.

Recommended Properties

Loading...
230 Colborne Street
Central Elgin , Ontario
5 2 $1,275
Get more info