For Sale - 2311 Elm Tree Road, Kawartha Lakes, Ontario

Est payment $2,160/mo
Views   1
Time on Jump  4 day
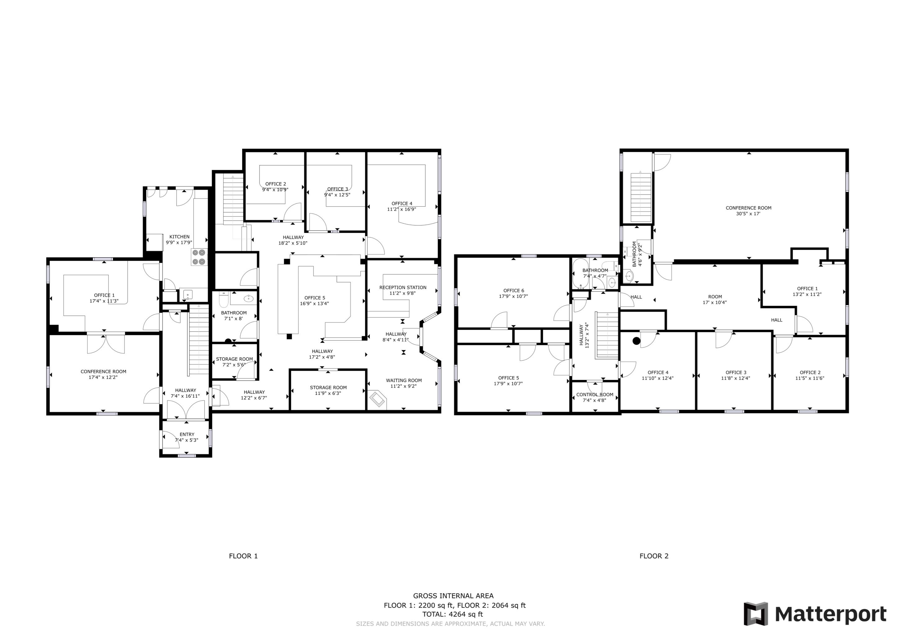
  • Spacious 4458 sq ft building on a busy corner lot with endless possibilities.
  • Mix of commercial and residential use options for versatility.
  • Existing setup for a 3 bedroom living quarters for convenience.
  • Separate entrances for potential to split into two office spaces.
  • Recent updates enhance functionality, including new windows and HVAC systems.



A well-maintained & updated 4458 square foot two-story brick building in cambray. Located in cambray at the busy junction of elm tree rd & highway 9, just minutes outside lindsay & under an hour to peterborough & port perry. Large spacious corner lot (0. 41 acres) with room for additional buildings & parking. Currently used as a large office building. Commercial & residential uses permitted. Rear part of the building is already setup for a 3 bedroom 1 bathroom with kitchen living quarters for a business owner. The building could also be split into two separate office spaces with separate entrances, hydro & hvac systems. Bonus detached 20'x 28' double garage with concrete floor. Commercial (c1) zoning allows for residential use of part of the building along with numerous alternative uses including but not limited to retail sales, health centre, commercial school, business or professional offices, restaurant, upholstering & furniture repair. Numerous updates in the last 10 years, including windows (2017), hvac (2018), attic insulation (2021) & office renovation (2016). So much potential!
Listing IDX12947096
Address2311 Elm Tree Road
CityKawartha Lakes, Ontario
Price$449,750
StyleOffice
TypeIndustrial/Commercial
StatusFor Sale
Subtype OfficeBasement 1Heating / Cooling Propane GasSewer Septic
ASAP

Tue

7

Apr

Wed

8

Apr

Thu

9

Apr

Fri

10

Apr

Sat

11

Apr

Sun

12

Apr

Mon

13

Apr

Tue

14

Apr

Wed

15

Apr

Thu

16

Apr

Fri

17

Apr

Sat

18

Apr

Sun

19

Apr

Mon

20

Apr

Tue

21

Apr

Wed

22

Apr

Thu

23

Apr

Fri

24

Apr

Sat

25

Apr

Sun

26

Apr

Mon

27

Apr

Tue

28

Apr

Wed

29

Apr

Thu

30

Apr

Fri

1

May

Sat

2

May

Sun

3

May

Mon

4

May

Tue

5

May

By clicking “Get pre-qualified” and/or 'Submit' you are expressly consenting, in writing, to receive telemarketing and other messages, including artificial or prerecorded voices, via automated calls or texts from jumprealty.ca and up.mortgages at the number you provided above. This consent is not required to purchase any good or service. Message and data rates may apply, frequency varies. Text HELP for help or STOP to cancel. More details in Terms of Use and Privacy Policy.

Listing Agency:  BIRDHOUSE REALTY INC.

* Data is provided courtesy of PROPTX. The information provided herein must only be used by consumers that have a bona fide interest in the purchase, sale, or lease of real estate and may not be used for any commercial purpose or any other purpose. The information is deemed reliable but is not guaranteed accurate by PROPTX.

Hospital
Parks
Schools
Place of Worship
Please select an amenity above to view a list.

Recommended Properties

Loading...
2311 Elm Tree Road
Kawartha Lakes , Ontario
$449,750
Get more info