For Sale - 242 Lakeport Road Unit# 18, St. Catharines, Ontario

Est payment $2,233/mo
Views   2
Time on Jump  29 day
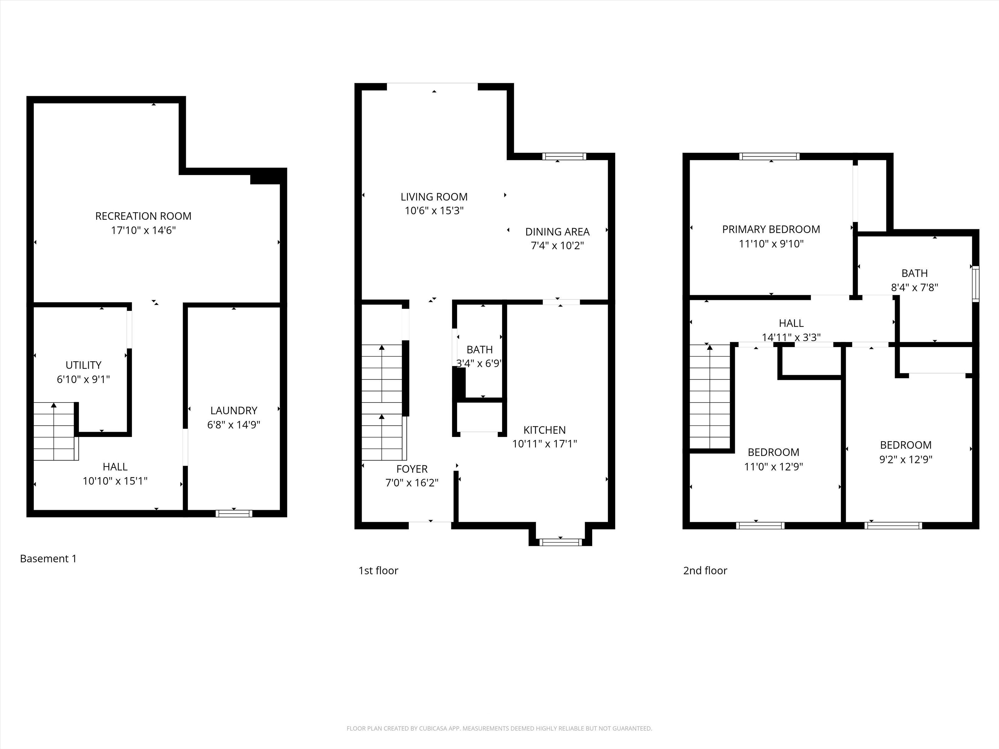
  • Charming 1200 square foot end unit townhome in a convenient location.
  • Three spacious bedrooms and 1.5 updated bathrooms for comfortable living.
  • Bright living room with patio door leading to a private rear patio.
  • Fully finished lower level with rec room, laundry, and utility space.
  • Low condo fees include water, cable, and maintenance with nearby amenities.



Welcome to this charming 1200 square foot end unit townhome conveniently located in century village. Featuring 3 well sized bedrooms and 1. 5 bathrooms. The main floor offers a beautifully updated walkthrough kitchen with extra cabinets, adjacent open dining area, a well proportioned living room with patio door access to your private rear patio and an updated 2 piece bathroom. The upper floor includes 3 good sized bedrooms and a fully renovated bathoom with walk-in shower. The modern fully finished lower level includes a spacious recroom, laundry and the utility room. Parking is conveniently located right in front of this unit. The affordable $360. 00 condominium fees include water, cable, common area maintenance and condominium insurance. Owner averages under $100/month for gas & hydro. Century village is located in a desirable north end a short distance to port dalhousie's lakeside park beach, waterfront walking trail, port weller's sunset beach, the welland canal trail and many other great amenities like shopping and easy qew access.
Listing IDX12847474
Address242 Lakeport Road Unit# 18
CitySt. Catharines, Ontario
Price$465,000
Bed / Bath3 / 2 Full
Style2-Storey, Condo Townhouse
ConstructionBrick, Vinyl Siding
TypeCondominium
StatusFor Sale
Subtype Condo TownhouseIndoor Features Water Heater, In BasementOutdoor Features PatioWaterfront NoneBuilding Amenities BBQs Allowed, Visitor ParkingBasement Finished, FullFoundation Poured ConcreteHeating / Cooling Forced AirHeating Fuel Gas
Parking 1.00
ASAP

Sat

4

Apr

Sun

5

Apr

Mon

6

Apr

Tue

7

Apr

Wed

8

Apr

Thu

9

Apr

Fri

10

Apr

Sat

11

Apr

Sun

12

Apr

Mon

13

Apr

Tue

14

Apr

Wed

15

Apr

Thu

16

Apr

Fri

17

Apr

Sat

18

Apr

Sun

19

Apr

Mon

20

Apr

Tue

21

Apr

Wed

22

Apr

Thu

23

Apr

Fri

24

Apr

Sat

25

Apr

Sun

26

Apr

Mon

27

Apr

Tue

28

Apr

Wed

29

Apr

Thu

30

Apr

Fri

1

May

Sat

2

May

By clicking “Get pre-qualified” and/or 'Submit' you are expressly consenting, in writing, to receive telemarketing and other messages, including artificial or prerecorded voices, via automated calls or texts from jumprealty.ca and up.mortgages at the number you provided above. This consent is not required to purchase any good or service. Message and data rates may apply, frequency varies. Text HELP for help or STOP to cancel. More details in Terms of Use and Privacy Policy.

Listing Agency:  ROYAL LEPAGE NRC REALTY

* Data is provided courtesy of PROPTX. The information provided herein must only be used by consumers that have a bona fide interest in the purchase, sale, or lease of real estate and may not be used for any commercial purpose or any other purpose. The information is deemed reliable but is not guaranteed accurate by PROPTX.

Hospital
Parks
Schools
Place of Worship
Please select an amenity above to view a list.

Recommended Properties

Loading...
242 Lakeport Road Unit# 18
St. Catharines , Ontario
3 2 $465,000
Get more info