For Sale - 253 Wellesley Street Unit# C, Toronto, Ontario

Est payment $4,273/mo
Views   1
Time on Jump  4 day
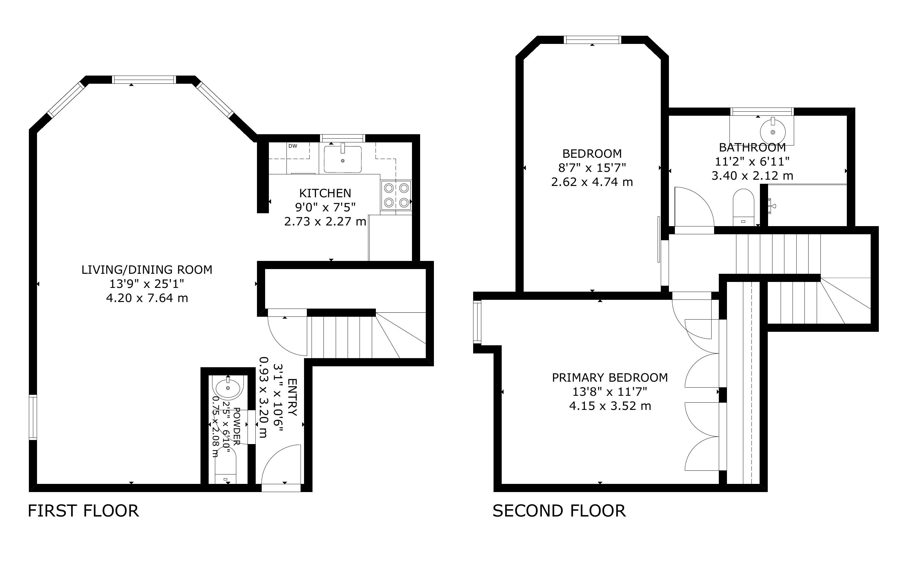
  • Converted Victorian Mansion with character, located in the heart of Cabbagetown.
  • Two-storey unit with large windows and 10-foot ceilings for spacious living.
  • Includes modern updates, like new hardwood floors and efficient heating/cooling system.
  • Access to picturesque outdoor garden and underground parking for convenience.
  • Great community atmosphere near vibrant local amenities and green spaces.



Character and charm! Welcome to "the mansion" at 253 wellesley st e. A converted victorian mansion in the heart of cabbagetown. This is your exclusive chance to call home to 1 of only 5 units in the building. *first unit available for sale in the last 7 years!* unit c is a 2-storey, 2-bedroom, 2-bathroom unit and is located on the upper 2 floors of the building and features approximately 1070 square feet of functional living space. The main floor features soaring 10-foot ceilings with large windows, hardwood flooring, a large open concept living and dining room, an updated kitchen and a convenient powder room. The upper level has 2 bedrooms featuring all new white oak hardwood flooring, *brand new 3-piece washroom with marble flooring, shower with custom glass door and vanity- simply stunning! Take the virtual tour. This condo is truly unique, perfect for professional/couple, young family, down-sizers, first-time buyers + more. Ton of upgrades throughout featuring custom built-in closets throughout the unit, new and highly efficient heat pump system with forced air heating and cooling. All new windows, freshly painted + more. *unit c also includes 1 underground parking and large locker/storage room.* friendly residents and meticulous landscape. This condominium is very well managed and maintained, includes the mansion and 6 townhouses at the rear of property sharing an eloquent and picturesque outdoor garden area. Located in the desirable community of cabbagetown home to unique blend of historic charm, victorian architecture, a tight-knit community atmosphere, and excellent proximity to downtown amenities and green spaces. Vibrant local amenities along parliment st and others offering a variety of local businesses, grocery stores, butcher shops, cafes, diverse restaurants and eateries, and unique boutiques. Easy access to transit, close to the financial and entertainment district and conveniently close to recreation areas -riverdale park and farm and much more
Listing IDC12935840
Address253 Wellesley Street Unit# C
CityToronto, Ontario
Price$889,900
Bed / Bath2 / 2 Full
Style2-Storey, Condo Apartment
ConstructionBrick
TypeCondominium
StatusFor Sale
Subtype Condo ApartmentIndoor Features None, Central Vacuum, Carpet Free, Separate Hydro Meter, Coin Operated, Common Area, In BasementBasement NoneHeating / Cooling Heat PumpHeating Fuel Electric
Parking 1.00
ASAP

Sun

5

Apr

Mon

6

Apr

Tue

7

Apr

Wed

8

Apr

Thu

9

Apr

Fri

10

Apr

Sat

11

Apr

Sun

12

Apr

Mon

13

Apr

Tue

14

Apr

Wed

15

Apr

Thu

16

Apr

Fri

17

Apr

Sat

18

Apr

Sun

19

Apr

Mon

20

Apr

Tue

21

Apr

Wed

22

Apr

Thu

23

Apr

Fri

24

Apr

Sat

25

Apr

Sun

26

Apr

Mon

27

Apr

Tue

28

Apr

Wed

29

Apr

Thu

30

Apr

Fri

1

May

Sat

2

May

Sun

3

May

By clicking “Get pre-qualified” and/or 'Submit' you are expressly consenting, in writing, to receive telemarketing and other messages, including artificial or prerecorded voices, via automated calls or texts from jumprealty.ca and up.mortgages at the number you provided above. This consent is not required to purchase any good or service. Message and data rates may apply, frequency varies. Text HELP for help or STOP to cancel. More details in Terms of Use and Privacy Policy.

Listing Agency:  RE/MAX PROFESSIONALS INC.

* Data is provided courtesy of PROPTX. The information provided herein must only be used by consumers that have a bona fide interest in the purchase, sale, or lease of real estate and may not be used for any commercial purpose or any other purpose. The information is deemed reliable but is not guaranteed accurate by PROPTX.

Hospital
Parks
Schools
Place of Worship
Please select an amenity above to view a list.

Recommended Properties

Loading...
253 Wellesley Street Unit# C
Toronto , Ontario
2 2 $889,900
Get more info