For Sale - 26 Davis Street, Collingwood, Ontario

Est payment $4,082/mo
Views   3
Time on Jump  46 day
  • Spacious 2,200 sq ft home in a sought-after neighborhood.
  • Gourmet kitchen with high-end appliances and large island.
  • Private backyard with a new two-tier deck for entertaining.
  • Finished basement includes extra bedroom and cozy family room.
  • Located near scenic trails and close to downtown Collingwood.



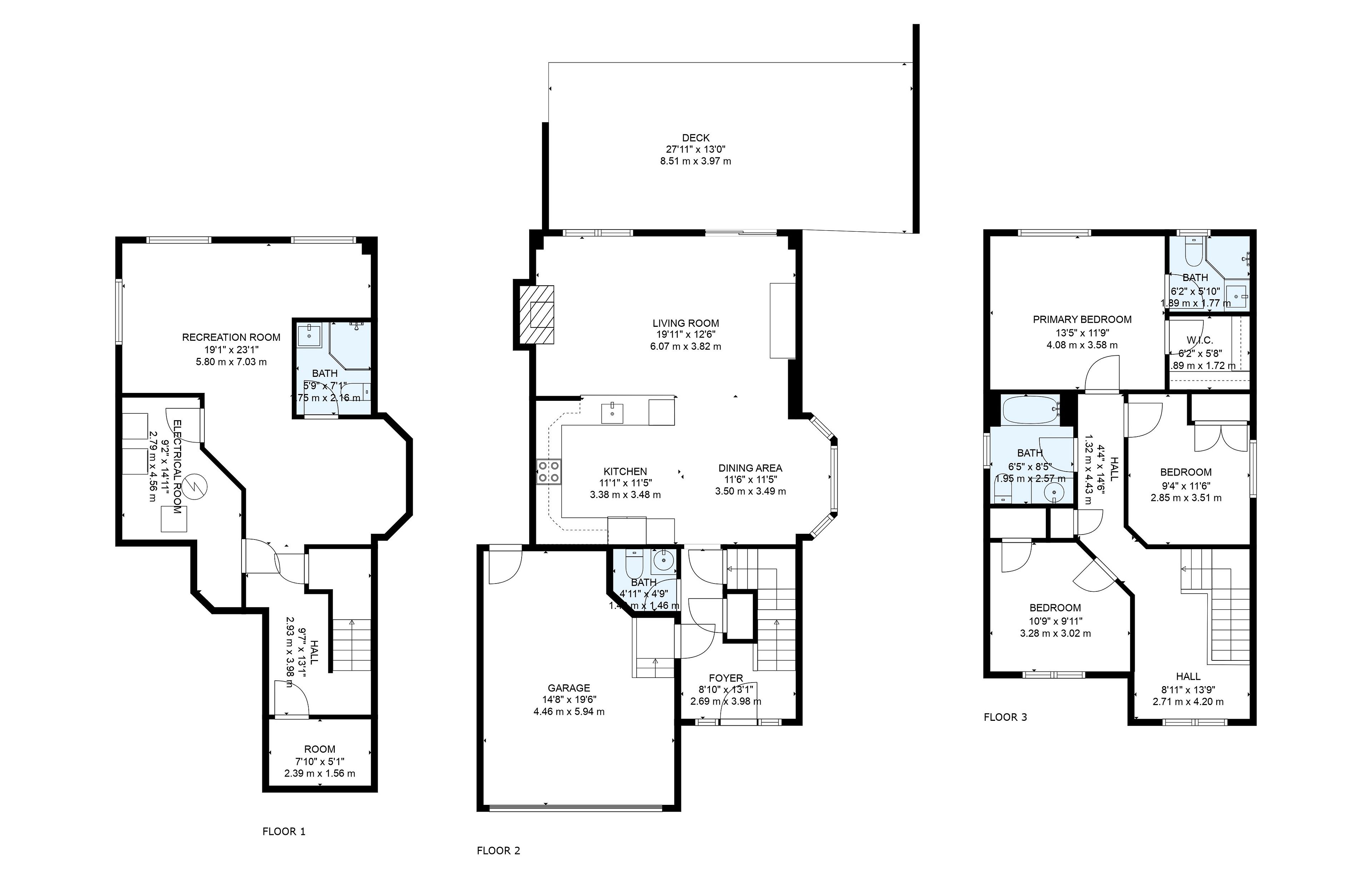
Discover this stunning 2,200 sq ft home nestled in the highly sought-after creekside neighbourhood. Expertly renovated by collingwood's acclaimed kofoed built, this elegant 3-bedroom, 3. 5-bathroom residence offers an optional fourth bedroom in the finished basement, showcasing premium finishes that create a bright, open, and inviting atmosphere throughout. Step into the spacious, open-concept main floor where modern family living comes to life. The gourmet kitchen is a chefs dream, featuring high-end appliances, sleek white quartz countertops, and a large island perfect for gatherings. Relax in the living room adorned with a contemporary napoleon fireplace, pristine white oak hardwood floors, recessed lighting, and an airy layout that seamlessly connects every space. Host unforgettable dinners in the dining area, bathed in natural light from a charming bay window. Sliding doors lead to a private backyard oasis with a newly built two-tier deck, and mature trees. Enjoy breathtaking west-facing sunset views from the serene back deck an entertainers paradise. Upstairs, the primary suite offers a tranquil retreat complete with a stylish ensuite and a spacious walk-in closet. Two additional bedrooms maintain the homes modern aesthetic, while a versatile landing space serves perfectly as a chic home office. The fully finished basement expands your living options, featuring a cozy family room, office nook/playroom, an extra bedroom, and a full bathroom. Ample storage solutions, including cold storage, ensure every need is met. Situated on the quiet, non-sidewalk side of the street and adjacent to collingwood's scenic trail system and black ash creek, this location perfectly balances peaceful nature with easy access to downtown collingwood. Experience the perfect blend of contemporary elegance and everyday convenience in this exceptional creekside home.
Listing IDS12913082
Address26 Davis Street
CityCollingwood, Ontario
Price$850,000
Bed / Bath3 / 4 Full
Style2-Storey, Detached
ConstructionBrick Front
TypeResidential
StatusFor Sale
Subtype DetachedIndoor Features Central VacuumOwnership FreeholdBasement FinishedFoundation ConcreteHeating / Cooling Forced AirHeating Fuel GasSewer Sewer
Parking 3.00
ASAP

Sun

10

May

Mon

11

May

Tue

12

May

Wed

13

May

Thu

14

May

Fri

15

May

Sat

16

May

Sun

17

May

Mon

18

May

Tue

19

May

Wed

20

May

Thu

21

May

Fri

22

May

Sat

23

May

Sun

24

May

Mon

25

May

Tue

26

May

Wed

27

May

Thu

28

May

Fri

29

May

Sat

30

May

Sun

31

May

Mon

1

Jun

Tue

2

Jun

Wed

3

Jun

Thu

4

Jun

Fri

5

Jun

Sat

6

Jun

Sun

7

Jun

By clicking “Get pre-qualified” and/or 'Submit' you are expressly consenting, in writing, to receive telemarketing and other messages, including artificial or prerecorded voices, via automated calls or texts from jumprealty.ca and up.mortgages at the number you provided above. This consent is not required to purchase any good or service. Message and data rates may apply, frequency varies. Text HELP for help or STOP to cancel. More details in Terms of Use and Privacy Policy.

Listing Agency:  Royal LePage Locations North

* Data is provided courtesy of PROPTX. The information provided herein must only be used by consumers that have a bona fide interest in the purchase, sale, or lease of real estate and may not be used for any commercial purpose or any other purpose. The information is deemed reliable but is not guaranteed accurate by PROPTX.

Hospital
Parks
Schools
Place of Worship
Please select an amenity above to view a list.

Recommended Properties

Loading...
26 Davis Street
Collingwood , Ontario
3 4 $850,000
Get more info