For Lease - 260 Yorkland Boulevard, Toronto, Ontario

Views   1
Time on Jump  6 day
  • Spacious institutional leasing opportunity with flexible room sizes to suit various needs.
  • Prime North York location with high traffic and easy access to public transit.
  • Multiple functional rooms, including children's washroom and kitchen for diverse uses.
  • Ample on-site parking for approximately 120 vehicles available for guests and staff.
  • Immediate availability with the option for minor interior improvements to fit requirements.
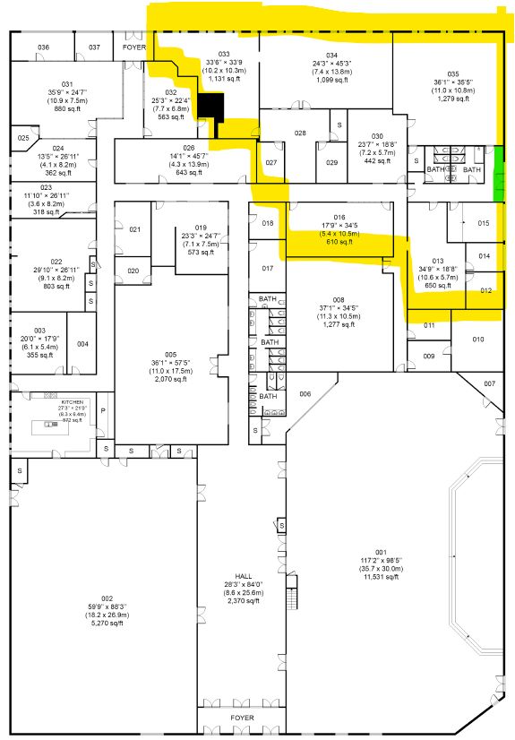
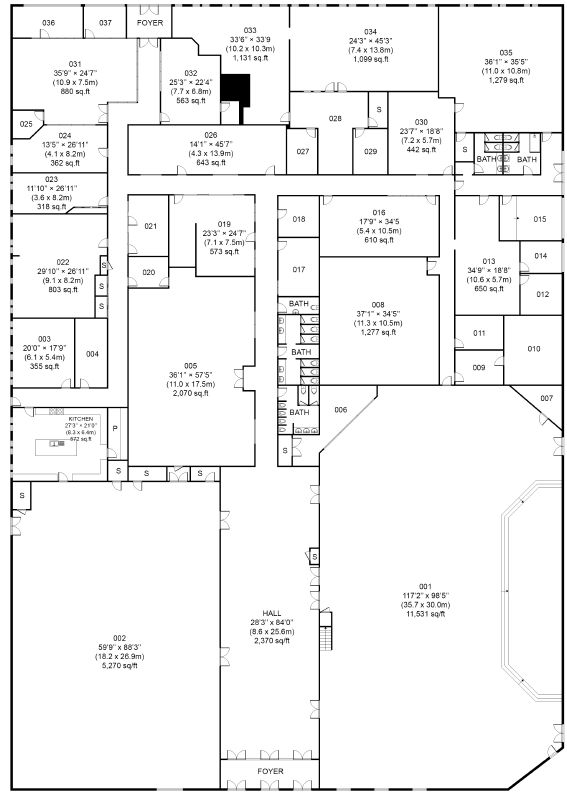
Flexible institutional leasing opportunity within church facility. Exceptional opportunity to lease up to approximately 7,000 sq. Ft. (flexible room sizes from 280 to 1400 sqft, combinable) of institutional space in a prime north york location. The total leasable area is divisible and can be configured to accommodate a variety of uses. Features include separate entrance, multiple functional rooms, childrens' washroom, accessibility, kitchen and access to outdoor area suitable for playground use. Ample on-site parking with capacity for approximately 120 vehicles. Exclusive use monday to friday. Office and institutional uses including daycare, montessori, educational, and community uses (tenant to verify). Exclusive use available monday to friday. Gross rent includes tmi. Landlord open to minor interior improvements; structural alterations not permitted. Immediate availability. Refer to photos for layout. Detailed floor plan and 3d tour available (attached documents and links provided). Tenant responsible for all licensing, permits, and compliance. Prime north york high traffic location with ttc transit bus stop at doorstep and quick access to 401/404 hwy and sheppard. Close to fairview public library, fairview mall and growing residential area.
Listing IDC12929490
Address260 Yorkland Boulevard
CityToronto, Ontario
Lease$28
StyleCommercial Retail
TypeIndustrial/Commercial
StatusFor Lease
Subtype Commercial RetailCommunity Features Major Highway, Public TransitOwnership LeaseholdHeating / Cooling Gas Forced Air OpenSewer Sanitary
ASAP

Fri

3

Apr

Sat

4

Apr

Sun

5

Apr

Mon

6

Apr

Tue

7

Apr

Wed

8

Apr

Thu

9

Apr

Fri

10

Apr

Sat

11

Apr

Sun

12

Apr

Mon

13

Apr

Tue

14

Apr

Wed

15

Apr

Thu

16

Apr

Fri

17

Apr

Sat

18

Apr

Sun

19

Apr

Mon

20

Apr

Tue

21

Apr

Wed

22

Apr

Thu

23

Apr

Fri

24

Apr

Sat

25

Apr

Sun

26

Apr

Mon

27

Apr

Tue

28

Apr

Wed

29

Apr

Thu

30

Apr

Fri

1

May

By clicking “Get pre-qualified” and/or 'Submit' you are expressly consenting, in writing, to receive telemarketing and other messages, including artificial or prerecorded voices, via automated calls or texts from jumprealty.ca and up.mortgages at the number you provided above. This consent is not required to purchase any good or service. Message and data rates may apply, frequency varies. Text HELP for help or STOP to cancel. More details in Terms of Use and Privacy Policy.

Listing Agency:  HOMELIFE LANDMARK REALTY INC.

* Data is provided courtesy of PROPTX. The information provided herein must only be used by consumers that have a bona fide interest in the purchase, sale, or lease of real estate and may not be used for any commercial purpose or any other purpose. The information is deemed reliable but is not guaranteed accurate by PROPTX.

Hospital
Parks
Schools
Place of Worship
Please select an amenity above to view a list.

Recommended Properties

Loading...
260 Yorkland Boulevard
Toronto , Ontario
$28
Get more info