For Lease - 265 Yorkland Boulevard Unit# 101, Toronto, Ontario

Views   1
Time on Jump  1 days
  • Former Tim Hortons location with complete restaurant infrastructure ready for lease.
  • Great access to subway, mall, and major highways for easy connectivity.
  • Surrounded by residential areas, ensuring strong foot traffic and visibility.
  • Flexible space suitable for various retail or commercial applications.
  • Ideal for food operations or service-based businesses in a high-demand location.
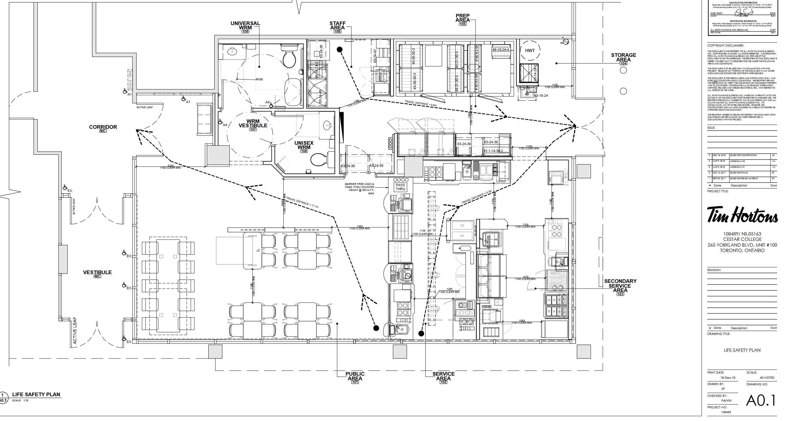
Former tim hortons location at 265 yorkland road now available for lease. This fully built-out retail unit comes equipped with complete restaurant infrastructure, including high-capacity hydro service, city-approved grease trap system, walk-in cooler and freezer, and a water filtration system-ideal for a seamless food operation setup. The functional layout is illustrated in the listing images. Strategically located with excellent access to don mills subway station, fairview mall, and major routes such as highway 404, don valley parkway, and sheppard avenue, the property benefits from outstanding connectivity. Surrounded by residential condo developments and established communities, the area offers strong foot traffic and visibility. In addition to restaurant use, the space is well-suited for a variety of retail or commercial applications, including photo studios, financial institutions, professional offices, and service-based businesses. A versatile opportunity in a high-demand location.
Listing IDC13032222
Address265 Yorkland Boulevard Unit# 101
CityToronto, Ontario
Lease$33
StyleCommercial Retail
TypeIndustrial/Commercial
StatusFor Lease
Subtype Commercial RetailOwnership LeaseholdHeating / Cooling Gas Forced Air Open
ASAP

Thu

23

Apr

Fri

24

Apr

Sat

25

Apr

Sun

26

Apr

Mon

27

Apr

Tue

28

Apr

Wed

29

Apr

Thu

30

Apr

Fri

1

May

Sat

2

May

Sun

3

May

Mon

4

May

Tue

5

May

Wed

6

May

Thu

7

May

Fri

8

May

Sat

9

May

Sun

10

May

Mon

11

May

Tue

12

May

Wed

13

May

Thu

14

May

Fri

15

May

Sat

16

May

Sun

17

May

Mon

18

May

Tue

19

May

Wed

20

May

Thu

21

May

By clicking “Get pre-qualified” and/or 'Submit' you are expressly consenting, in writing, to receive telemarketing and other messages, including artificial or prerecorded voices, via automated calls or texts from jumprealty.ca and up.mortgages at the number you provided above. This consent is not required to purchase any good or service. Message and data rates may apply, frequency varies. Text HELP for help or STOP to cancel. More details in Terms of Use and Privacy Policy.

Listing Agency:  HOMELIFE NEW WORLD REALTY INC.

* Data is provided courtesy of PROPTX. The information provided herein must only be used by consumers that have a bona fide interest in the purchase, sale, or lease of real estate and may not be used for any commercial purpose or any other purpose. The information is deemed reliable but is not guaranteed accurate by PROPTX.

Hospital
Parks
Schools
Place of Worship
Please select an amenity above to view a list.

Recommended Properties

Loading...
265 Yorkland Boulevard Unit# 101
Toronto , Ontario
$33
Get more info